LEMON Manuals: Even more car manuals for everyone: 1960-2025
Home >> Acura >> 1996 >> NSX Standard >> Repair and Diagnosis >> External Pages >> Different car >> Section 12 (Integrated Control Unit) >> Description & Operation >> Notes
April 5, 2026: LEMON Manuals is launched! Read the announcement.

Description & Operation: Notes

WARNING: This page does not describe the selected car, but rather 14 other vehicles, including the 2005 Acura NSX, 2004 Acura NSX, 2003 Acura NSX-T, 2003 Acura NSX, and 2002 Acura NSX-T. However, it is still accessible from the selected car via links, so may be relevant.

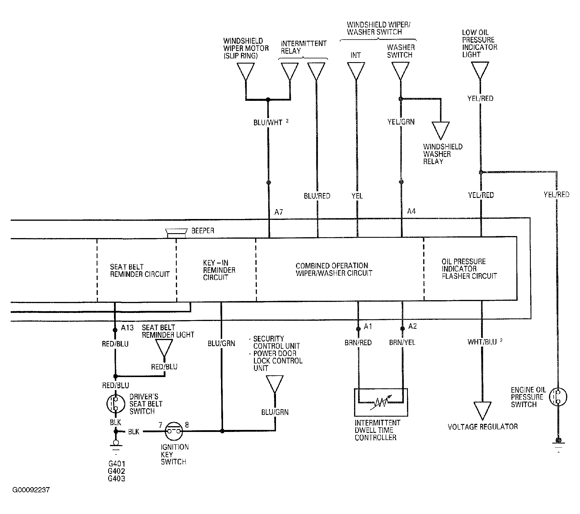
Located on the left side kick panel, the integrated control unit integrates the functions of the entry light timer, key-in reminder, lights-on reminder, combined operation wiper/washer circuit, seat belt reminder, oil pressure indicator flasher, side marker flasher, power window key-off timer and rear window defogger timer onto one circuit board, sharing common circuit functions. The integrated control unit receives battery voltage at all times from FUSE 34, located in the under-hood fuse/relay box. With the ignition switch in RUN or START position, battery voltage is supplied from FUSE 5, located in under-dash fuse box, to the control unit. The control unit is grounded at G401, located behind left kick panel. See Fig 1 and Fig 2 .

Fig 1: Integrated Control Unit Circuit Diagram (1 Of 2)
G00092236Courtesy of AMERICAN HONDA MOTOR CO., INC.
Fig 2: Integrated Control Unit Circuit Diagram (2 Of 2)
G00092237Courtesy of AMERICAN HONDA MOTOR CO., INC.