LEMON Manuals: Even more car manuals for everyone: 1960-2025
Home >> Acura >> 2006 >> RL >> Repair and Diagnosis >> Body & Frame >> Frames, Subframes & Crossmembers >> Frame Repair Chart >> Top View
April 5, 2026: LEMON Manuals is launched! Read the announcement.

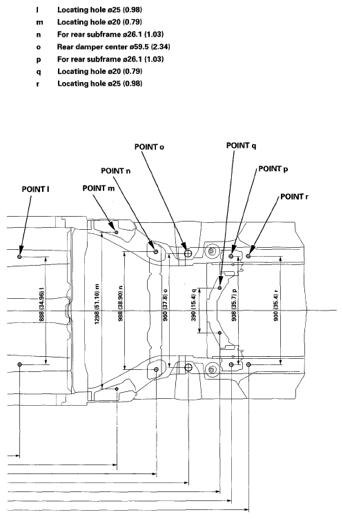
Top View

Fig 1: Frame Repair Chart - Top View (1 Of 2)
G05496528Courtesy of AMERICAN HONDA MOTOR CO., INC.
Fig 2: Frame Repair Chart - Top View (2 Of 2)
G05496529Courtesy of AMERICAN HONDA MOTOR CO., INC.