LEMON Manuals: Even more car manuals for everyone: 1960-2025
Home >> Acura >> 2023 >> MDX Base >> Repair and Diagnosis (Single Page) >> Steering >> Steering Control Systems >> Body Electrical System - System Description - DTC Troubleshooting Index >> Description & Operation >> Panoramic Glass Roof System Description
April 5, 2026: LEMON Manuals is launched! Read the announcement.

Panoramic Glass Roof System Description

Basic Control/Function 

The panoramic glass roof opens when the panoramic glass roof open switch is turned to on. During this process, the power sunshade also opens keeping a given distance to the panoramic glass roof if the power sunshade is closed. The panoramic glass roof closes when the panoramic glass roof close switch is turned to on.

The power sunshade opens when the power sunshade open switch is turned to on or the smartphone is operated *. The power sunshade closes when the power sunshade close switch is turned to on or the smartphone is operated *. If the panoramic glass roof is opened, the power sunshade stops closing just short of the panoramic glass roof position. If the power sunshade close switch is turned to on again, the power sunshade closes again along with the panoramic glass roof keeping a given distance to each other.*: Manual operation only

Each switch has the first detent position (to do the manual roof or sunshade operation) and the second detent position (to do the automatic roof or sunshade operation). The panoramic glass roof opens to the comfort position automatically by pressing the panoramic glass roof open switch to the second detent, then opens to the full open position automatically by pressing the switch again. The panoramic glass roof closes to the full close position automatically by pressing the panoramic glass roof close switch to the second detent.

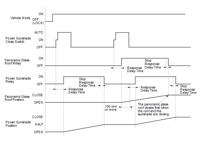
AUTO OPEN Function 

GHH659588Courtesy of HONDA, U.S.A., INC.

AUTO CLOSE Function 

GHH659589Courtesy of HONDA, U.S.A., INC.
ACTIVATION TERM CANCELLATION TERM
  • Vehicle is turned to the ON mode or the vehicle OFF timer signal is on.
  • AUTO switch is turned on after pressing open or close switch.
  • The voltage over the switch exceeds the minimum working voltage.
  • Vehicle is turned to the OFF (LOCK) mode and the vehicle OFF timer signal is off.
  • When the panoramic glass roof switch is pressed again.
  • When the power sunshade switch is pressed again.
  • Pinching is detected.
  • Fully opening or fully closing is detected.
  • Failsafe function is operated.

Tilt Function 

Auto Tilt Up Operation 

The panoramic glass roof tilts up when the panoramic glass roof tilt switch is turned to on. In this process, if the sunshade is closed, first, the sunshade opens to a certain extent, and then the panoramic glass roof tilts up. Once the panoramic glass roof tilt switch is turned to on, the panoramic glass roof tilts up automatically without keeping the switch pressed.

TILT UP Function 

GHH659590Courtesy of HONDA, U.S.A., INC.
ACTIVATION TERM CANCELLATION TERM
  • Vehicle is turned to the ON mode or the vehicle OFF timer signal is on.
  • Tilt switch is turned on.
  • The voltage over the switch exceeds the minimum working voltage.
  • Vehicle is turned to the OFF (LOCK) mode and the vehicle OFF timer signal is off.
  • Open, close or tilt switch is turned on again.
  • Pinching is detected.
  • Fully tilt opening or fully closing is detected.
  • Failsafe function is operated.

Auto Tilt Down Operation 

The panoramic glass roof tilts down when the panoramic glass roof close switch is turned to on while the panoramic glass roof is tilted-upward. In this process, first, the panoramic glass roof tilts down, and then the sunshade closes. The switch has the first detent position (to do the manual roof or sunshade operation) and the second detent position (to do the automatic roof or sunshade operation). In the manual operation, the roof or the sunshade opens/closes only while the switch is in first detent. In the automatic operation, the roof or the sunshade opens/closes fully once the switch is set to the second detent.

TILT DOWN Function 

GHH659591Courtesy of HONDA, U.S.A., INC.
ACTIVATION TERM CANCELLATION TERM
  • Vehicle is turned to the ON mode or the vehicle OFF timer signal is on.
  • Tilt switch is turned on.
  • The voltage over the switch exceeds the minimum working voltage.
  • Vehicle is turned to the OFF (LOCK) mode and the vehicle OFF timer signal is off.
  • Open, close or tilt switch is turned on again.
  • Pinching is detected.
  • Fully tilt opening or fully closing is detected.
  • Failsafe function is operated.

Sunshade Mid Function 

Pressing the sunshade mid switch moves the sunshade to the half position and stops it when the vehicle is turned to the ON mode or the vehicle OFF timer signal is on.

Pinching Detect Function 

When the panoramic glass roof is closing and the stopping load is greater than a prescribed threshold, the panoramic glass roof will reverse direction momentarily then stop. The control unit detects "Pinching" by checking the pulses output from the pulse sensor in the panoramic glass roof motor.

Learning Function 

The panoramic glass roof and the power sunshade have learning functions. If the learning is not completed, the automatic operation from the open, close or tilt operation cannot be done.

Failsafe Function 

When there is a power supply failure or control unit failure, the failsafe function will disable the control of each function.