LEMON Manuals: Even more car manuals for everyone: 1960-2025
Home >> Cadillac >> 1995 >> Eldorado Base >> Repair and Diagnosis >> Engine Performance >> System >> Engine Controls - Tests W/Codes >> Pcm Code Charts >> Code P032, Open Map Sensor Circuit >> Action
April 5, 2026: LEMON Manuals is launched! Read the announcement.

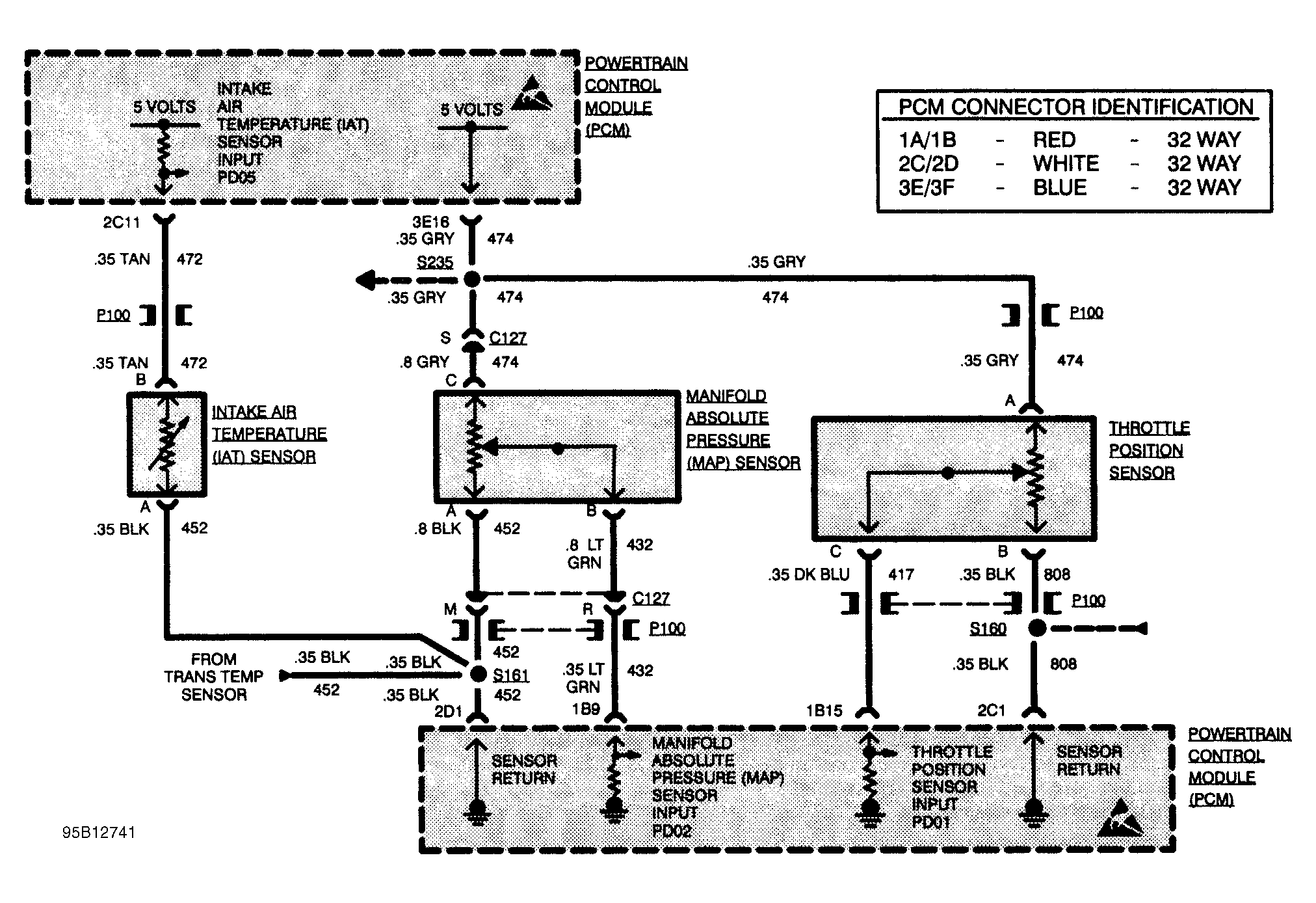
Code P032, Open Map Sensor Circuit: Action

PCM turns on MIL. PCM disables long term fuel trim and uses a substitute MAP value based on engine RPM and throttle switch status (open or closed). PCM disables EVAP control solenoid. PCM disables torque management and transaxle shift adapts are maintained at current levels.

NOTE: Test numbers refer to numbers on diagnostic chart.
  1. PD02 will read 10-16 kPa if MAP sensor or related circuit is open.
  2. Checks for 5-volt reference signal at sensor connector. A reading of 103-105 kPa means that wiring and PCM are okay.
  3. Checks circuit No. 432 for short to ground and circuits No. 432 and 474 and MAP sensor circuit for open.
  4. Checks circuit No. 432 for short to ground.
  5. Checks if 5-volt signal is reaching PCM. If signal is present, replace PCM.
Fig 1: Code P032 Schematic, Open MAP Sensor Circuit
G95B12741Courtesy of GENERAL MOTORS CORP
Fig 2: Code P032 Diagnostic Flow Chart, Open MAP Sensor Circuit
G94J32978Courtesy of GENERAL MOTORS CORP