LEMON Manuals: Even more car manuals for everyone: 1960-2025
Home >> Cadillac >> 2002 >> Escalade EXT >> Repair and Diagnosis >> External Pages >> Different car >> Section 187 (Engine Controls - Basic Diagnostic Procedures) >> Ignition Systems >> Electronic Ignition System (3.0L) >> Notes
April 5, 2026: LEMON Manuals is launched! Read the announcement.

Electronic Ignition System (3.0L): Notes

WARNING: This page is about a different car, the 2003 Saturn Vue. However, it is still accessible from the selected car via links, so may be relevant.
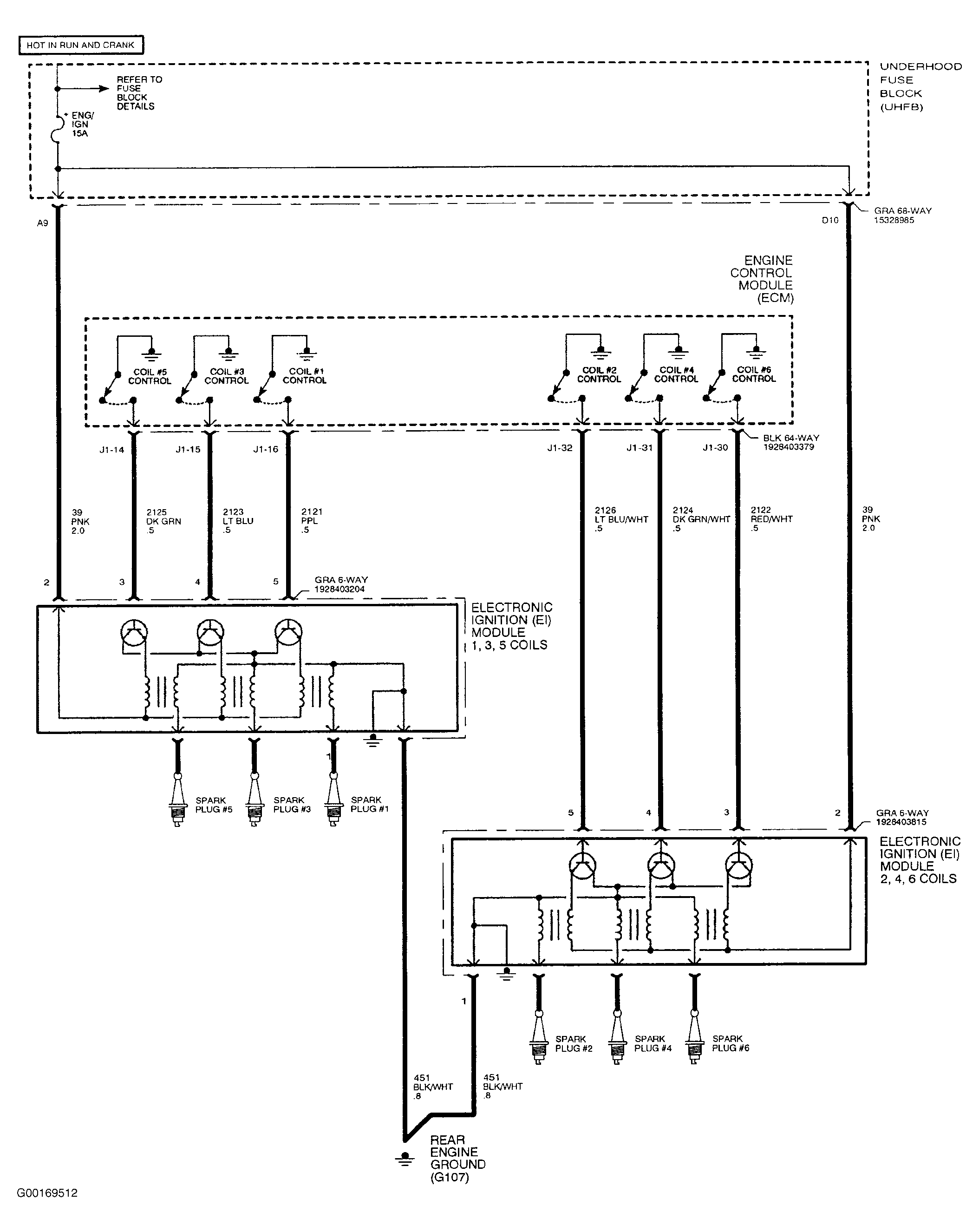
Fig 1: Ignition Circuit Schematic (3.0L)
G00169512Courtesy of GENERAL MOTORS CORP.