LEMON Manuals: Even more car manuals for everyone: 1960-2025
Home >> Cadillac >> 2007 >> STS Base, 4.6 A, AWD >> Repair and Diagnosis >> External Pages >> Different car >> Section 18 (Door Lock Systems & Door Handles) >> Schematic and Routing Diagrams >> Door Control Module Schematics
April 5, 2026: LEMON Manuals is launched! Read the announcement.

Door Control Module Schematics

WARNING: This page is about a different car, the 2008 Cadillac SRX. However, it is still accessible from the selected car via links, so may be relevant.
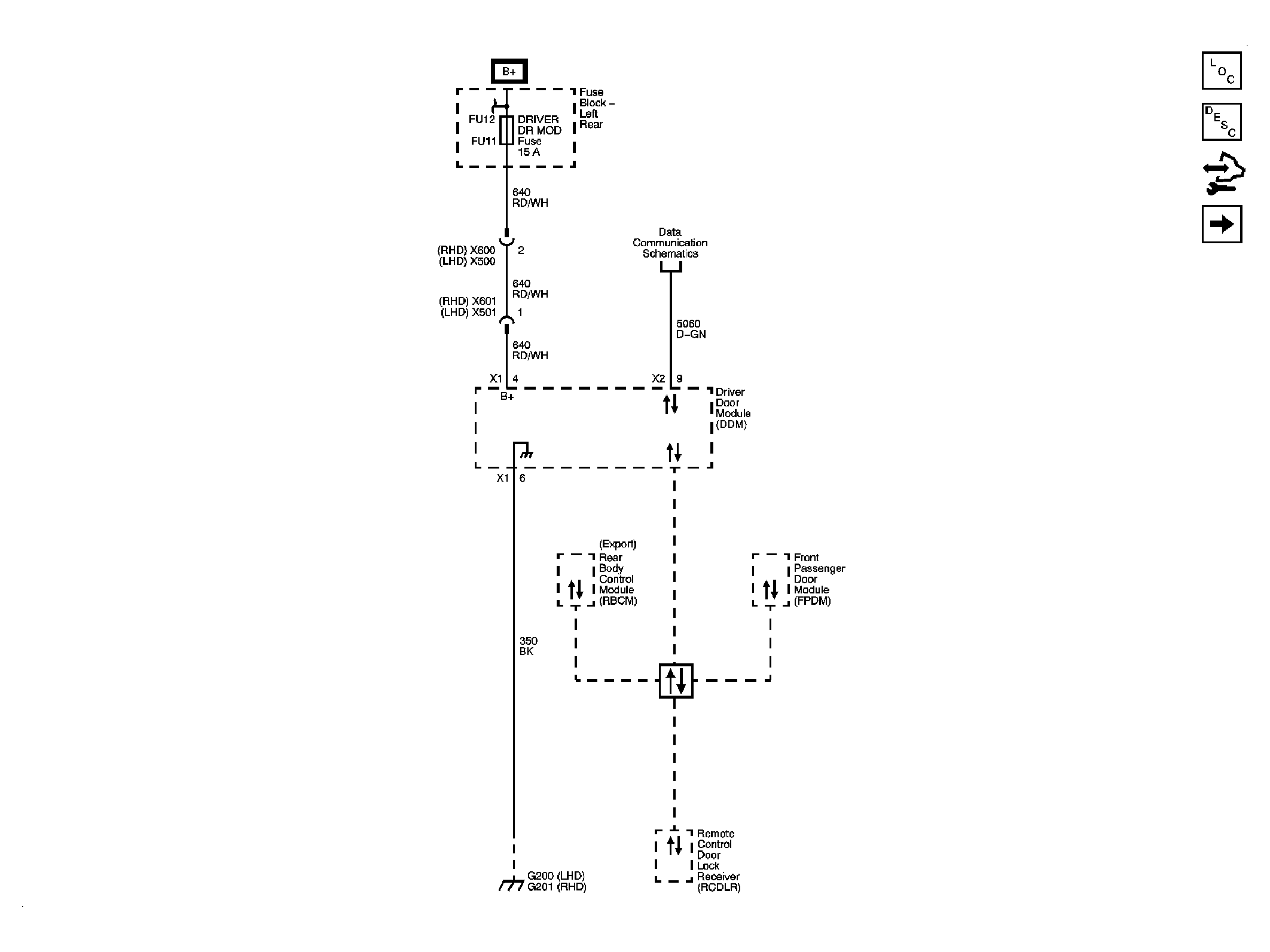
Fig 1: DDM Power, Ground and Serial Data
GM1874175Courtesy of GENERAL MOTORS CORP.
Fig 2: DDM Outside Rearview Mirror and Moveable Window References
GM1874177Courtesy of GENERAL MOTORS CORP.
Fig 3: DDM Door Lock References
GM1874179Courtesy of GENERAL MOTORS CORP.
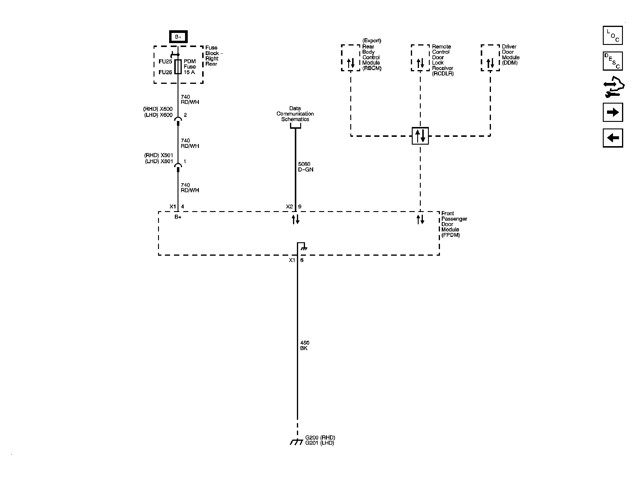
Fig 4: FPDM Power, Ground and Serial Data
GM1874184Courtesy of GENERAL MOTORS CORP.
Fig 5: FPDM Moveable Window and Door Lock References
GM1874187Courtesy of GENERAL MOTORS CORP.
Fig 6: FPDM Outside Rearview Mirror References
GM1874189Courtesy of GENERAL MOTORS CORP.