LEMON Manuals: Even more car manuals for everyone: 1960-2025
Home >> Cadillac >> 2012 >> Escalade EXT >> Repair and Diagnosis >> External Pages >> Different car >> Section 907 (Trailer Brake Control System) >> Schematic & Routing Diagrams >> Trailer Brake Control Schematics
April 5, 2026: LEMON Manuals is launched! Read the announcement.

Trailer Brake Control Schematics

WARNING: This page is about a different car, the 2007 GMC Sierra and 2007 Chevrolet Silverado. However, it is still accessible from the selected car via links, so may be relevant.
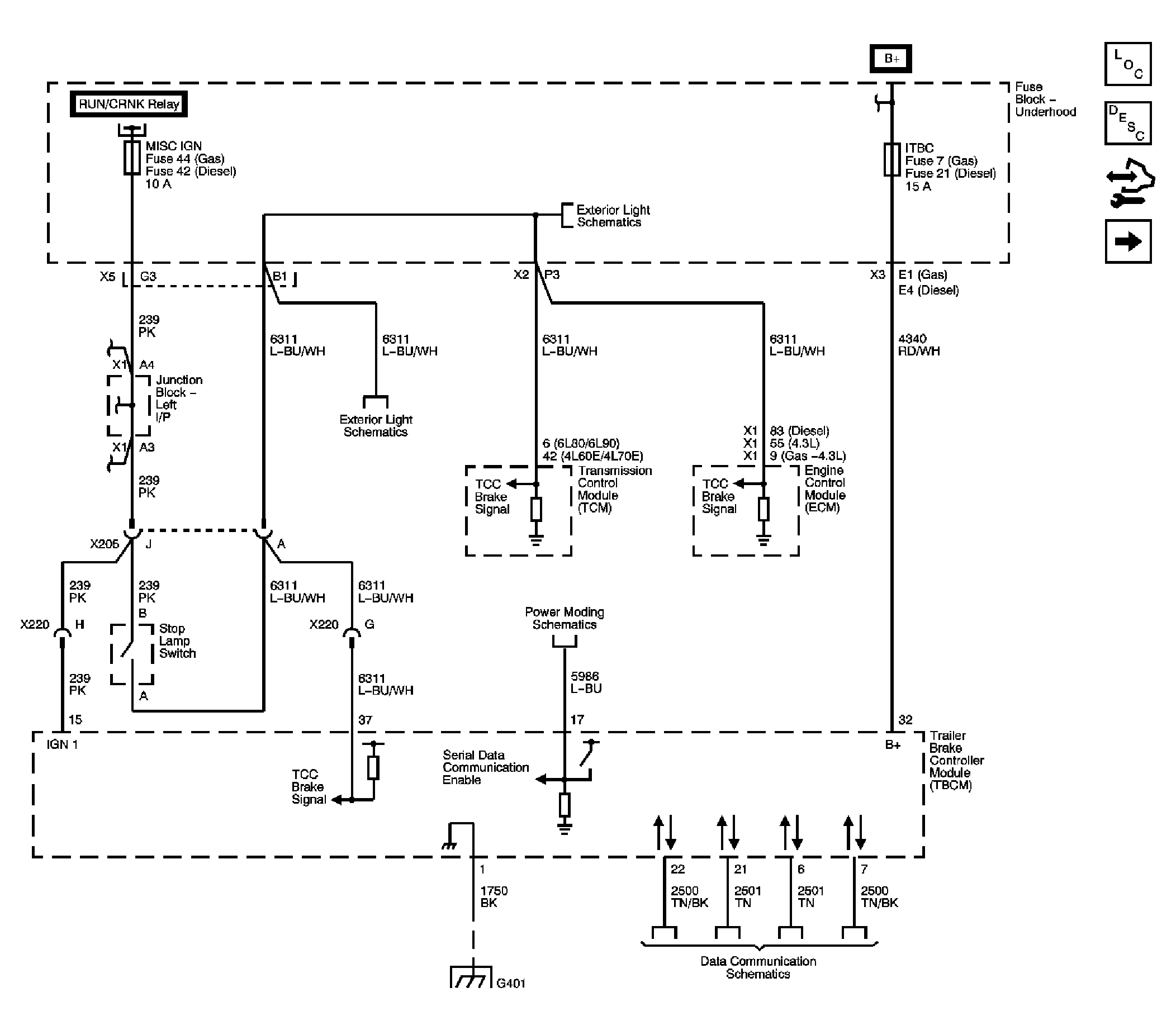
Fig 1: Module Power & Ground Schematic
GM1849169Courtesy of GENERAL MOTORS CORP.
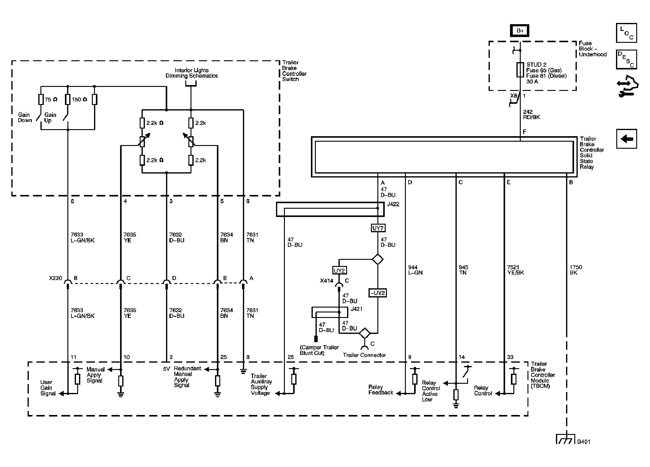
Fig 2: Trailer Brake Controls Schematic
GM1849170Courtesy of GENERAL MOTORS CORP.