LEMON Manuals: Even more car manuals for everyone: 1960-2025
Home >> Cadillac >> 2016 >> CTS Base, AWD >> Repair and Diagnosis >> External Pages >> Different car >> Section 72 (Cellular System, Entertainment System, And Navigation System (Coupe)) >> Schematic Wiring Diagrams >> Radio/Navigation System Wiring Schematics >> Secondary Controls
April 5, 2026: LEMON Manuals is launched! Read the announcement.

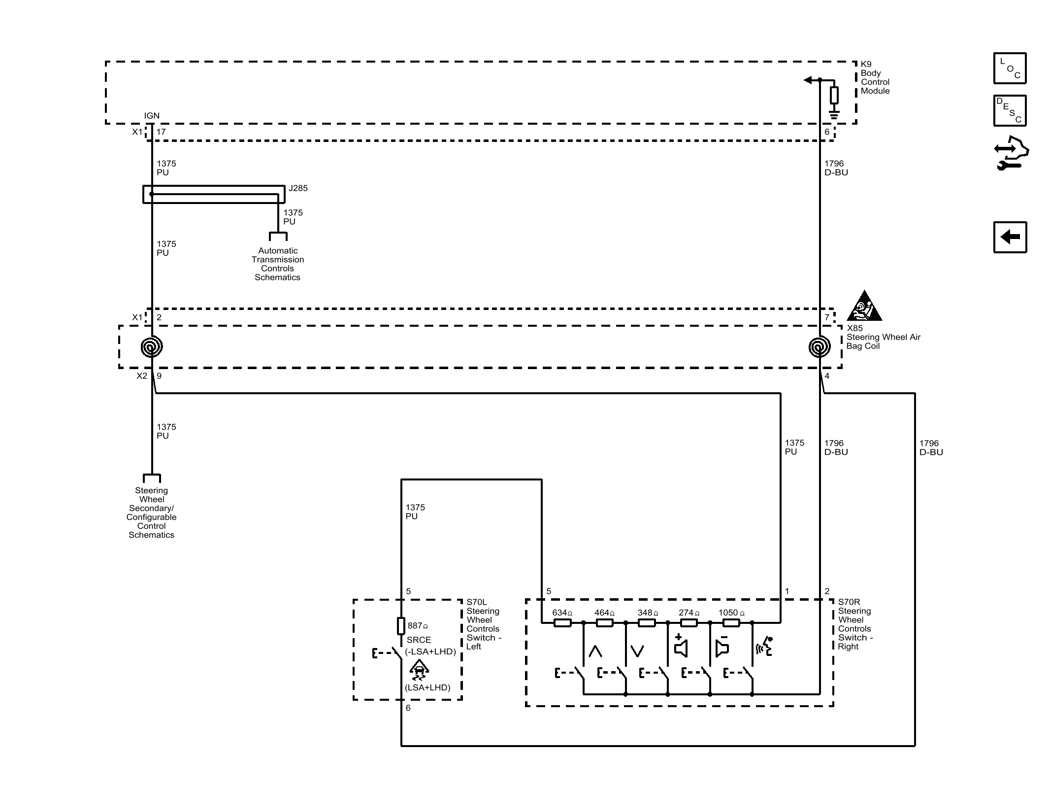
Secondary Controls

WARNING: This page is about a different car, the 2015 Cadillac CTS. However, it is still accessible from the selected car via links, so may be relevant.
Fig 1: Secondary Controls
GM3766415Courtesy of GENERAL MOTORS COMPANY