LEMON Manuals: Even more car manuals for everyone: 1960-2025
Home >> Cadillac >> 2017 >> CTS Base, AWD >> Repair and Diagnosis (Single Page) >> Accessories & Equipment >> Entertainment Systems >> Cellular System, Entertainment System, And Navigation System - Schematic And Routing Diagrams >> Schematic Wiring Diagrams >> Radio/Navigation System Wiring Schematics (IO5/IO6) >> Audio Amplifier Power, Ground and Serial Data
April 5, 2026: LEMON Manuals is launched! Read the announcement.

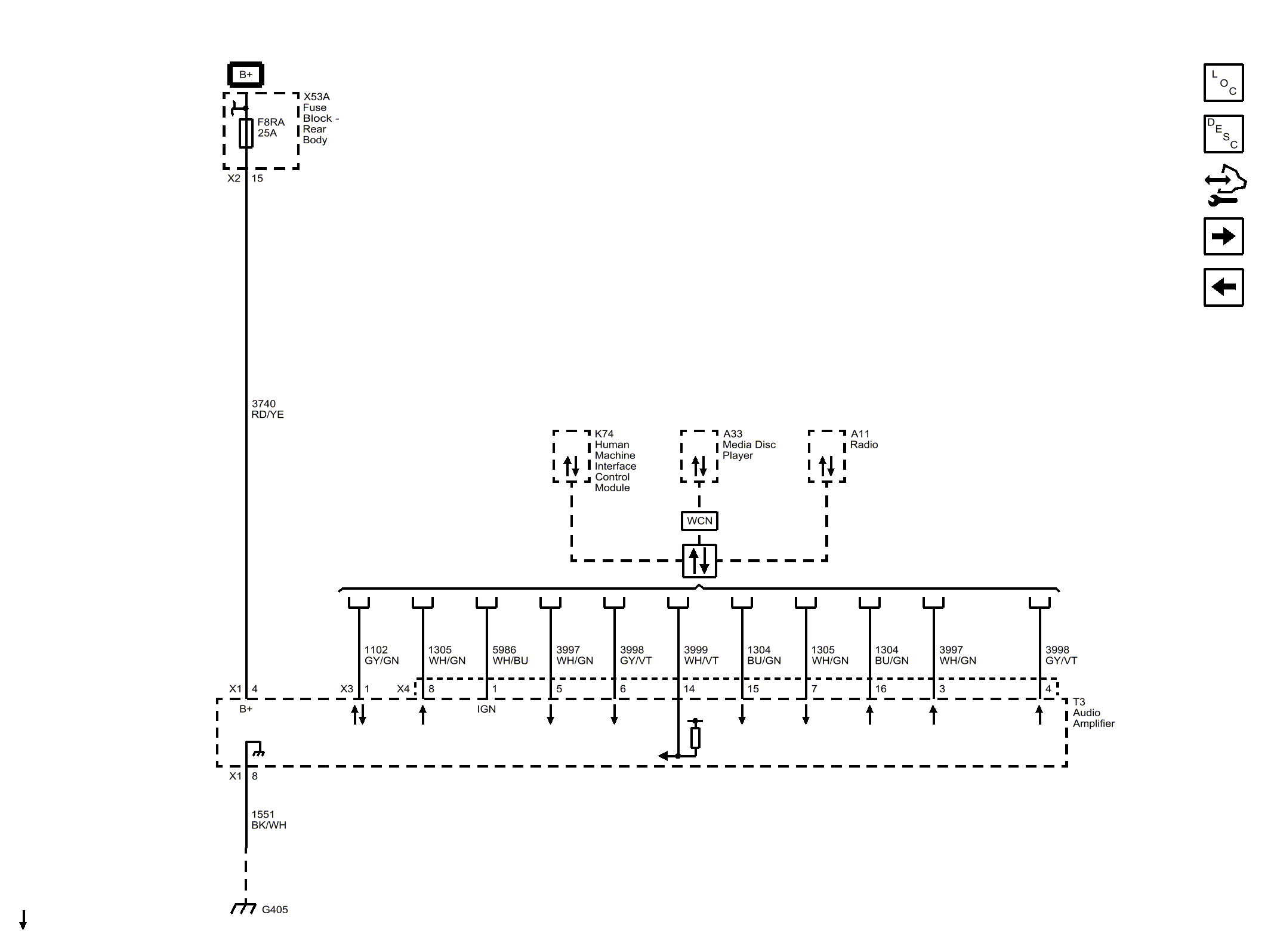
Audio Amplifier Power, Ground and Serial Data

Fig 1: Audio Amplifier Power, Ground and Serial Data
GM4492804Courtesy of GENERAL MOTORS COMPANY