LEMON Manuals: Even more car manuals for everyone: 1960-2025
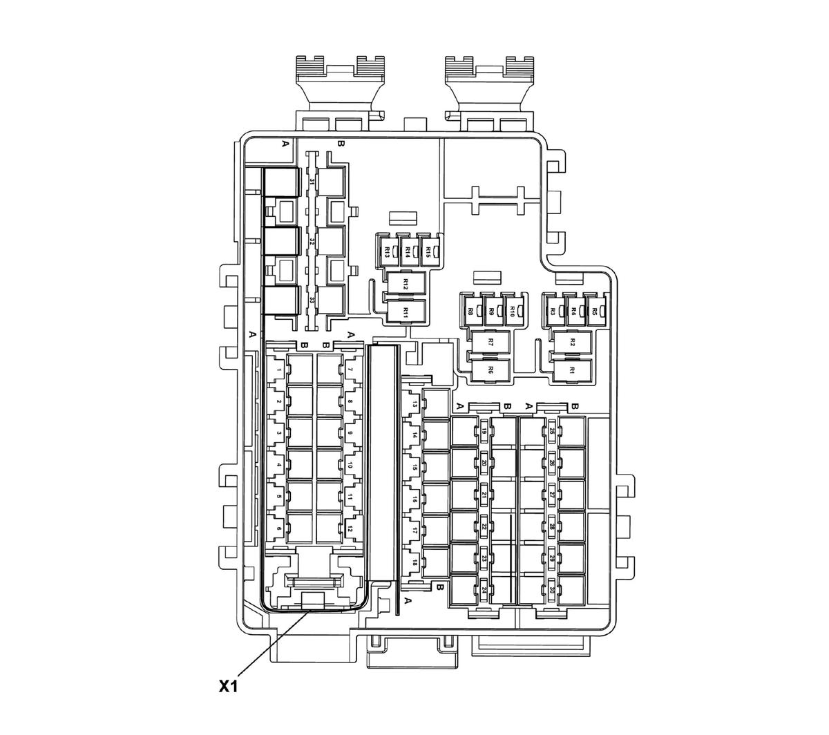
Home >> Cadillac >> 2017 >> CTS Base, AWD >> Repair and Diagnosis (Single Page) >> Electrical >> Component Locations >> Component Locator - Electrical Center Identification Views >> Electrical Center Identification Views >> X51A Fuse Block - Instrument Panel Bottom View Bottom View
April 5, 2026: LEMON Manuals is launched! Read the announcement.

X51A Fuse Block - Instrument Panel Bottom View Bottom View

GM3417577
Connector Part Information
  • Harness Type: Instrument Panel
  • OEM Connector: 7254-0471-3W
  • Service Connector: Service by Harness - See Part Catalog
  • Description: 81-Way Wire Entry Fuse Block (BK)
Terminal Part Information

Terminal Type ID Terminated Lead Diagnostic Test Probe Terminal Removal Tool Service Terminal Tray Core Crimp Insulation Crimp
I 13575256 J-35616-42 (RD) J-38125-11A 7116-2877 19 F G
II 13580022 J-35616-43 (RD) J-38125-11A Not Available Not Available Not Available Not Available
III 19118054 J-35616-42 (RD) J-38125-11A 7116-2875 17 E B
IV 19118054 J-35616-42 (RD) J-38125-11A 7116-2875 17 E G
V 19118165 J-35616-42 (RD) J-38125-11A 7116-2876 18 4 G
VI 19119888 J-35616-35 (VT) J-38125-12A Not Available Not Available Not Available Not Available
VI 19119888 J-35616-35 (VT) J-38125-12A Not Available Not Available Not Available Not Available
VII 19119958 J-35616-35 (VT) J-38125-12A Not Available Not Available Not Available Not Available
VIII 19119959 J-35616-42 (RD) J-38125-11A Not Available Not Available Not Available Not Available
IX 19119960 J-35616-35 (VT) J-38125-12A Not Available Not Available Not Available Not Available
Pin Size Color Circuit Function Terminal Type ID Option
1A - BUS BAR 342 Battery Positive Voltage - -
1B 1.5 RD/BU 42 Battery Positive Voltage VI -
2A - BUS BAR 342 Battery Positive Voltage - -
2B 0.35 RD/BN 4940 Battery Positive Voltage VI -
3A - BUS BAR 342 Battery Positive Voltage - -
3B 0.75 RD/GY 4140 Battery Positive Voltage VI ULS
4A - BUS BAR 342 Battery Positive Voltage - -
4B - - - Not Occupied - -
5A - BUS BAR 342 Battery Positive Voltage - -
5B - - - Not Occupied - -
6A - BUS BAR 342 Battery Positive Voltage - -
6B 1 RD/BN 3640 Battery Positive Voltage VI N38
7A - BUS BAR 342 Battery Positive Voltage - -
7B - - - Not Occupied - -
8A - BUS BAR 342 Battery Positive Voltage - -
8B 0.35 RD 40 Battery Positive Voltage VI -
9A - BUS BAR 342 Battery Positive Voltage - -
9B 0.35 RD/GY 4840 Battery Positive Voltage VI -
10A - BUS BAR 342 Battery Positive Voltage - -
10B 3
1.5
RD/BU
RD/BU
1240
1240
Battery Positive Voltage
Battery Positive Voltage
VIII
VI
without VPH
VPH
11A - BUS BAR 342 Battery Positive Voltage - -
11B 0.75 RD/VT 4040 Battery Positive Voltage VI -
12A - BUS BAR 342 Battery Positive Voltage - -
12B 0.75 RD/BN 4240 Battery Positive Voltage VI -
13A - BUS BAR 342 Battery Positive Voltage - -
13B - - - Not Occupied - -
14A - BUS BAR 342 Battery Positive Voltage - -
14B - - - Not Occupied - -
15A - BUS BAR 342 Battery Positive Voltage - -
15B - - - Not Occupied - -
16A - BUS BAR 342 Battery Positive Voltage - -
16B - - - Not Occupied - -
17A - BUS BAR 342 Battery Positive Voltage - -
17B - - - Not Occupied - -
18A - BUS BAR 342 Battery Positive Voltage - -
18B - - - Not Occupied - -
19A - - - Not Occupied - -
19B - - - Not Occupied - -
20A - - - Not Occupied - -
20B - - - Not Occupied - -
21A - - - Not Occupied - -
21B - - - Not Occupied - -
22A 0.35
0.5
RD/GN
RD/GN
4440
4440
Battery Positive Voltage
Battery Positive Voltage
VI -
-
22B - BUS BAR 1240 Battery Positive Voltage - -
23A 0.5 RD/VT 3340 Battery Positive Voltage VI (KL9+M5N)/(-KL9)
23B 3
3
RD/BU
RD/BU
1240
1240
Battery Positive Voltage
Battery Positive Voltage
IX VPH
without VPH
24A 0.5 RD/BU 3240 Battery Positive Voltage VI -
24B - BUS BAR 1240 Battery Positive Voltage - -
25A 0.75 VT/GY 1439 Run/Crank Ignition 1 Voltage VI UVD
25B 0.5 VT/WH 239 Run/Crank Ignition 1 Voltage VI UVD
26A 1 VT 1001 Retained Accessory Power Ignition VI A1LL+K4C
26B 0.5 VT 4601 Retained Accessory Power Fused Control VI K4C-A1SLS
27A 0.5 RD/BU 3240 Battery Positive Voltage VI -
27B 0.35 RD/YE 3040 Battery Positive Voltage VI -
28A - - - Not Occupied - -
28B - - - Not Occupied - -
29A 0.5 WH/BN 6815 Inadvertent Power Control VI -
29B 0.5 WH/BN 6815 Inadvertent Power Control VI -
30A - - - Not Occupied - -
30B - - - Not Occupied - -
31A - BUS BAR 342 Battery Positive Voltage - -
31B - - - Not Occupied - -
32A - BUS BAR 342 Battery Positive Voltage - -
32B - - - Not Occupied - -
33A - BUS BAR 342 Battery Positive Voltage - -
33B 4 RD/VT 542 Battery Positive Voltage II -
R1 1.5 RD/BU 42 Battery Positive Voltage V -
R2 1.5 VT 1001 Retained Accessory Power Ignition V A1LL+K4C
R3 0.35 BK 1350 Ground VII -
R4 - - - Not Occupied - -
R5 0.35 GY/GN 4083 RAP Relay 2 Coil Control VII -
R6 3 RD/BU 1240 Battery Positive Voltage I VPH
R7 1.5 RD/BU 1240 Battery Positive Voltage V VPH
R8 0.35 GY/VT 3264 Logistic Mode Relay Close Control VII VPH
R9 0.35 BK 1350 Ground VII VPH
R10 0.35 VT/BU 3263 Logistic Mode Relay Open Control VII VPH
R11 0.35 RD/GY 4840 Battery Positive Voltage III -
R12 0.5 BN/GY 4048 Glove Box Door Release Control IV -
R13 0.35 BK 1350 Ground VII -
R14 - - - Not Occupied - -
R15 0.35 BN/WH 4046 Glove Box Door Release Relay Control VII -