LEMON Manuals: Even more car manuals for everyone: 1960-2025
Home >> Cadillac >> 2017 >> XTS Base >> Repair and Diagnosis >> Quick Lookups >> Electrical Component Locations >> Component Locator - Electrical Center Identification Views >> Electrical Center Identification Views >> X51A Fuse Block - Instrument Panel Top View Fuses
April 5, 2026: LEMON Manuals is launched! Read the announcement.

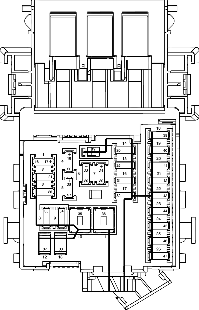
X51A Fuse Block - Instrument Panel Top View Fuses

Fig 1: X51A Fuse Block - Instrument Panel Top View Fuses
GM2668187Courtesy of GENERAL MOTORS COMPANY
X51A FUSE BLOCK - INSTRUMENT PANEL FUSE IDENTIFICATION LEGEND

No. Device Label Name Device Assigned Name Rating Description
Fuses 
1 - F1DA 10A
  • K73 Telematics Communication Interface Control Module
2 - F2DA 10A
  • K9 Body Control Module
3 - F3DA 15A
  • K9 Body Control Module
4 - F4DA 15A
  • A11 Radio
  • A33 Media Disc Player
  • K48 Infotainment Faceplate Control Module
  • X82 Audio/Video Input Adapter
  • X83 Auxiliary Audio Input
5 - F5DA 15A
  • A13 Rear Audio Control Module
  • K73 Telematics Communication Interface Control Module
  • P16 Instrument Cluster
  • P17 Info Display Module
  • P29 Head-Up Display
6 - F6DA 20A
  • X80D Accessory Power Receptacle - Center Console Compartment
  • X80G Accessory Power Receptacle - Instrument Panel
7 - F7DA 20A
  • X80H Accessory Power Receptacle - Center Console
  • X81 Accessory Power Outlet - 110V AC (K16)
8 - F8DA 15A
  • K9 Body Control Module
9 - F9DA 15A
  • K9 Body Control Module
10 - F10DA 30A
  • K9 Body Control Module
11 - F11DA 40A
  • K8 Blower Control Module
12 - F12DA 25A
  • S64P Seat Adjuster Switch - Passenger
13 - F13DA 25A
  • K40 Seat Memory Control Module (A45)
  • S64D Seat Adjuster Switch - Driver (-A45)
14 - F14DA 7.5A
  • X84 Data Link Connector
15 - F15DA 10A
  • K36 Inflatable Restraint Sensing and Diagnostic Module
16 - F16DA 10A
  • KR95B Rear Compartment Lid Unlatch Relay
17 - F17DA 10A
  • K33 HVAC Control Module
18 - F18DA 30A
  • F4DA
  • F5DA
19 - F19DA 10A
  • K60 Steering Column Lock Control Module
20 - F20DA 5A
  • B60 Passenger Presence Sensor
21 - F21DA 20A
  • K56 Serial Data Gateway Module
22 - F22DA 2A
  • S48C Multifunction Switch 1 - Instrument Panel
  • S48D Multifunction Switch 2 - Instrument Panel
  • X85 Steering Wheel Air Bag Coil
23 - F23DA 15A
  • K9 Body Control Module
24 - F24DA 15A
  • K9 Body Control Module
25 - F25DA 15A
  • K76 Steering Column Control Module
26 - F26DA 30A
  • T1 Accessory AC/DC Power Inverter Module