LEMON Manuals: Even more car manuals for everyone: 1960-2025
Home >> Dodge and Ram >> 2002 >> Caravan EC >> Repair and Diagnosis >> Body & Frame >> Body, Cab Control Systems >> Body Control Modules >> System Tests >> Manual Temperature Control >> Front And Rear Blower Output 1 Open
April 5, 2026: LEMON Manuals is launched! Read the announcement.

Front And Rear Blower Output 1 Open

NOTE: After making any repairs, perform BODY VERIFICATION TEST  under VERIFICATION TESTS.
  1. Turn ignition switch to ON position. Using scan tool, read Front Control Module (FCM) DTCs. If both FRONT/REAR BLOWER OUTPUT 1 OPEN and FRONT/REAR BLOWER OUTPUT 2 OPEN DTC/fault messages are set in Front Control Module (FCM), go to next step. If both codes are not set, replace FCM. See FRONT CONTROL MODULE .
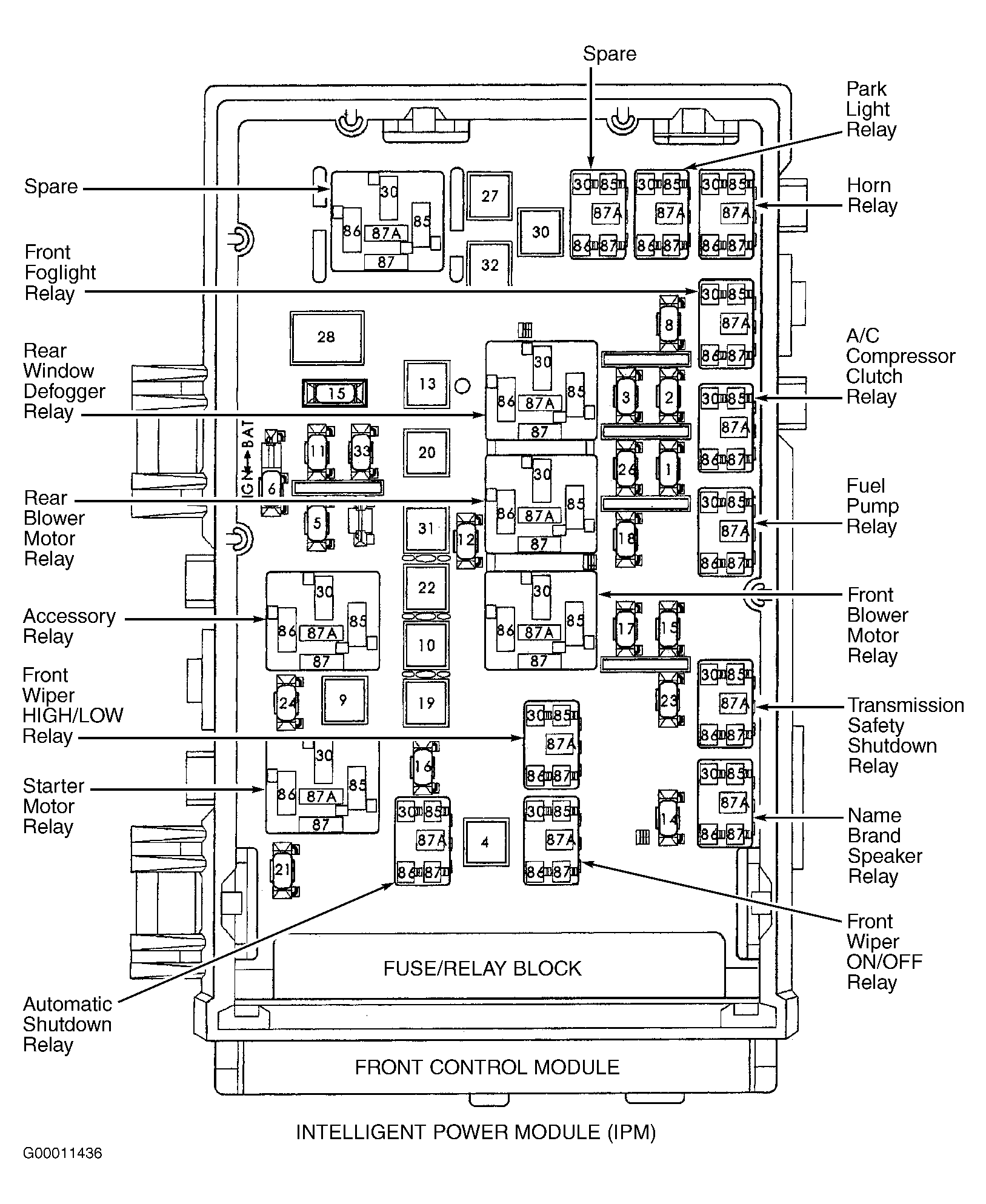
  2. Remove either front blower motor relay or rear blower motor relay from Intelligent Power Module (IPM). See Fig 1 and Fig 2 . Using a test light connected to ground, probe IPM cavity No. 86 of removed blower motor relay. See Fig 3. If test light illuminates, go to next step. If test light does not illuminate, check power feed circuit to IPM for an open. See POWER DISTRIBUTION in appropriate SYSTEM WIRING DIAGRAMS article in ELECTRICAL. If power feed circuit is okay, replace IPM.
  3. Turn ignition switch to OFF position. Substitute known-good relays for both front blower motor relay and rear blower motor relay. Turn ignition switch to ON position. Using scan tool, erase DTCs. Turn ignition switch to OFF position. Wait 30 seconds. Turn ignition switch to ON position. Using scan tool, read DTCs. If FRONT & REAR BLOWER OUTPUT 1 OPEN or FRONT & REAR BLOWER OUTPUT 2 OPEN DTC/fault codes reset, go to next step. If DTC/fault messages do not reset, replace both front and rear blower motor relays.
  4. Turn ignition switch to OFF position. Remove Front Control Module (FCM) from IPM. See Fig 1. Remove front and rear blower motor relays from IPM. Using DVOM, measure resistance between ground and appropriate terminal of IPM for FCM connector cavity No. 30. If resistance is less than 5 ohms, replace Intelligent Power Module (IPM). If resistance is 5 ohms or more, go to next step.
  5. Measure resistance of blower motor relay control circuit between front blower motor relay cavity No. 30 and FCM connector cavity No. 30 at IPM. If resistance is less than 5 ohms, replace Front Control Module (FCM). If resistance is 5 ohms or more, replace IPM.
Fig 1: Locating Intelligent Power Module (IPM)
G00011435Courtesy of CHRYSLER CORP.
Fig 2: Identifying Relay Locations Of Intelligent Power Module (IPM)
G00011436Courtesy of CHRYSLER CORP.
Fig 3: Identifying Blower Motor Relay Terminals & Relay Cavities
G96E31041Courtesy of CHRYSLER CORP.