LEMON Manuals: Even more car manuals for everyone: 1960-2025
Home >> Dodge and Ram >> 2013 >> Challenger SXT Plus >> Repair and Diagnosis >> External Pages >> Different car >> Section 1015 (Module Communications Network System) >> Diagnostic Tests >> Communications Network >> Pinpoint Tests >> Pinpoint Test G: The Power Steering Control Module (PSCM) Does Not Respond To The Scan Tool >> Pinpoint Test G: The Power Steering Control Module (PSCM) Does Not Respond To The Scan Tool
April 5, 2026: LEMON Manuals is launched! Read the announcement.

Pinpoint Test G: The Power Steering Control Module (PSCM) Does Not Respond To The Scan Tool

WARNING: This page is about a different car, the 2008 Mercury Mariner and 2008 Ford Escape. However, it is still accessible from the selected car via links, so may be relevant.
NOTE: Use the correct probe adapter(s) when making measurements. Failure to use the correct probe adapter(s) may damage the connector.
  1. G1 CHECK THE PSCM VOLTAGE SUPPLY CIRCUIT FOR AN OPEN 
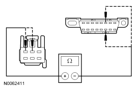
    • Disconnect: PSCM C1463a
    • Connect the battery ground cable.
    • Key in ON position.
    • Measure the voltage between the PSCM C1463a-1, circuit CBP35 (YE/GY), harness side and ground.
    • Fig 1: Measuring Voltage
      GF0042743Courtesy of FORD MOTOR CO.
    • Is the voltage greater than 10 volts? 
    1. YES  : Go to  G2.
    2. NO  : VERIFY the smart junction box (SJB) fuse 35 (10A) is OK. If OK, REPAIR the circuit in question. CLEAR the DTCs. REPEAT the network test with the scan tool.
  2. G2 CHECK THE PSCM GROUND CIRCUIT FOR AN OPEN 
    • Key in OFF position.
    • Measure the resistance between PSCM C1463b-2, circuit GD116 (BK/VT), harness side and ground.
    • Fig 2: Measuring Resistance
      GF0042744Courtesy of FORD MOTOR CO.
    • Is the resistance less than 5 ohms? 
    1. YES  : Go to  G3.
    2. NO  : REPAIR the circuit. CLEAR the DTCs. REPEAT the network test with the scan tool.
  3. G3 CHECK THE HS-CAN CIRCUITS BETWEEN THE PSCM AND THE DATA LINK CONNECTOR (DLC) FOR AN OPEN 
    • Measure the resistance between the PSCM C1463a-2, circuit VDB04 (WH/BU), harness side and the DLC C251-6, circuit VDB04 (WH/BU), harness side; and between the PSCM C1463a-3, circuit VDB05 (WH), harness side and the DLC C251-14, circuit VDB05 (WH), harness side.
    • Fig 3: Measuring Resistance
      GF0042745Courtesy of FORD MOTOR CO.
    • Are the resistances less than 5 ohms? 
    1. YES  : Go to  G4.
    2. NO  : REPAIR the circuit in question. CLEAR the DTCs. REPEAT the network test with the scan tool.
  4. G4 CHECK FOR CORRECT PSCM OPERATION 
    • Disconnect all the PSCM connectors.
    • Check for:
      • corrosion
      • damaged pins
      • pushed-out pins
    • Connect all the PSCM connectors and make sure they seat correctly.
    • Operate the system and verify the concern is still present.
    • Is the concern still present? 
    1. YES  : INSTALL a new PSCM. REFER to STEERING SYSTEM - GENERAL INFORMATION article. CLEAR the DTCs. REPEAT the network test with the scan tool.
    2. NO  : The system is operating correctly at this time. The concern may have been caused by a loose or corroded connector. CLEAR the DTCs. REPEAT the network test with the scan tool.