LEMON Manuals: Even more car manuals for everyone: 1960-2025
Home >> Ford >> 1990 >> Taurus SHO >> Repair and Diagnosis >> Electrical >> Charging Systems >> Alternator - W/External Regulator >> Description
April 5, 2026: LEMON Manuals is launched! Read the announcement.

Alternator - W/External Regulator: Description

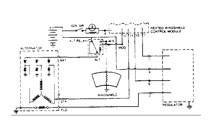
Current is supplied from the alternator/regulator system to rotating field of alternator through 2 brushes and 2 slip rings. Power is produced in the form of alternating current and is rectified to direct current by 6 diodes. See Fig 1 & 2. If equipped, the heated windshield and heated windshield control module are components of the charging system. See Figure.

Some models are optionally equipped. See appropriate ALTERNATOR article in this section listed below.

Fig 1: Circuit Diagram of Warning Lamp System
G106372Courtesy of FORD MOTOR CO.
Fig 2: Circuit Diagram of Ammeter System
G106373Courtesy of FORD MOTOR CO.