LEMON Manuals: Even more car manuals for everyone: 1960-2025
Home >> Ford >> 2009 >> Explorer 2WD V8-4.6L >> Repair and Diagnosis >> Body and Frame >> Frame >> Trailer Hitch >> Service and Repair
April 5, 2026: LEMON Manuals is launched! Read the announcement.

Trailer Hitch: Service and Repair




Trailer Hitch


Material:






Removal and Installation

NOTE: The factory rear trailer hitch crossmember is welded to the frame. The service replacement rear trailer hitch crossmember will be bolted to the frame.

All vehicles
1. Remove the spare tire.
2. Remove the rear bumper cover.
3. Disconnect the trailer wiring harness.

Explorer/Mountaineer
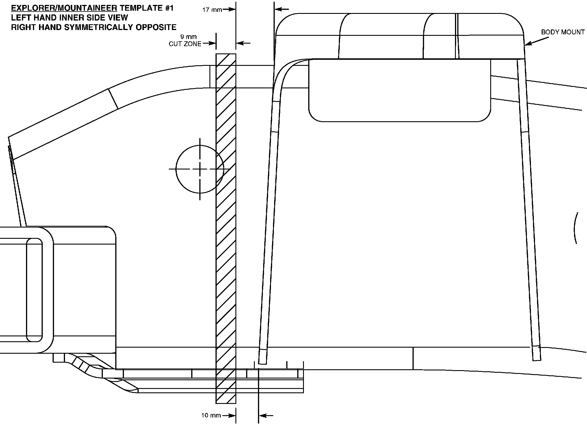
4. Cut the rear rails vertically at least 10-18 mm (0.39-0.70 in) behind the rear body/box mount leg.
- Use Explorer/Mountaineer template No. 1.

EXPLORER/MOUNTAINEER TEMPLATE # 1, LEFT HAND INNER SIDE VIEW, RIGHT HAND SYMMETRICALLY OPPOSITE:






5. Drill 18 mm (0.688 in) diameter holes for the inboard and outboard attachments to each frame rail.
- For the inboard side use Explorer/Mountaineer template No. 2.

EXPLORER/MOUNTAINEER TEMPLATE # 2, LEFT HAND INNER SIDE VIEW, RIGHT HAND INNER SYMMETRICALLY OPPOSITE TO LEFT HAND INNER:






- For the outboard side use Explorer/Mountaineer template No. 3.

EXPLORER/MOUNTAINEER TEMPLATE # 3, LEFT HAND OUTER SIDE VIEW, RIGHT HAND INNER SYMMETRICALLY OPPOSITE TO LEFT HAND INNER:






Explorer Sport Trac
6. Cut the rear rails vertically at least 10-18 mm (0.39-0.70 in) behind the rear body/box mount leg.
- Use Sport Trac template No. 1.

SPORT TRAC TEMPLATE # 1, LEFT HAND INNER SIDE VIEW, RIGHT HAND SYMMETRICALLY OPPOSITE:






7. Drill 18 mm (0.688 in) diameter holes for the inboard and outboard attachments to each frame rail.
- Use Sport Trac Template No. 2.

SPORT TRAC TEMPLATE # 2, LEFT HAND INNER SIDE VIEW, RIGHT HAND INNER SYMMETRICALLY OPPOSITE TO LEFT HAND INNER:






- Use Sport Trac template No. 3.

SPORT TRAC TEMPLATE # 3, LEFT HAND OUTER SIDE VIEW, RIGHT HAND INNER SYMMETRICALLY OPPOSITE TO LEFT HAND INNER:






All vehicles
8. Deburr the cut edges of the frame rail and the drilled holes.
9. Clean the inner and outer surfaces of the frame rails, making sure all mating surfaces are free of foreign material.
10. Apply 3 even coats of the specified anti-corrosion coating onto the inner and outer surfaces of the frame rails where bare metal is present.

11. NOTE: It may be necessary to spread apart or pull together the frame rails slightly to get the brackets to fit.

Insert the new trailer hitch crossmember assembly into the frame.







12. Hand-start all 8 bolts into the weld nuts in the hitch brackets.
13. Tighten the inboard bolts.
- Tighten to 235 Nm (174 lb-ft).






14. Tighten the outboard bolts.
- Tighten to 235 Nm (174 lb-ft).







15. Install the trailer wiring harness.
16. Install the rear bumper cover.
17. Install the spare tire.