LEMON Manuals: Even more car manuals for everyone: 1960-2025
Home >> Honda >> 2004 >> Civic L4-1.7L SOHC >> Repair and Diagnosis >> Body and Frame >> Frame >> Service and Repair >> Frame Repair Chart
April 5, 2026: LEMON Manuals is launched! Read the announcement.

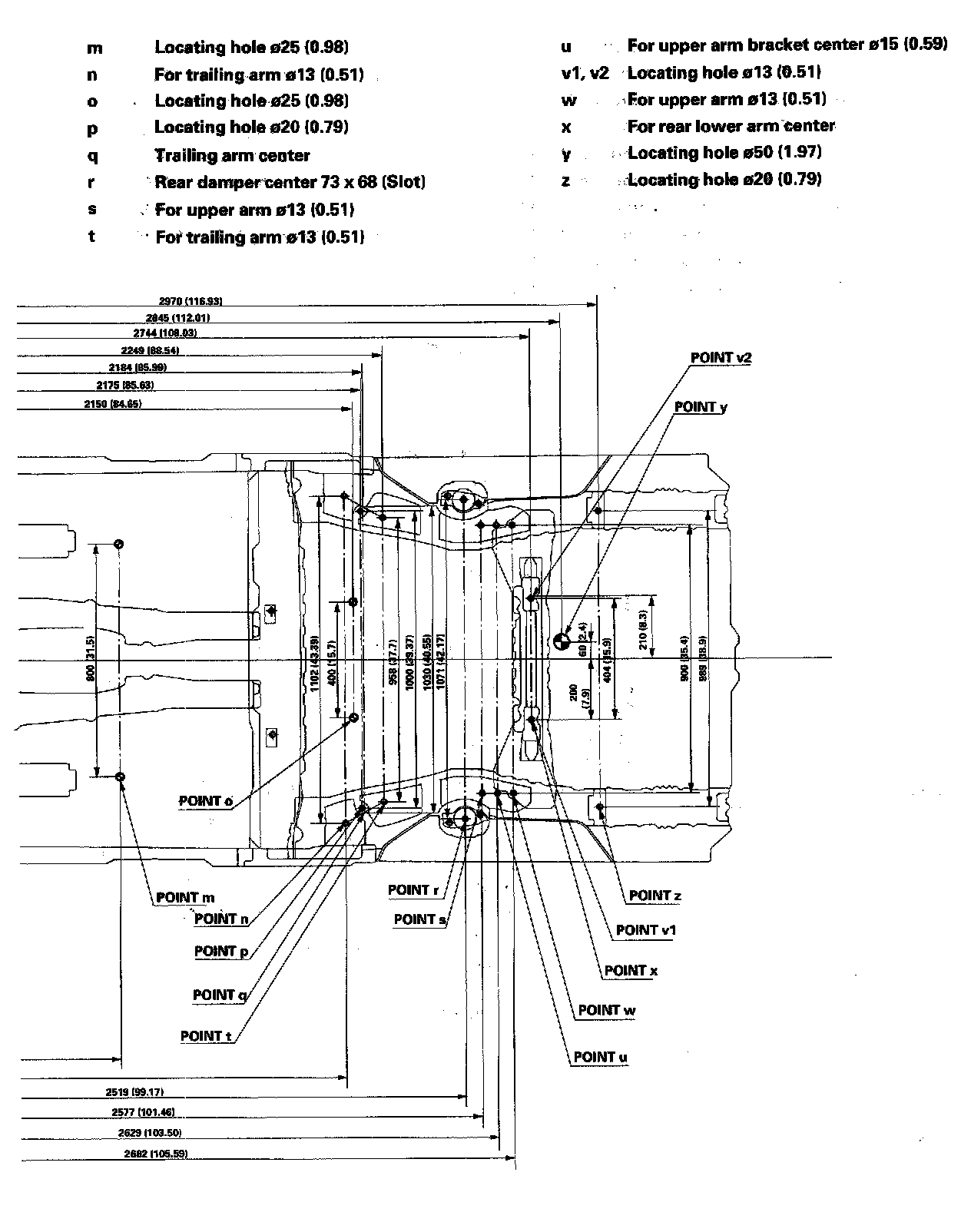
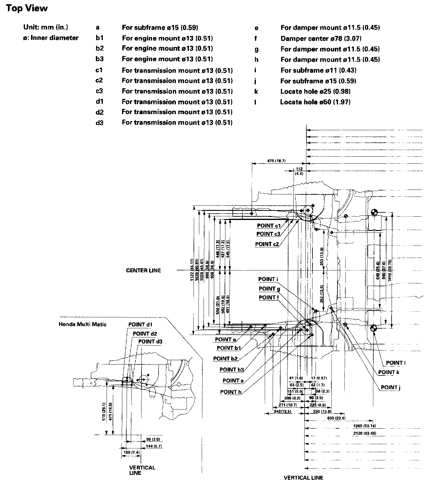
Frame Repair Chart