LEMON Manuals: Even more car manuals for everyone: 1960-2025
Home >> Honda >> 2008 >> Pilot 2WD V6-3.5L >> Repair and Diagnosis >> Diagrams >> Electrical Diagrams >> Antitheft and Alarm Systems >> Security System/Security Alarm System
April 5, 2026: LEMON Manuals is launched! Read the announcement.

Security System/Security Alarm System

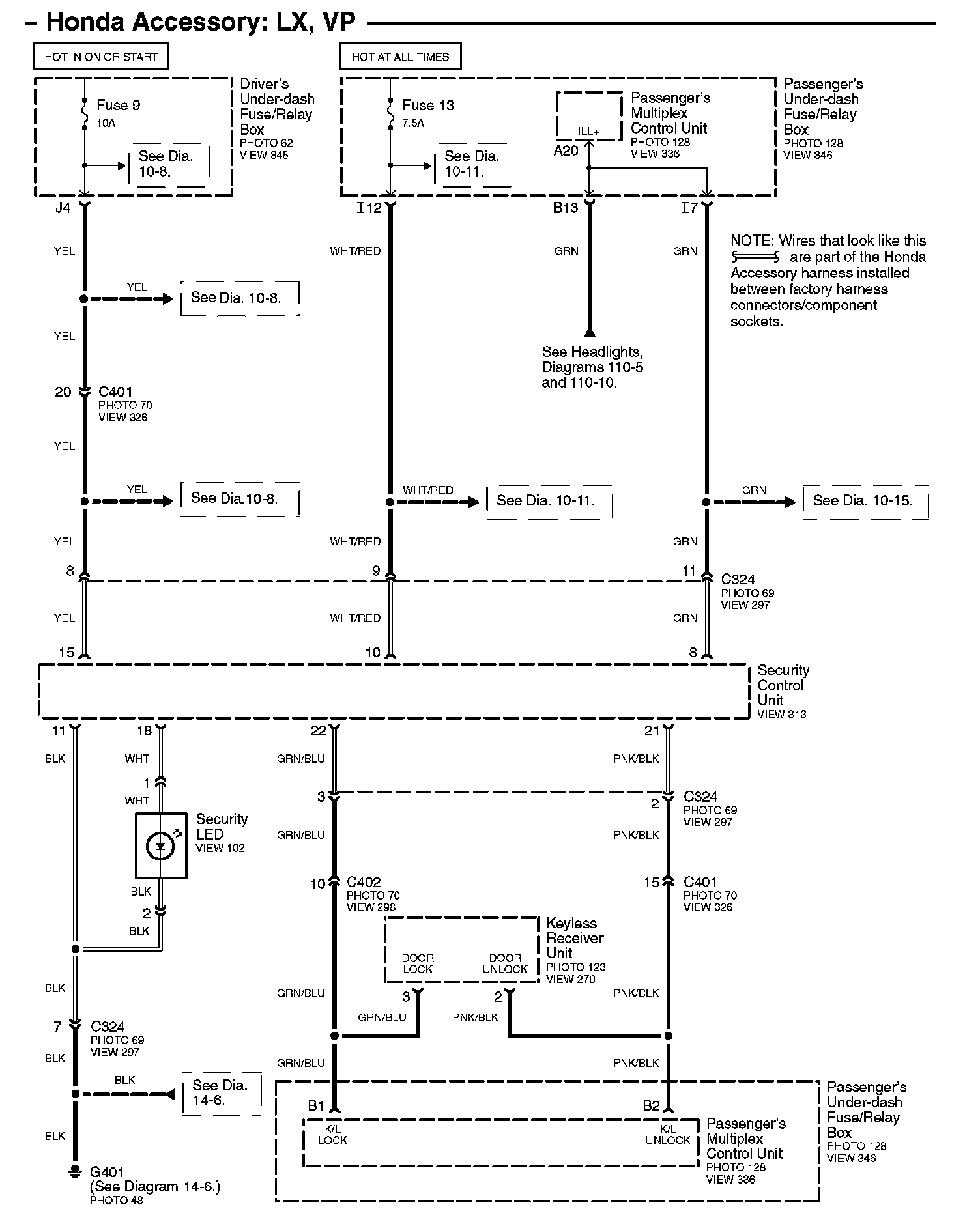
Diagram 133-0:






Diagram 133-1:






Diagram 133-2:






Diagrams: Other diagrams referred to by number (See Diagram ##-#, etc.) within these diagrams can be found at Diagrams by Number. Diagrams By Number

Locations: Location photographs (references to PHOTOS) referred to within these diagrams can be found at Locations by Photo Number. Locations By Photo Number

Connector Views: Connector terminal views (references to VIEWS) referred to within these diagrams can be found at Connector Views by View Number. Connector Views By View Number