LEMON Manuals: Even more car manuals for everyone: 1960-2025
Home >> Honda >> 2013 >> Fit Base, Automatic Trans >> Repair and Diagnosis >> Body & Frame >> Frames, Subframes & Crossmembers >> Frame Repair Diagram >> Top View
April 5, 2026: LEMON Manuals is launched! Read the announcement.

Top View

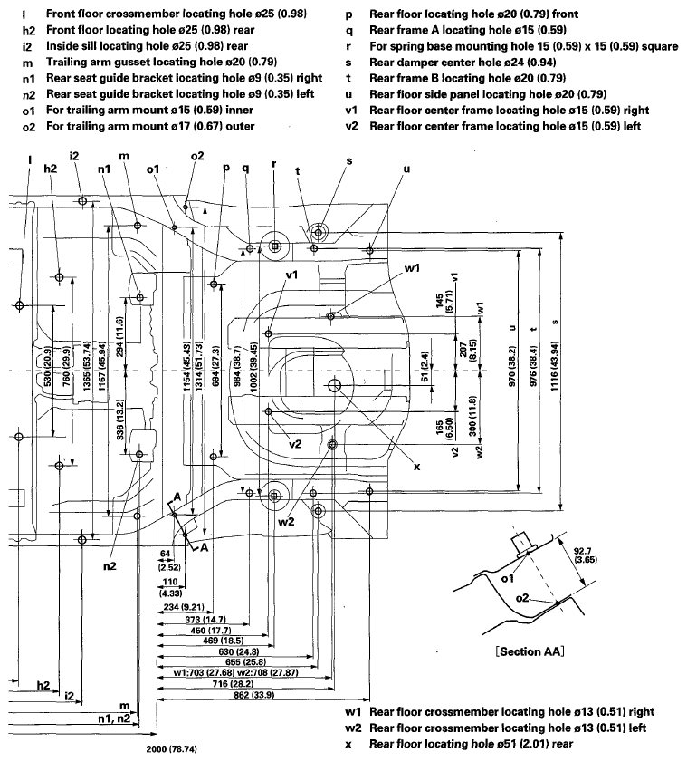
Fig 1: Top View Frame Repair Diagram (1 Of 2) With Torque Specifications
G05959748Courtesy of AMERICAN HONDA MOTOR CO., INC.
Fig 2: Top View Frame Repair Diagram (2 Of 2) With Torque Specifications
G05959749Courtesy of AMERICAN HONDA MOTOR CO., INC.