LEMON Manuals: Even more car manuals for everyone: 1960-2025
Home >> Hummer >> 2009 >> H3 L5-3.7L >> Repair and Diagnosis >> Diagrams >> Electrical Diagrams >> Body Control Systems
April 5, 2026: LEMON Manuals is launched! Read the announcement.

Body Control Systems




Body Control System Schematics

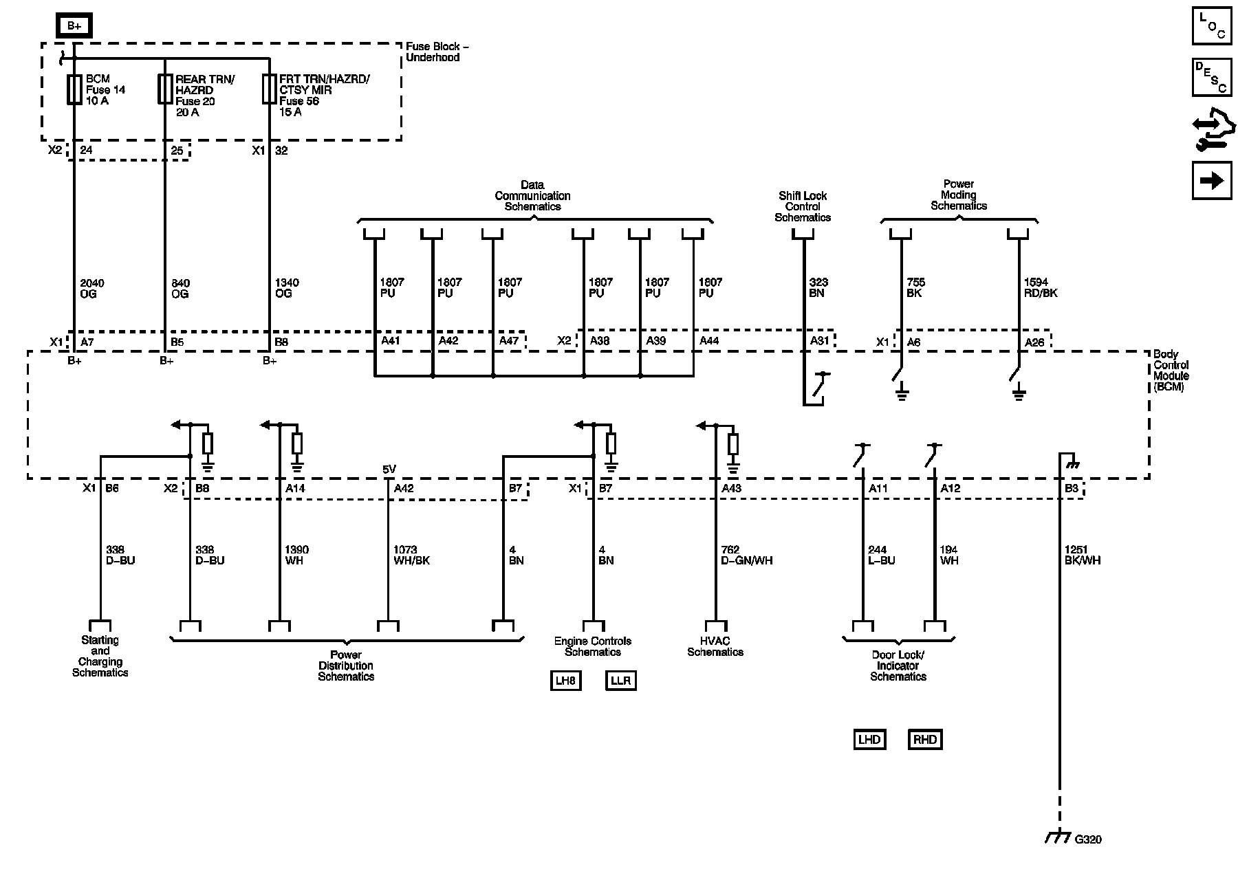
Power, Ground, Serial Data, and Power Moding References





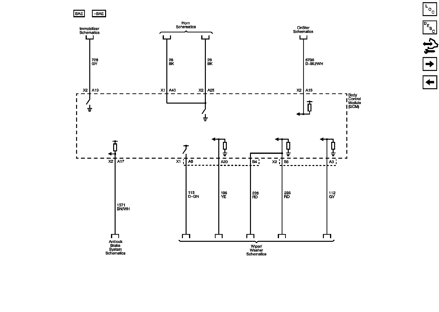
Antilock Brake, Horn, Theft, and Wiper/Washer References





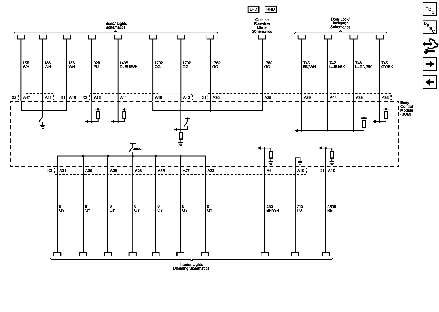
Vehicle Access, Interior Lights, and Interior Lights Dimming References





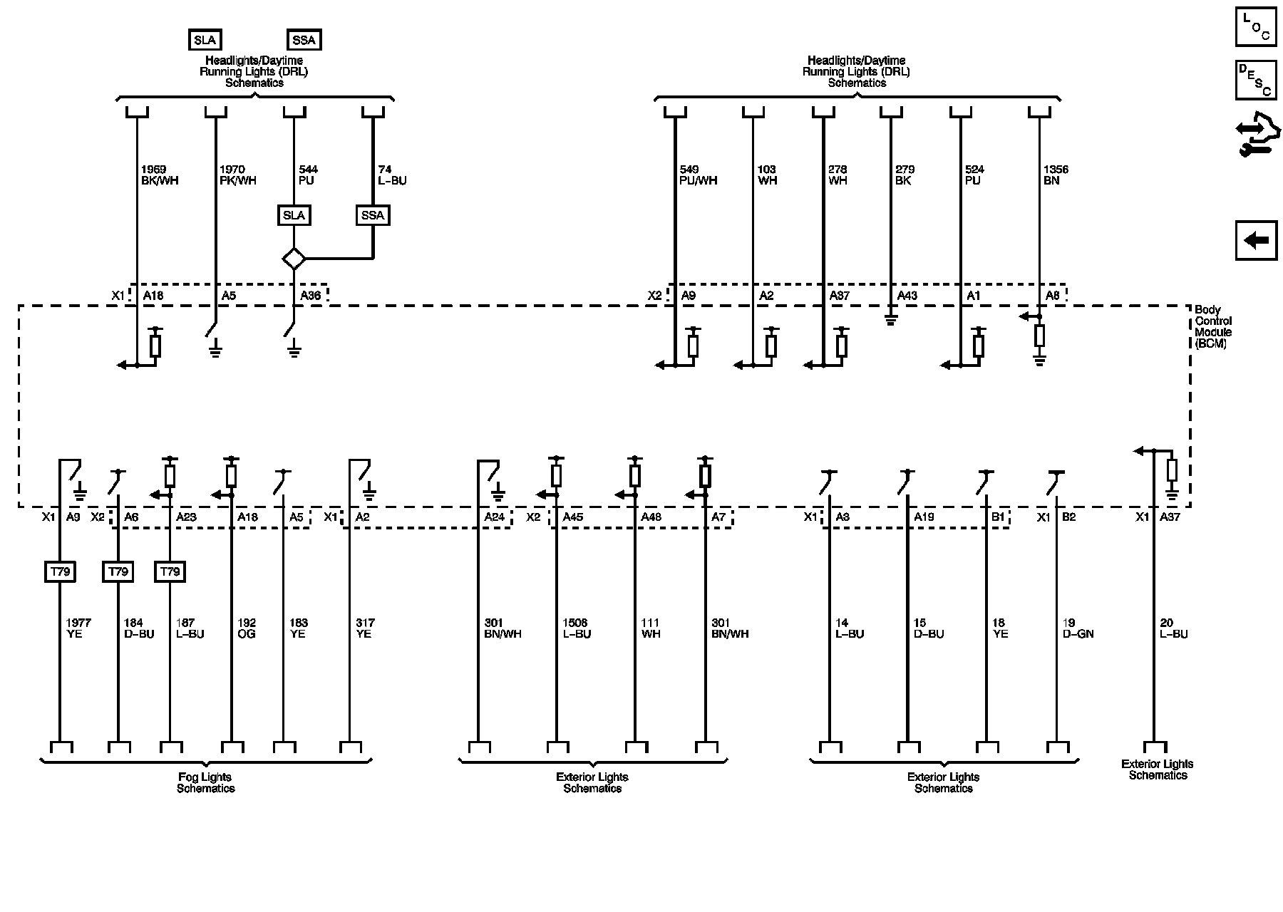
Exterior Lights References