LEMON Manuals: Even more car manuals for everyone: 1960-2025
Home >> Hyundai >> 2005 >> XG350 Base >> Repair and Diagnosis >> Steering >> Power Steering >> Steering System >> EPS (Electronic Power Steering) System >> Electronic Power Steering System >> EPS Control Module Circuit
April 5, 2026: LEMON Manuals is launched! Read the announcement.

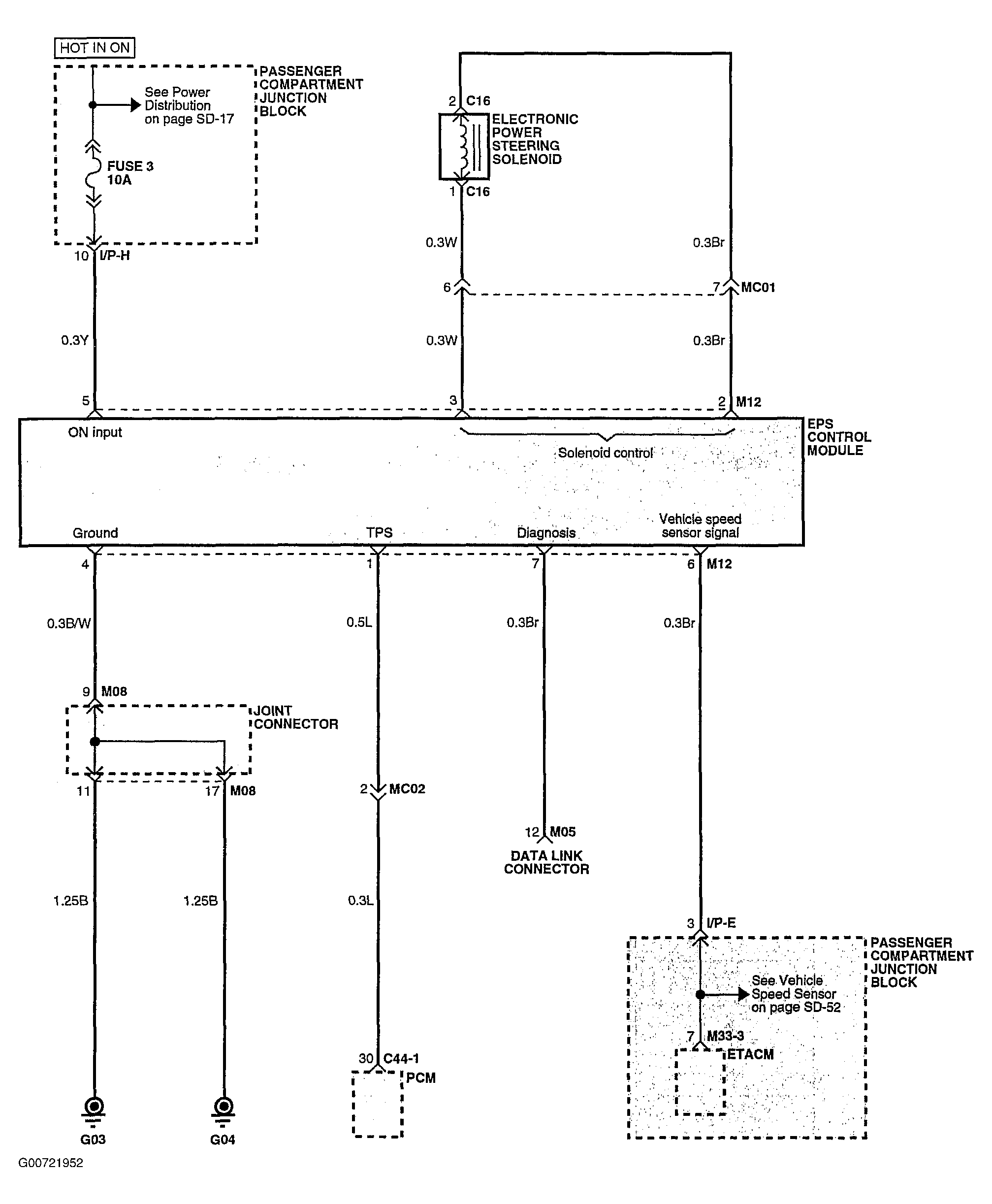
EPS Control Module Circuit

Fig 1: EPS Control Module Circuit
G00721952Courtesy of HYUNDAI MOTOR CO.