LEMON Manuals: Even more car manuals for everyone: 1960-2025
Home >> Lexus >> 2003 >> GS 430 >> Repair and Diagnosis >> External Pages >> Different car >> Section 359 (Power Source) >> Inspection
April 5, 2026: LEMON Manuals is launched! Read the announcement.

Section 359 (Power Source): Inspection

WARNING: This page is about a different car, the 2004 Lexus GS 430 and 2004 Lexus GS 300. However, it is still accessible from the selected car via links, so may be relevant.
  1. INSPECT ENGINE ROOM NO. 1 JUNCTION BLOCK CIRCUIT 
    Fig 1: Identifying Passenger Side Instrument Panel Junction Block (1 Of 2)
    G03471002Courtesy of © TOYOTA, LICENSE AGREEMENT TMS1002
    1. Remove the fuse from the junction block and inspect the connector on junction block side.
      TESTER CONNECTION SPECIFIED CONDITION

      Fuse Tester connection Condition Specified condition
      MAIN 2 - Ground Constant Battery positive voltage
      ABS NO. 1 : 4 - Ground Constant Battery positive voltage
      ALT 6 - Ground Constant Battery positive voltage
      ABS 8 - Ground Constant Battery positive voltage
      H-LP CLN 10 - Ground Constant Battery positive voltage
      RAD NO. 1 12 - Ground Constant Battery positive voltage
      ALT-S 14 - Ground Constant Battery positive voltage
      EFI 16 - Ground Constant Battery positive voltage
      TURN HAZ 18 - Ground Constant Battery positive voltage
      TEL 20 - Ground Constant Battery positive voltage
      AM2 22 - Ground Constant Battery positive voltage
      ETCS 24 - Ground Constant Battery positive voltage
      HORN 26 - Ground Constant Battery positive voltage
      D FR DOOR 28 - Ground Constant Battery positive voltage
      P FR DOOR 30 - Ground Constant Battery positive voltage
      ECU-B1 32 - Ground Constant Battery positive voltage
      HTR 33 - Ground Constant Battery positive voltage
      FAN MAIN 35 - Ground Constant Battery positive voltage
      CDS FAN 37 - Ground Ignition switch ON Battery positive voltage
      RAD FAN 39 - Ground Ignition switch ON Battery positive voltage
      H-LP R LWR 41 - Ground Light control switch HEAD Battery positive voltage
      H-LP L LWR 43 - Ground Light control switch HEAD Battery positive voltage
      D.R.L No. 1 45 - Ground Light control switch HEAD Battery positive voltage
      D.R.L No. 2 49 - Ground Light control switch HEAD Battery positive voltage

      If the circuit is not as specified, inspect the circuits connected to other parts.

    2. Remove the relay from the junction block and inspect the connector on junction block side.
    TESTER CONNECTION SPECIFIED CONDITION

    Relay Tester connection Condition Specified condition
    H-LP 51 - Ground Constant Battery positive voltage
    H-LP 53 - Ground Constant Battery positive voltage
    ST 55 - Ground Constant Continuity
    ST 58 - Ground Constant Battery positive voltage
    EFI MAIN 60 - Ground Constant Continuity
    EFI MAIN 62 - Ground Constant Battery positive voltage
    ENG MAIN 63 - Ground Constant Battery positive voltage
    ENG MAIN 66 - Ground Constant Continuity

    If the circuit is not as specified, inspect the circuits connected to other parts.

  2. INSPECT ENGINE ROOM NO. 3 RELAY BLOCK CIRCUIT 
    Fig 2: Identifying Passenger Side Instrument Panel Junction Block (2 Of 2)
    G03471003Courtesy of © TOYOTA, LICENSE AGREEMENT TMS1002

    Remove the relay from the relay block and inspect the connector on relay block side.

    TESTER CONNECTION SPECIFIED CONDITION

    Fuse Tester connection Condition Specified condition
    FAN NO. 1 3 - Ground Ignition switch ON Battery positive voltage
    FAN NO. 2 8 - Ground Ignition switch ON Battery positive voltage
    A/C COMP 13 - Ground Ignition switch ON Battery positive voltage
    FAN NO. 3 17 - Ground Ignition switch ON Battery positive voltage
    DIMMER 20 - Ground Constant Battery positive voltage

    If the circuit is not as specified, inspect the circuits connected to other parts.

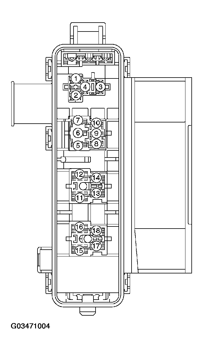
  3. INSPECT ENGINE ROOM NO. 2 RELAY BLOCK CIRCUIT 
    Fig 3: Inspecting Engine Room No. 2 Relay Block Circuit
    G03471004Courtesy of © TOYOTA, LICENSE AGREEMENT TMS1002

    Remove the relay from the relay block and inspect the connector on relay block side.

    TESTER CONNECTION SPECIFIED CONDITION

    Relay Tester connection Condition Specified condition
    HORN 1 - Ground Constant Battery positive voltage
    HORN 2 - Ground Horn switch ON Continuity
    HORN 4 - Ground Constant Battery positive voltage
    ABS SOL 5 - Ground Constant Battery positive voltage
    ABS SOL 6 - Ground Constant Continuity
    TRC MTR 11 - Ground Constant Battery positive voltage
    ABS MTR 15 - Ground Constant Battery positive voltage

    If the circuit is not as specified, inspect the circuits connected to other parts.

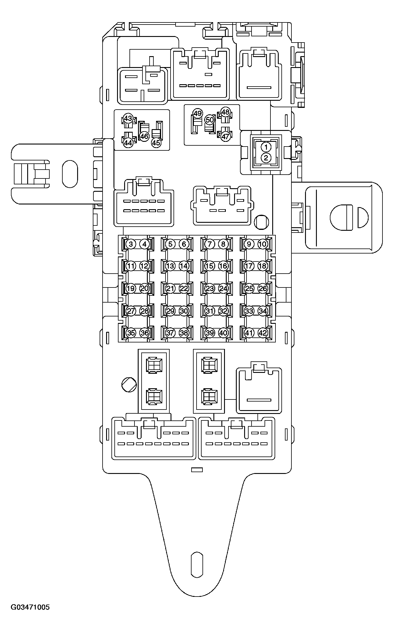
  4. INSPECT DRIVER SIDE JUNCTION BLOCK CIRCUIT 
    Fig 4: Inspecting Driver Side Junction Block Circuit
    G03471005Courtesy of © TOYOTA, LICENSE AGREEMENT TMS1002
    1. Remove the fuse from the junction block and inspect the connector on junction block side.
      TESTER CONNECTION SPECIFIED CONDITION

      Fuse Tester connection Condition Specified condition
      AM1 1 - Ground Constant Battery positive voltage
      WASHER 3 - Ground Ignition switch ON Battery positive voltage
      FOG 5 - Ground Constant Battery positive voltage
      TAIL 7 - Ground Light control switch TAIL or HEAD Battery positive voltage
      GAUGE 11 - Ground Ignition switch ON Battery positive voltage
      FUEL OPN 13 - Ground Constant Battery positive voltage
      PANEL 17 - Ground Light control switch TAIL or HEAD Battery positive voltage
      HEATER 19 - Ground Ignition switch ON Battery positive voltage
      SRS-B 21 - Ground Constant Battery positive voltage
      DP/SEAT 23 - Ground Constant Battery positive voltage
      RADIO NO. 2 25 - Ground Ignition switch ACC or ON Battery positive voltage
      WIPER 27 - Ground Ignition switch ON Battery positive voltage
      OBD 29 - Ground Constant Battery positive voltage
      STOP 31 - Ground Constant Battery positive voltage
      CIG 33 - Ground Ignition switch ACC or ON Battery positive voltage
      ECU-IG 35 - Ground Ignition switch ON Battery positive voltage
      ST 37 - Ground Ignition switch ON Battery positive voltage
      IGN 39 - Ground Ignition switch ON Battery positive voltage
      D RR DOOR 41 - Ground Constant Battery positive voltage

      If the circuit is not as specified, inspect the circuits connected to other parts.

    2. Remove the relay from the junction block and inspect the connector on junction block side.
    TESTER CONNECTION SPECIFIED CONDITION

    Relay Tester connection Condition Specified condition
    Fog light 43 - Ground Constant Battery positive voltage
    Fog light 44 - Ground Constant Continuity
    Fog light 46 - Ground Light control switch HEAD Battery positive voltage
    Taillight 47 - Ground Constant Battery positive voltage
    Taillight 48 - Ground Constant Continuity
    Taillight 50 - Ground Constant Continuity

    If the circuit is not as specified, inspect the circuits connected to other parts.

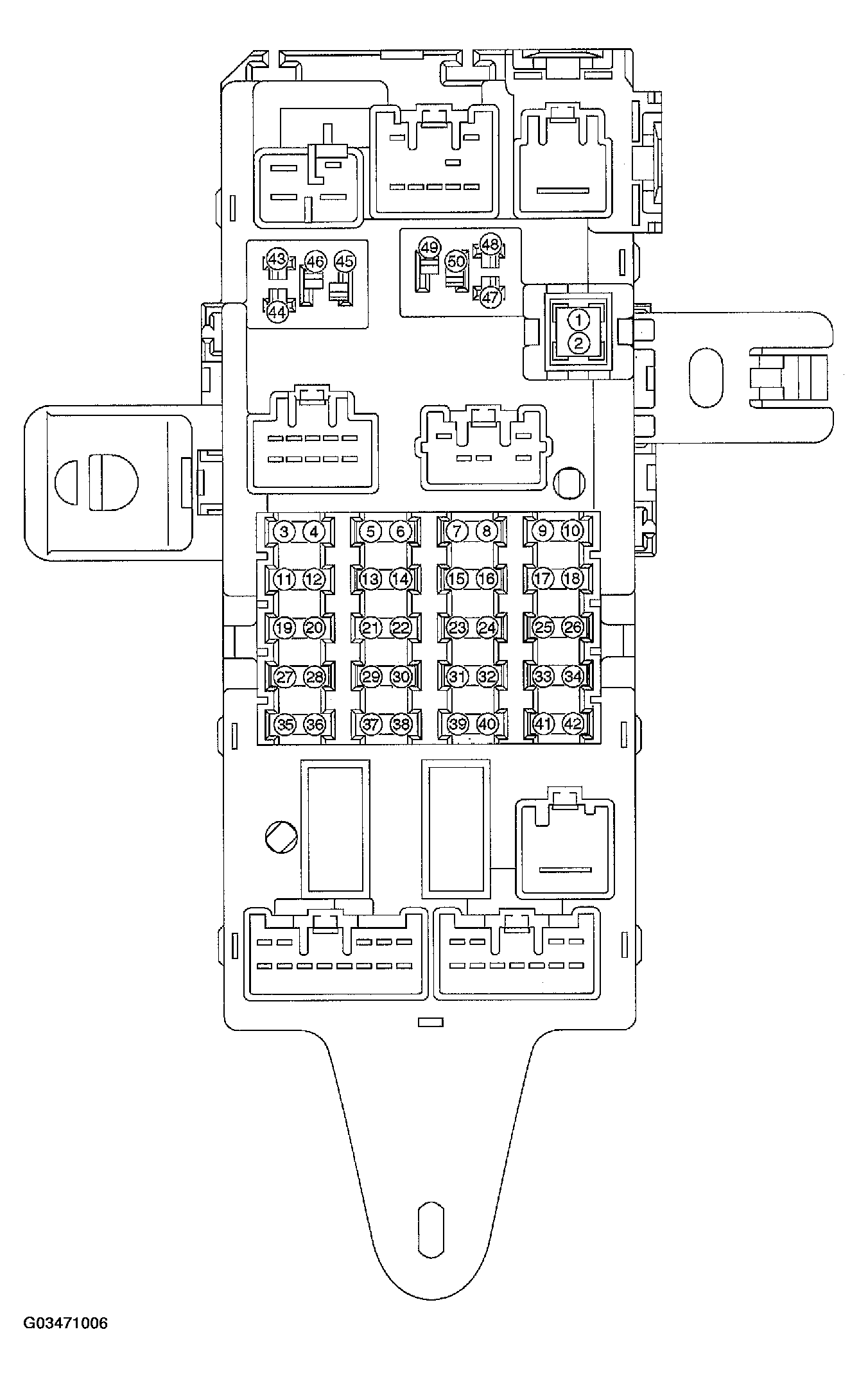
  5. INSPECT PASSENGER SIDE JUNCTION BLOCK CIRCUIT 
    Fig 5: Inspecting Passenger Side Junction Block Circuit
    G03471006Courtesy of © TOYOTA, LICENSE AGREEMENT TMS1002
    1. Remove the fuse from the junction block and inspect the connector on junction block side.
      TESTER CONNECTION SPECIFIED CONDITION

      Fuse Tester connection Condition Specified condition
      DEF 1 - Ground Constant Battery positive voltage
      MIR HTR 7 - Ground Ignition switch ON Battery positive voltage
      S/ROOF 13 - Ground Constant Battery positive voltage
      ECU-B3 15 - Ground Constant Battery positive voltage
      P P/SEAT 23 - Ground Constant Battery positive voltage
      DOME 25 - Ground Constant Battery positive voltage
      S-HTR 27 - Ground Ignition switch ON Battery positive voltage
      TV 31 - Ground Constant Battery positive voltage
      ECU-B2 33 - Ground Constant Battery positive voltage
      P FR DOOR 41 - Ground Constant Battery positive voltage

      If the circuit is not as specified, inspect the circuits connected to other parts.

    2. Remove the relay from the junction block and inspect the - connector on junction block side.
    TESTER CONNECTION SPECIFIED CONDITION

    Relay Tester connection Condition Specified condition
    Ignition Main 43 - Ground Ignition switch ON Battery positive voltage
    Mirror Heater 47 - Ground Ignition switch ON Battery positive voltage.
    Mirror Heater 50 - Ground Constant Battery positive Voltage

    If the circuit is hot as specified, inspect the circuits connected to other parts.

  6. INSPECT PASSENGER COWL SIDE RELAY BLOCK CIRCUIT 
    Fig 6: Inspecting Passenger Cowl Side Relay Block Circuit
    G03471007Courtesy of © TOYOTA, LICENSE AGREEMENT TMS1002

    Remove the relay from the relay block and inspect the connector on relay block side.

    TESTER CONNECTION SPECIFIED CONDITION

    Relay Tester connection Condition Specified condition
    DEF 1 - Ground Constant Battery positive voltage
    HEATER 5 - Ground Constant Battery positive voltage

    If the circuit is not as specified, inspect the circuits connected to other parts.