LEMON Manuals: Even more car manuals for everyone: 1960-2025
Home >> Lexus >> 2003 >> SC 430 >> Repair and Diagnosis >> External Pages >> Different car >> Section 375 (Power Source) >> Inspection
April 5, 2026: LEMON Manuals is launched! Read the announcement.

Section 375 (Power Source): Inspection

WARNING: This page is about a different car, the 2003 Lexus LX 470. However, it is still accessible from the selected car via links, so may be relevant.
  1. INSPECT ENGINE ROOM REPLAY BLOCK CIRCUIT 
    Fig 1: Identifying Engine Room Junction Block Circuit
    G03375393Courtesy of © TOYOTA, LICENSE AGREEMENT TMS1002
    Fig 2: Identifying Engine Room Rely Block (Back Side)
    G03375394Courtesy of © TOYOTA, LICENSE AGREEMENT TMS1002
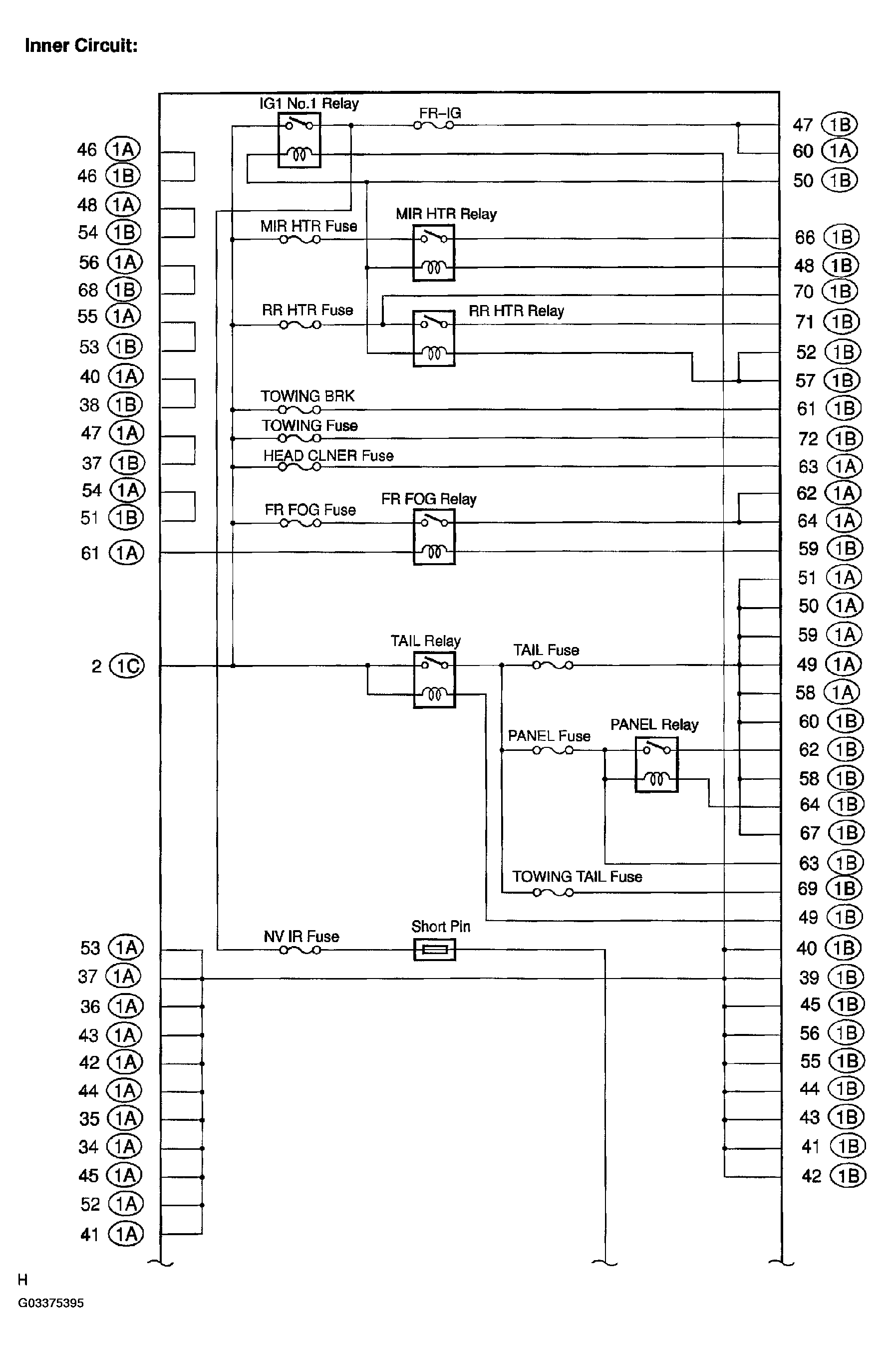
    Fig 3: Identifying Inner Circuit (1 Of 2)
    G03375395Courtesy of © TOYOTA, LICENSE AGREEMENT TMS1002
    Fig 4: Identifying Inner Circuit (2 Of 2)
    G03375396Courtesy of © TOYOTA, LICENSE AGREEMENT TMS1002
    1. Remove the fuse from the relay block and inspect the connector on the relay block side.
      CONDITION SPECIFICATION

      Fuse Tester connection Condition Specified condition
      TOWING 1-Ground Always Battery positive voltage
      MIRHTR 3-Ground Always Battery positive voltage
      RR HTR 5 - Ground Always Battery positive voltage
      HAZ-TRN 7-Ground Always Battery positive voltage
      ALT-S 9 - Ground Always Battery positive voltage
      NV-IR 13-Ground Always Battery positive voltage
      FR FOG 13-Ground Always Battery positive voltage
      TOWING BRK 15-Ground Always Battery positive voltage
      HEADCLNER 17-Ground Ignition switch ON Battery positive voltage
      FR-IG 19-Ground Ignition switch ON Battery positive voltage
      PANEL 21-Ground Light control switch HEAD or TAIL Battery positive voltage
      TOWING TAIL 23-Ground Light control switch HEAD or TAIL Battery positive voltage
      TAIL 25-Ground Light control switch HEAD or TAIL Battery positive voltage
      BAT 29-Ground Always Battery positive voltage
      TEL 31 - Ground Always Battery positive voltage
      AMP 33-Ground Always Battery positive voltage
      EFI or ECD NO.1 35-Ground Always Battery positive voltage
      AM2 37 - Ground Always Battery positive voltage
      ETCS 39-Ground Always Battery positive voltage
      HORN 41 - Ground Always Battery positive voltage
      HEAD LH-UPR 51 - Ground Light control switch HI or Flash Battery positive voltage
      HEADRH-UPR 49-Ground Light control switch HI or Flash Battery positive voltage
      HEAD LH-LWR 47 - Ground Light control switch HEAD Battery positive voltage
      HEADRH-LWR 45-Ground Light control switch HEAD Battery positive voltage
      ST1 1 - Ground Always Battery positive voltage
      AHC 1-Ground Always Battery positive voltage
      ABSNO.1 1-Ground Always Battery positive voltage
      ABS NO.2 1 - Ground Always Battery positive voltage
      STARTER 1 - Ground Always Battery positive voltage

      If the circuit is not as specified, inspect the circuits connected to other parts.

    2. Remove the relay from the relay block and inspect the connector on the relay block side.
      TESTER CONNECTION SPECIFIED CONDITION

      Relay Tester connection Condition Specified condition
      AHC 1 - Ground Ignition switch ON Battery positive voltage
      ABS SOL 1 - Ground Ignition switch ON Battery positive voltage
      ABS MTR1 1 - Ground Always Battery positive voltage
      ABS MTR2 1 - Ground Ignition switch ON Battery positive voltage
      STARTER 5 - Ground Always Continuity
      STARTER 2 - Ground Ignition switch ON Battery positive voltage
      EFI or ECD 3 - Ground Always Battery positive voltage
      C/OPN 5 - Ground Always Battery positive voltage
      C/OPN - Ground Ignition switch ON Continuity
      F/P PUMP 2 - Ground Ignition switch ON Battery positive voltage
      F/P PUMP 3 - Ground Ignition switch ON Continuity
      HTR 5 - Ground Always Battery positive voltage
      HTR 1 - Ground Ignition switch ON Continuity

      If the circuit is not as specified, inspect the circuits connected to other parts.

    3. Inspect Engine Room Relay Block Inner Circuit:

      Inspect the connector on the relay block side.

      HINT:

      Remove the relay block from the vehicle.

      CONDITION SPECIFICATION

      Relay Tester connection Condition Specified condition
      IG1 NO.1 50(1B)-40(1B) Always Continuity
      IG1NO.1 50(1B)-39(1B) Always Continuity
      IG1 NO.1 50(1B)-45(1B) Always Continuity
      IG1 NO.1 50(1B)-56(1B) Always Continuity
      IG1 NO.1 50(1B)-55(1B) Always Continuity
      IG1 NO.1 50(1B)-44(1B) Always Continuity
      IG1 NO.1 50(1B)-43(1B) Always Continuity
      IG1 NO.1 50 (1B)~41 (1B) Always Continuity
      IG1 NO.1 50 (1B) - 42 (1B) Always Continuity
      IG1 NO.1 2(1C)-47(1B) Apply B+ between terminals 50 (1B) and 40 (1B). Continuity
      IG1 NO.1 2 (1C)- 60(1 A) Apply B+ between terminals 50 (1B) and 40 (1B). Continuity
      MIR HTR 50(1B)-48(1B) Always Continuity
      MIR HTR 2(1C)-66(1B) Apply B+ between terminals 50 (1B) and 48 (1B). Continuity
      RRHTR 50(1B)-52(1B) Always Continuity
      RRHTR 50(1B)-57(1B) Always Continuity
      RRHTR 2(1C)-71 (1B) Apply B+ between terminals 50 (1B) and 52 (1B). Continuity
      RRHTR 70(1B)-71 (1B) Apply B+ between terminals 50 (1B) and 52 (1B). Continuity
      FRFOG 61 (1 A)-59(1 B) Always Continuity
      FRFOG 2 (1C)-62 (1 A) Apply B+ between terminals 61 (1 A) and 59 (1B). Continuity
      FRFOG 2 (1C)-64(1 A) Apply B+ between terminals 61 (1 A) and 59 (1B). Continuity
      TAIL 2(1C)-49(1B) Always Continuity
      TAIL 2 (1C)-51(1 A) Apply B+ between terminals 2 (1C) and 49 (1B). Continuity
      TAIL 2(1 C)-50(1 A) Apply B+ between terminals 2 (1C) and 49 (1B). Continuity
      TAIL 2 (1C.)- 59(1 A) Apply B+ between terminals 2 (1C) and 49 (1B). Continuity
      TAIL 2 (1C)- 49(1 A) Apply B+ between terminals 2 (1C) and 49 (1B). Continuity
      TAIL 2 (1C)- 58(1 A) Apply B+ between terminals 2 (1C) and 49 (1B). Continuity
      TAIL 2(1C)-60(1B) Apply B+ between terminals 2 (1C) and 49 (1B). Continuity
      TAIL 2(1C)-58(1B) Apply B+ between terminals 2 (1C) and 49 (1B). Continuity
      TAIL 2(1C)-67(1B) Apply B+ between terminals 2 (1C) and 49 (1B). Continuity
      TAIL 2(1C)-69(1B) Apply B+ between terminals 2 (1C) and 49 (1B). Continuity
      PANEL 2(1C)-64(1B) Apply B+ between terminals 2 (1C) and 49 (1B). Continuity
      HEAD 1(1C)-22(1B) Always Continuity
      HEAD 1 (1C)-33(1B) Apply B+ between terminals 1 (1C) and 22 (1B). Continuity
      HEAD 1(1C)-19(1A) Apply B+ between terminals 1 (1C) and 22 (1B). Continuity
      HEAD 1 (1C)-26(1A) Apply B+ between terminals 1 (1C) and 22 (1B). Continuity
      HEAD 1 (1C)-28(1A) Apply B+ between terminals 1 (1C) and 22 (1B). Continuity
      HEAD 1(1C)-20(1A) Apply B+ between terminals 1 (1C) and 22 (1B). Continuity
      HEAD 1(1C)-9(1A) Apply B+ between terminals 1 (1C) and 22 (1B). Continuity
      HEAD HI 1 (1C)-10(1B) Always Continuity
      HEAD HI 1(1C)-12(1A) Apply B+ between terminals 1 (1C) and 10 (1B). Continuity
      HEAD HI 1 (1C)-1 (1B) Apply B+ between terminals 1 (1C) and 10 (1B). Continuity
      HEAD HI 1(1C)-8(1A) Apply B+ between terminals 1 (1C) and 10 (1B). Continuity
      HORN 1(1C)-21(1B) Always Continuity
      HORN 1 (1C)-4(1A) Apply B+ between terminals 1 (1C) and 21 (1B). Continuity
      HORN 1(1C)-15(1A) Apply B+ between terminals 1 (1C) and 21 (1B). Continuity

      If the circuit is not as specified, replace it with relay block assembly.

      HINT:

      The relay is built in the engine room junction block. Also the relay is constructed with a relay block that is in the junction block as a unit. To disconnect the wire harness connecting with relay block is impossible. If the relay has a malfunction, replace it with the relay block assembly wire harness together.

  2. INSPECT COWL SIDE JUNCTION BLOCK LH CIRCUIT 
    Fig 5: Inspecting Cowl Side Junction Block LH Circuit
    G03375397Courtesy of © TOYOTA, LICENSE AGREEMENT TMS1002
    Fig 6: Inspecting Connector On Junction Block Back Side
    G03375398Courtesy of © TOYOTA, LICENSE AGREEMENT TMS1002
    1. Remove the fuse from the junction block and inspect the connector on the junction block side.
      TESTER CONNECTION SPECIFIED CONDITION

      Fuse Tester connection Condition Specified condition
      AHC-IG 2-Ground Ignition switch ON Battery positive voltage
      POWER HTR 4-Ground Ignition switch ON Battery positive voltage
      FUELHTR 6-Ground Ignition switch ON Battery positive voltage
      AHC-B 8 - Ground Always Battery positive voltage
      DEFOG 10-Ground Always Battery positive voltage
      AM1 12-Ground Always Battery positive voltage
      ACC 13-Ground Ignition switch ACC Battery positive voltage
      CIG 15-Ground Ignition switch ACC Battery positive voltage
      PWR OUTLET 17 - Ground Ignition switch ACC Battery positive voltage
      OBD-2 20 - Ground Always Battery positive voltage
      STOP 22 - Ground Always Battery positive voltage
      A/C 24 - Ground Ignition switch ON Battery positive voltage
      BATT CHARGE 26 - Ground Always Battery positive voltage
      DBL LOCK 39 - Ground Always Battery positive voltage
      ECU-B1 29 - Ground Always Battery positive voltage
      ECU-IG1 32 - Ground Ignition switch ON Battery positive voltage
      GAUGE1 34 - Ground Ignition switch ON Battery positive voltage
      EFI or ECD NO.2 35 - Ground Always Battery positive voltage
      RR WIPER 37 - Ground Ignition switch ON Battery positive voltage
      SUN ROOF 39 - Ground Always Battery positive voltage
      DOOR 41 - Ground Always Battery positive voltage
      LH SEAT 43 - Ground Always Battery positive voltage
      IDLE UP 46 - Ground Rear deffoger system ON Battery positive voltage

      If the circuit is not as specified, inspect the circuits connected to other parts.

    2. Remove the relay from the junction block and inspect the connector on the junction block side.
      CONDITION SPECIFICATION

      Relay Tester connection Condition Specified condition
      DOME 1 - Ground Always Battery positive voltage
      DOME 5 - Ground Always Battery positive voltage
      ACC 5 - Ground Always Battery positive voltage
      ACC 1 2-Ground Ignition switch ON Battery positive voltage
      IG1 NO.2 5-Ground Always Battery positive voltage
      IG1 NO.2 2-Ground Ignition switch ON Battery positive voltage
      DEFOG 5 - Ground Always Battery positive voltage
      DEFOG 1-Ground Ignition switch ON Battery positive voltage

      If the circuit is not as specified, inspect the circuits connected to other parts.

  3. INSPECT COWL SIDE JUNCTION BLOCK RH CIRCUIT 
    Fig 7: Inspecting Cowl Side Junction Block RH Circuit
    G03375399Courtesy of © TOYOTA, LICENSE AGREEMENT TMS1002
    Fig 8: Inspecting Connector Junction Block Back Side
    G03375400Courtesy of © TOYOTA, LICENSE AGREEMENT TMS1002
    1. Remove the fuse from the junction block and inspect the connector on the junction block side.
      TESTER CONNECTION SPECIFIED CONDITION

      Fuse Tester connection Condition Specified condition
      P/W (RL) 2 - Ground Always Battery positive voltage
      P/W (FL) 4 - Ground Always Battery positive voltage
      VGRS 2 - Ground Always Battery positive voltage
      DOME 5 - Ground Always Battery positive voltage
      RADIO 7 - Ground Always Battery positive voltage
      WASHER 10 - Ground ignition switch ON Battery positive voltage
      DIFF 12-Ground Ignition switch ON Battery positive voltage
      ECU-B2 13-Ground Always Battery positive voltage
      P/W (FR) 15-Ground Always Battery positive voltage
      P/W (RR) 17-Ground Always Battery positive voltage
      SECURITY 20 - Ground Always Battery positive voltage
      IGN 21 - Ground Ignition switch ON Battery positive voltage
      MET 23 - Ground Ignition switch ON Battery positive voltage
      GAUGE2 25 - Ground Ignition switch ON Battery positive voltage
      SEAT HTR 27 - Ground Ignition switch ON Battery positive voltage
      ECU-IG2 29 - Ground Ignition switch ON Battery positive voltage
      WIPER 31 - Ground Ignition switch ON Battery positive voltage
      RH SEAT 33 - Ground Always Battery positive voltage
      RRA/C 35 - Ground Always Battery positive voltage
      TIL & TEL 37 - Ground Always Battery positive voltage

      If the circuit is not as specified, inspect the circuits connected to other parts.

      Remove the relay from the junction block and inspect the connector on the junction block side.

      SPECIFICATION CONDITION

      Relay Tester connection Condition Specified condition
      ACCCUT 2-Ground Always Battery positive voltage
      ACCCUT 4-Ground Ignition Switch ACC Battery positive voltage
      IG1 NO.3 5 - Ground Always Battery positive voltage
      IG1 NO.3 2-Ground Ignition Switch ON Battery positive voltage

      If the circuit is not as specified, inspect the circuits connected to other parts.