LEMON Manuals: Even more car manuals for everyone: 1960-2025
Home >> Lexus >> 2005 >> RX 330 AWD >> Repair and Diagnosis >> Engine Performance >> SFI System - Diagnostics >> EVAP Inspection Procedure >> Inspection Procedure
April 5, 2026: LEMON Manuals is launched! Read the announcement.

Inspection Procedure

HINT:

Read freeze frame data. Freeze frame data records engine conditions when a malfunction is detected. When troubleshooting, freeze frame data can help determine if the vehicle was running or stopped, if the engine was warmed up or not, if the air-fuel ratio was lean or rich, and other data from the time the malfunction occurred.

  1. CHECK OTHER DTC OUTPUT (IN ADDITION TO DTC P0441, P0442, P0446 AND/OR P0456) 

    Result 

    OTHER DTC OUTPUT (IN ADDITION TO DTC P0441, P0442, P0446 AND/OR P0456)

    Display (DTC output) Proceed to
    Only P0441, P0442, P0446 and/or P0446 are output A
    P0451, P0452 and P453 are output B

    HINT:

    If any other DTCs besides P0441, P0442, P0446 and/or P0446 are output, perform the troubleshooting for those DTCs first (reference: P0451, P0452, P0453 are vapor pressure sensor malfunctions).

    1. B: Go to RELEVANT DTC CHART (See  DIAGNOSTIC TROUBLE CODE CHART   ) 
    2. A: Go to next step. 
  2. CHECK CURRENT AND PENDING DTC 
    1. Check current DTCs. Select the hand-held tester menus: DIAGNOSIS, ENHANCED OBDII, DTC INFO and CURRENT DTCS.
    2. Check pending DTCs. Select the hand-held tester menus: DIAGNOSIS, ENHANCED OBDII, DTC INFO and PENDING DTCS.

      Result 

      CURRENT AND PENDING DTC

      Current DTC Pending DTC Conclusion
      Set Set System has been malfunctioning. Problem can be specified.
      Set - System was malfunctioning in previous driving cycle. Problem may be specified.
      - Set System is malfunctioning. This is intermittent problem and caused by fuel tank cap loosing. Otherwise, this problem may be difficult to eliminate.

    HINT:

    The ECM stores the current DTC and illuminates the MIL when an emission-related component is malfunctioning in 2 consecutive driving cycles (2 trips). The MIL is turned OFF, if the component is functioning normally in 3 consecutive driving cycles. The ECM erases the current DTC, if the component is functioning normally in 40 consecutive driving cycles.

    The ECM stores the pending DTC when If the component is malfunctioning in present driving cycle (1 trip). The ECM erases the pending DTC, if the component is functioning normally in the next driving cycle.

    1. GO TO NEXT STEP. 
  3. PREDICT POSSIBLE MALFUNCTION AREA 

    Predict possible malfunction area using the matrix below.

    EVAP DTC Matrix 

    Fig 1: EVAP DTC Matrix
    G03008356Courtesy of © TOYOTA, LICENSE AGREEMENT TMS1002
    EVAP DTC Matrix

    DTCs Suspected Malfunction Area
    P0441 only EVAP VSV stuck open
    P0446 only CCV (vent valve) stuck open
    P0442 and/or P0446 Small leak
    1. GO TO NEXT STEP. 
  4. PERFORM EVAP SYSTEM CHECK 
    NOTE: The EVAP system check can be used for confirmation after the EVAP system repair. Check DTCs after performing the EVAP system check. If no pending DTC is set, the EVAP system is functioning normally and the repair is complete.
    1. Select the "mmHg" unit. Select the hand-held tester menus: DIAGNOSIS, SETUP, UNIT CONVERSION and VAPOR PRESS.
    2. Allow the engine to idle.
    3. Perform the EVAP system check to find a malfunction area. Select the hand-held tester menus: DIAGNOSIS, ENHANCED OBD II, SYSTEM CHECK and LEV II SYS CHECK.
    4. Read NOTICE and press ENTER.

    HINT:

    The EVAP system check is most accurate when the following conditions are being set:

    • Atmospheric pressure is 762 mmHg (sea level).
    • The engine coolant and intake air temperatures are 4 to 35°C (40 to 90°F).
    • The fuel tank level is 1/4 to 3/4.

      Diagram of LEVII EVAP System Check 

      Fig 2: Diagram Of LEVII EVAP System Check
      G03008357Courtesy of © TOYOTA, LICENSE AGREEMENT TMS1002
    1. GO TO NEXT STEP. 
  5. EVAP SYSTEM CHECK STEP   1  (INITIALIZE SYSTEM) 
    Fig 3: EVAP System Check Step (Initialize System)
    G03008358Courtesy of © TOYOTA, LICENSE AGREEMENT TMS1002

    Wait for 30 seconds.

    Fig 4: Levi System Check Screen (Initialize System)
    G03008359Courtesy of © TOYOTA, LICENSE AGREEMENT TMS1002
    1. GO TO NEXT STEP. 
  6. EVAP SYSTEM CHECK STEP   2  (CHECK FOR CCV) 
    Fig 5: EVAP System Check Step (Check For CCV)
    G03008360Courtesy of © TOYOTA, LICENSE AGREEMENT TMS1002
    1. Press RIGHT to go to step  2.
    2. Wait for 30 seconds and check VAPOR PRESS (EVAP pressure).
      Fig 6: Levi System Check Screen (Check For CCV)
      G03008361Courtesy of © TOYOTA, LICENSE AGREEMENT TMS1002

    Result: 

    Fig 7: Result Specifications
    G03008362Courtesy of © TOYOTA, LICENSE AGREEMENT TMS1002

    HINT:

    In this step, the intake manifold pressure (vacuum) is applied to the EVAP system. However, the fuel tank pressure does not drop due to the CCV (vent valve) open.

    1. NG: Go to step   11 
    2. OK: Go to next step. 
  7. EVAP SYSTEM CHECK STEP   3  (INITIALIZE SYSTEM) 
    Fig 8: EVAP System Check Step (Initialize System)
    G03008363Courtesy of © TOYOTA, LICENSE AGREEMENT TMS1002
    1. Press RIGHT to go to step  3.
    2. Wait for 30 seconds.
      Fig 9: Levi System Check Screen (Initialize System)
      G03008364Courtesy of © TOYOTA, LICENSE AGREEMENT TMS1002
    1. GO TO NEXT STEP. 
  8. EVAP SYSTEM CHECK STEP   4  (CHECK FOR EVAP VSV STUCK OPEN) 
    Fig 10: EVAP System Check Step (Check For EVAP VSV Stuck Open)
    G03008365Courtesy of © TOYOTA, LICENSE AGREEMENT TMS1002
    1. Press RIGHT to go to step  4.
    2. Wait for 15 seconds and check VAPOR PRESS (EVAP pressure).
      Fig 11: Levi System Check Screen (Check For EVAP VSV Stuck Open)
      G03008366Courtesy of © TOYOTA, LICENSE AGREEMENT TMS1002

    Result: 

    EVAP SYSTEM CHECK (CHECK FOR EVAP VSV STUCK OPEN)

    VAPOR PRESS Conclusion Proceed to
    Higher than 758 mmHg-a (-4 mmHg-g) Trouble area has not been found yet. OK
    Lower than 758 mmHg-a (-4 mmHg-g) EVAP VSV stuck open NG
    1. NG: Go to step   14 
    2. OK: Go to next step. 
  9. EVAP SYSTEM CHECK STEP   5  (APPLYING VACUUM) 
    Fig 12: EVAP System Check Step (Applying Vacuum)
    G03008367Courtesy of © TOYOTA, LICENSE AGREEMENT TMS1002
    1. Press RIGHT to go to step  5.
    2. Wait for 30 seconds and check VAPOR PRESS (EVAP pressure).
      Fig 13: Levi System Check Screen (Applying Vacuum)
      G03008368Courtesy of © TOYOTA, LICENSE AGREEMENT TMS1002

    Result: 

    Fig 14: EVAP System Check Step (Applying Vacuum) Table
    G03008369Courtesy of © TOYOTA, LICENSE AGREEMENT TMS1002
    NOTE:
    • If the pressure is lower than 740 mmHg-a (-22 mmHg-g), the hand-held tester closes the EVAP VSV.
      Fig 15: Levi System Check Screen (Applying Vacuum)
      G03008370Courtesy of © TOYOTA, LICENSE AGREEMENT TMS1002
    • If the pressure is lower than 735 mmHg-a (-27 mmHg-g), the hand-held tester cancels the EVAP system check.
      Fig 16: Levi System Check Screen - Error
      G03008371Courtesy of © TOYOTA, LICENSE AGREEMENT TMS1002
    1. B: Go to step   15 
    2. C: Go to step   18 
    3. A: Go to next step. 
  10. EVAP SYSTEM CHECK STEP   6  (LEAK CHECK FOR EVAP SYSTEM) 
    Fig 17: EVAP System Check Step (Leak Check For EVAP System)
    G03008372Courtesy of © TOYOTA, LICENSE AGREEMENT TMS1002
    1. Press RIGHT to go to step  6 when the VAPOR PRESS (EVAP pressure) is lower than 742 mmHg-a (-20 mmHg-g).
    2. Wait for 300 seconds and check VAPOR PRESS (EVAP pressure).
      Fig 18: Levi System Check Screen (Leak Check For EVAP System)
      G03008373Courtesy of © TOYOTA, LICENSE AGREEMENT TMS1002

    Result: 

    EVAP SYSTEM CHECK (LEAK CHECK FOR EVAP SYSTEM)

    VAPOR PRESS Conclusion Proceed to
    Less than 758 mmHg-a (-4 mmHg-g) EVAP system is functioning normally. OK
    Higher than 758 mmHg-a (-4 mmHg-g) Leakage NG
    1. NG: Go to step   18 
    2. OK: Go to step   40 
  11. CHECK CCV 
    1. Turn the ignition switch OFF.
    2. Turn the ignition switch ON.
    3. Switch the CCV (vent valve) using the hand-held tester. Select the hand-held tester menus: DIAGNOSIS, ENHANCED OBD II, ACTIVE TEST and CAN CTRL VSV.
    4. Touch the CCV and check the operation during switching the CCV.
      Fig 19: Checking Operation During Switching CCV
      G03008374Courtesy of © TOYOTA, LICENSE AGREEMENT TMS1002

      Result: 

      CCV

      CCV (Vent Valve) Conclusion Proceed to
      CCV is operated CCV is functioning normally. OK
      CCV is not operated CCV is malfunctioning. NG
    1. NG: Go to step   25 
    2. OK: Go to next step. 
  12. CHECK AIR INLET LINE RESTRICTION 
    1. Disconnect the air inlet line from the CCV.
    2. Fig 20: Checking Air Inlet Line Restriction
      G03008375Courtesy of © TOYOTA, LICENSE AGREEMENT TMS1002
    3. Remove and reinstall the fuel tank cap to release the fuel tank pressure.
    4. Allow the engine to idle.
    5. Perform step  2 of the EVAP system check.
    6. Wait for 30 seconds and check VAPOR PRESS (EVAP pressure).
      Fig 21: Levi System Check Screen (Check For CCV)
      G03008376Courtesy of © TOYOTA, LICENSE AGREEMENT TMS1002

      Result 

      AIR INLET LINE RESTRICTION

      VAPOR PRESS Conclusion Proceed to
      Higher than 752 mmHg-a (-10 mmHg-g) Blockage in canister filter A
      Lower than 752 mmHg-a (-10 mmHg-g) Blockage in CCV (vent valve) or canister B
    7. Reconnect the air inlet line to the CCV.
    1. B: Go to step 13 
    2. A: REPLACE CANISTER FILTER. 
  13. CHECK CANISTER BLOCKAGE 
    1. Turn the ignition switch OFF.
    2. Remove the CCV from the canister.
    3. Remove and reinstall the fuel tank cap to release the fuel tank pressure.
    4. Allow the engine to idle.
      Fig 22: Checking Canister Blockage
      G03008377Courtesy of © TOYOTA, LICENSE AGREEMENT TMS1002
    5. Perform step  2 of the EVAP system check.
    6. Wait for 30 seconds and check VAPOR PRESS (EVAP pressure).
      Fig 23: Levi System Check Screen (Check For CCV)
      G03008378Courtesy of © TOYOTA, LICENSE AGREEMENT TMS1002

      Result 

      CANISTER BLOCKAGE

      VAPOR PRESS Conclusion Proceed to
      Higher than 752 mmHg-a (-10 mmHg-g) CCV (vent valve) stuck closed A
      Lower than 752 mmHg-a (-10 mmHg-g) Blockage in canister B
    1. B: CHECK AND REPLACE CHARCOAL CANISTER (See  CHARCOAL CANISTER ASSY (3MZ-FE)  ) 
    2. A: REPLACE CCV (VENT VALVE). 
  14. CHECK EVAP VSV (FOR EVAP VSV STUCK OPEN) 
    1. Turn the ignition switch OFF.
    2. Disconnect the purge hose of the canister from the EVAP VSV.
    3. Disconnect the EVAP VSV connector.
    4. Allow the engine to idle.
    5. Touch the EVAP VSV port to check the vacuum.
      Fig 24: Checking EVAP VSV (For EVAP VSV Stuck Open)
      G03008379Courtesy of © TOYOTA, LICENSE AGREEMENT TMS1002

      Result 

      EVAP VSV (FOR EVAP VSV STUCK OPEN)

      EVAP VSV Conclusion Proceed to
      Vacuum is applied. EVAP VSV is malfunctioning. A
      No vacuum is applied. Electrical circuit of EVAP VSV is malfunctioning. B
    1. B: Go to step   29 
    2. A: REPLACE EVAP VSV. 
  15. CHECK FUEL TANK CAP 
    1. Remove the fuel tank cap and reinstall it until a few click sound is heard.
    2. Clear the DTCs.
    3. Check pending DTCs after the EVAP system check If no pending DTC is set, the DTC(s) was set due to the fuel cap loosening.

    If necessary, replace the fuel cap.

    1. NG: Go to step   16 
    2. OK: REPAIR IS COMPLETE. 
  16. CHECK EVAP VSV (FOR EVAP VSV STUCK CLOSED) 
    1. Disconnect the purge hose of the canister from the EVAP VSV.
    2. Allow the engine to idle.
    3. Switch the EVAP VSV using the hand-held tester. Select the hand-held tester menus: DIAGNOSIS, ENHANCED OBD II, ACTIVE TEST and EVAP VSV.
    4. Touch the EVAP VSV port to check the vacuum.
      Fig 25: Checking EVAP VSV (For EVAP VSV Stuck Closed)
      G03008380Courtesy of © TOYOTA, LICENSE AGREEMENT TMS1002

    HINT:

    The EVAP VSV can be tested with the EVAP Test Equipment (go to step  39).

    Result: 

    EVAP VSV (FOR EVAP VSV STUCK CLOSED)

    EVAP VSV Conclusion Proceed to
    Vacuum is applied when EVAP VSV is ON. EVAP VSV is functioning normally. OK
    No vacuum is applied when EVAP VSV is OFF. EVAP VSV is functioning normally. OK
    No vacuum is applied when EVAP VSV is ON. Electrical circuit of EVAP VSV is malfunctioning. NG
    1. NG: Go to step   31 
    2. OK: Go to next step. 
  17. CHECK CCV (FOR CCV STUCK OPEN) 
    1. Turn the ignition switch OFF.
    2. Remove the CCV (vent valve) and plug the canister.
    3. Allow the engine to idle.
    4. Fig 26: Checking CCV (For CCV Stuck Open)
      G03008381Courtesy of © TOYOTA, LICENSE AGREEMENT TMS1002
    5. Apply vacuum to the EVAP system with the EVAP system check. Perform step  5 "Applying Vacuum".
    6. Wait for 30 seconds and check the VAPOR PRESS (EVAP pressure).
      Fig 27: Levi System Check Screen (Applying Vacuum)
      G03008382Courtesy of © TOYOTA, LICENSE AGREEMENT TMS1002

      Result: 

      CCV (FOR CCV STUCK OPEN)

      VAPOR PRESS Conclusion Proceed to
      Lower than 747 mmHg-a (-15 mmHg-g) CCV (vent valve) stuck open A
      Higher than 747 mmHg-a (-15 mmHg-g) Blockage in canister Blockage in purge line (Fuel tank - Canister) Blockage in purge line (Fuel tank-EVAP VSV) B
    1. B: Go to step   20 
    2. A: Go to step   24 
  18. CHECK FUEL TANK CAP 
    1. Remove the fuel tank cap and reinstall it until a few click sound is heard.
    2. Clear the DTCs.
    3. Check pending DTCs after the EVAP system check If no pending DTC is set, the DTC(s) was set due to the fuel cap loosening.

    If necessary, replace the fuel cap.

    1. NG: Go to step 19 
    2. OK: REPAIR IS COMPLETE. 
  19. CHECK FILLER NECK DAMAGE 
    1. Remove the fuel tank cap.
    2. Visually inspect the filler neck for damage.
    3. Reinstall the fuel tank cap.
      Fig 28: Checking Filler Neck Damage
      G03008383Courtesy of © TOYOTA, LICENSE AGREEMENT TMS1002

    HINT:

    A leak point may be found with the EVAP Test Equipment (go to step  36).

    1. NG: REPLACE FUEL TANK INLET PIPE 
    2. OK: Go to next step. 
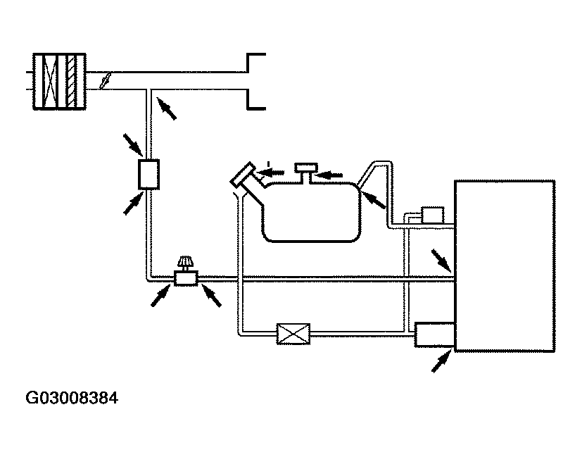
  20. CHECK PURGE LINE (CANISTER - FUEL TANK) 
    1. Check that the pipes and hoses are connected correctly.
    2. Check that the pipes and hoses are not loose or disconnected.
    3. Check the pipes and hoses have no damage or blockage.
    4. Fig 29: Checking Purge Line (Canister - Fuel Tank)
      G03008384Courtesy of © TOYOTA, LICENSE AGREEMENT TMS1002
    1. NG: REPLACE PURGE HOSE 
    2. OK: Go to next step. 
  21. CHECK PURGE LINE (CANISTER - EVAP VSV) 
    1. Check that the pipes and hoses are connected correctly.
    2. Check that the pipes and hoses are not loose or disconnected.
    3. Check the pipes and hoses have no damage or blockage.
    1. NG: REPLACE PURGE HOSE 
    2. OK: Go to next step. 
  22. INSPECT CANISTER (See  INSPECTION  ) 
    1. NG: replace canister 
    2. OK: Go to next step. 
  23. INSPECT FUEL TANK 
    1. Check that the fuel tank has no damage.
    2. Check the fuel inlet pipe has no damage.
    3. Check leakage from the fuel pump unit.
    1. NG: REPAIR OR REPLACE DEFECTIVE OR DAMAGED PARTS 
    2. OK: Go to step   40 . 
  24. CHECK CCV 
    1. Stop the engine and turn the ignition switch ON.
    2. Switch the CCV (vent valve) using the hand-held tester. Select the hand-held tester menus: DIAGNOSIS, ENHANCED OBD II, ACTIVE TEST and CAN CTRL VSV.
    3. Touch the CCV and check the operation during switching the CCV.
      Fig 30: Checking CCV
      G03008385Courtesy of © TOYOTA, LICENSE AGREEMENT TMS1002

      Result 

      CCV

      CCV (Vent Valve) Conclusion Proceed to
      CCV is operated Electrical circuit of CCV is functioning normally. A
      CCV is not operated Electrical circuit of CCV is malfunctioning. B
    1. B: Go to step   26 
    2. A: Go to next step. 
  25. CHECK CCV 
    1. Turn the ignition switch OFF.
    2. Remove the CCV (vent valve).
    3. Connect the CCV connector,
    4. Turn the ignition switch ON.
    5. Switch the CCV using the hand-held tester. Select the hand-held tester menus: DIAGNOSIS, ENHANCED OBD II, ACTIVE TEST and CAN CTRL VSV.
    6. Apply air to the CCV port using an air gun and check the airflow.
      Fig 31: Checking CCV
      G03008386Courtesy of © TOYOTA, LICENSE AGREEMENT TMS1002

      Result: 

      CCV

      CCV (Vent Valve) Conclusion Proceed to
      Air flows when CCV is OFF (open). CCV is functioning normally. A
      Air does not flows when CCV is ON (close). Electrical circuit of CCV is malfunctioning. A
      Air flows when CCV is ON (close). CCV is malfunctioning. B
      Air does not flows when CCV is OFF (open) CCV is malfunctioning. B
    1. B: REPLACE CCV (See  CHARCOAL CANISTER ASSY (3MZ-FE)  ) 
    2. A: Go to next step. 
  26. CHECK WIRE HARNESS AND CONNECTOR (CCV - POWER SOURCE) 
    1. Turn the ignition switch OFF.
    2. Disconnect the CCV connector.
    3. Turn the ignition switch ON.
    4. Measure the voltage between terminal 2 of the wire harness side connector and body ground.
      Fig 32: Checking Wire Harness And Connector (CCV - Power Source)
      G03008387Courtesy of © TOYOTA, LICENSE AGREEMENT TMS1002

      Result 

      CCV - POWER SOURCE

      Voltage Conclusion Proceed to
      Battery voltage Wire harness (CCV - Power source) is OK OK
      0 to 3 V Wire harness (CCV - Power source) is short circuit. NG
    1. NG: REPAIR OR REPLACE WIRE HARNESS 
    2. OK: Go to next step. 
  27. CHECK WIRE HARNESS AND CONNECTOR (CCV - ECM) 
    1. Switch the CCV using the hand-held tester. Select the hand-held tester menus: DIAGNOSIS, ENHANCED OBD II, ACTIVE TEST and CAN CTRL VSV.
    2. Measure the resistance between terminal 1 of the wire harness side connector and body ground.
      Fig 33: Checking Wire Harness And Connector (CCV - ECM)
      G03008388Courtesy of © TOYOTA, LICENSE AGREEMENT TMS1002

      Result 

      CCV - ECM

      Resistance Conclusion Proceed to
      More than 10 kΩ when CCV is OFF. ECM and wire harness (CCV - ECM) are OK. OK
      Less than 10 kΩ when CCV is ON. CCV is malfunctioning. OK
      No change Either of wire harness (CCV - ECM) or ECM is malfunctioning. NG
    1. NG: Go to step 28 
    2. OK: REPLACE CCV. 
  28. CHECK WIRE HARNESS AND CONNECTOR (CCV - ECM) 
    1. Check the wire harness between the ECM and CCV.
    2. Turn the ignition switch OFF.
    3. Disconnect the E8 ECM connector.
    4. Measure the resistance between the CCV and ECM wire harness side connectors.
      Fig 34: Checking Wire Harness And Connector (CCV - ECM)
      G03008389Courtesy of © TOYOTA, LICENSE AGREEMENT TMS1002

      Standard 

      CCV - ECM

      Tester Connection Specified Condition
      1 (CCV) - E8-27 (ECM) Less than 10 kΩ
      1 (CCV) - Body ground More than 10 kΩ
    1. NG: REPAIR OR REPLACE HARNESS AND CONNECTOR 
    2. OK: REPLACE ECM (See  REPLACEMENT  ). 
  29. CHECK EVAP VSV 
    1. Turn the ignition switch ON.
    2. Switch the EVAP VSV using the hand-held tester. Select the hand-held tester menus: DIAGNOSIS, ENHANCED OBD II, ACTIVE TEST and EVAP VSV (Alone).
    3. Listen to click sounds to check the EVAP VSV operation.
      Fig 35: Checking EVAP VSV
      G03008390Courtesy of © TOYOTA, LICENSE AGREEMENT TMS1002

      Result: 

      EVAP VSV

      EVAP VSV Conclusion Proceed to
      Operated Electrical circuit of EVAP VSV is functioning normally. OK
      Not operated Electrical circuit of EVAP VSV is malfunctioning. NG
    1. NG: Go to step   32 
    2. OK: Go to next step. 
  30. CHECK EVAP VSV 
    1. Disconnect the purge hose of the canister from the EVAP VSV.
    2. Start the engine.
    3. Switch the EVAP VSV using the hand-held tester. Select the hand-held tester menus: DIAGNOSIS, ENHANCED OBD II, ACTIVE TEST and EVAP VSV.
    4. Touch the EVAP VSV port to check the vacuum.
    5. Fig 36: Checking EVAP VSV
      G03008391Courtesy of © TOYOTA, LICENSE AGREEMENT TMS1002

    HINT:

    The EVAP VSV can be tested with the EVAP Test Equipment (go to step  39).

    Result 

    EVAP VSV

    EVAP VSV Conclusion Proceed to
    Vacuum is applied when EVAP VSV is ON. EVAP VSV is functioning normally. OK
    No vacuum is applied when EVAP VSV is OFF. EVAP VSV is functioning normally. OK
    No vacuum is applied when EVAP VSV is ON Electrical circuit of EVAP VSV is malfunctioning NG
    1. NG: Go to step   32 
    2. OK: Go to next step. 
  31. CHECK PURGE LINE (EVAP VSV - THROTTLE BODY) 
    1. Check that the vacuum hoses are connected correctly.
    2. Check that the vacuum hoses are not loose or disconnected.
    3. Check the vacuum hoses and tubes for cracks, holes, damage, or blockage.
    4. Fig 37: Checking Purge Line (EVAP VSV - Throttle Body)
      G03008392Courtesy of © TOYOTA, LICENSE AGREEMENT TMS1002
    1. NG: REPLACE PURGE HOSE 
    2. OK: REPLACE EVAP VSV. 
  32. INSPECT EVAP VSV 
    1. Turn the ignition switch OFF.
    2. Disconnect the EVAP VSV connector.
    3. Measure the resistance of the EVAP VSV.
      Fig 38: Inspecting EVAP VSV
      G03008393Courtesy of © TOYOTA, LICENSE AGREEMENT TMS1002

      Standard 

      EVAP VSV

      Tester Connection Specified Condition
      Between terminals 26 to 30 Ω at 20°C (68°F)
      Each terminal - Body ground 10 kΩ or more
    1. NG: REPLACE EVAP VSV 
    2. OK: Go to next step. 
  33. INSPECT EVAP VSV 
    1. Remove the EVAP VSV.
    2. Apply air to the EVAP VSV using an air gun, check the airflow.
      Fig 39: Applying Air To EVAP VSV Using Air Gun To Check Airflow
      G03008394Courtesy of © TOYOTA, LICENSE AGREEMENT TMS1002
    3. Apply battery positive voltage across the terminals.
    4. Apply air to the EVAP VSV using an air gun, check the airflow.
      Fig 40: Applying Battery Positive Voltage Across Terminals To Check Airflow
      G03008395Courtesy of © TOYOTA, LICENSE AGREEMENT TMS1002

      Result: 

      EVAP VSV

      EVAP VSV Conclusion Proceed to
      Air does not flow when EVAP VSV is OFF. EVAP VSV is functioning normally. OK
      Air flows when EVAP VSV is ON. EVAP VSV is functioning normally. OK
      Air flows when EVAP VSV is OFF. EVAP VSV is malfunctioning. NG
      Air does not flow when EVAP VSV is ON. EVAP VSV is malfunctioning. NG
    1. NG: REPLACE EVAP VSV 
    2. OK: Go to next step. 
  34. CHECK WIRE HARNESS AND CONNECTOR (EVAP VSV - POWER SOURCE) 
    1. Turn the ignition switch ON.
    2. Measure the voltage between the terminal 1 of the wire harness side and body ground.
      Fig 41: Checking Wire Harness And Connector (EVAP VSV - Power Source)
      G03008396Courtesy of © TOYOTA, LICENSE AGREEMENT TMS1002

      Result 

      EVAP VSV - POWER SOURCE

      Voltage Conclusion Proceed to
      Battery voltage Wire harness (EVAP VSV - Power source) is OK. OK
      0 to 3 V. Wire harness (EVAP VSV - Power source) is short circuit. NG
    1. NG: REPAIR OR REPLACE HARNESS AND CONNECTOR 
    2. OK: Go to next step. 
  35. CHECK WIRE HARNESS AND CONNECTOR (EVAP VSV - ECM) 
    1. Turn the ignition switch OFF.
    2. Disconnect the E8 ECM connector.
    3. Turn the ignition switch ON.
    4. Measure the voltage between the terminal 34 of the wire harness side and body ground.

      Result 

      EVAP VSV - ECM

      Voltage Conclusion Proceed to
      Battery voltage Wire harness (EVAP VSV - ECM) is OK. OK
      0 to 3 V Wire harness (EVAP VSV - ECM) is short circuit. NG
      Fig 42: Checking Wire Harness And Connector (EVAP VSV - ECM)
      G03008397Courtesy of © TOYOTA, LICENSE AGREEMENT TMS1002
    1. NG: REPAIR OR REPLACE HARNESS AND CONNECTOR 
    2. OK: REPLACE ECM (See  REPLACEMENT  ). 
  36. CHECK FUEL TANK CAP 
    1. Connect the fuel tank cap to the gas cap adaptor.
    2. Connect the pressure hose from the pump to the gas cap adaptor.
    3. Plug the gas cap adaptor port.
    4. Turn the pump ON and pressurize the gas cap adaptor by 24 - 28 mmHg. If the pressure does not reach to 24 mmHg within 45 seconds, stop the pump. The fuel tank cap is malfunctioning.
    5. Turn the pump OFF and seal the pressure line to maintain the pressure.
    6. Measure the pressure change for 2 minutes. If the pressure drops to lower than 15 mmHg, the fuel tank cap is malfunctioning.

      Standard: The fuel tank cap keeps the pressure that is 15 mmHg or higher. 

    1. NG: REPLACE FUEL TANK CAP 
    2. OK: Go to next step. 
  37. CHECK LEAK 
    NOTE: DO NOT apply the EVAP system to the pressure that is higher than 35 mmHg. The EVAP system will be damaged.
    1. Connect the pressure line from the pump to the EVAP service port.
    2. Turn the ignition switch ON but the engine is not running.
    3. Turn the CCV (vent valve) is ON (close) using the hand-held tester. Select the hand-held tester menus: DIAGNOSIS, ENHANCED OBD II, ACTIVE TEST and CAN CTRL VSV.
    4. Turn the pump ON and pressurize the EVAP system by 24 - 28 mmHg.
    5. Turn the pump OFF and seal the pressure line to maintain the pressure. If the pressure does not reach to 24 mmHg within 45 seconds, stop the pump. A leakage is in the EVAP system. If the system has a small leak, a whistling sound may be heard.
    6. Measure the pressure change for 2 minutes. If the pressure drops to lower than 15 mmHg, a leakage is in the EVAP system.

      Standard: The EVAP system keeps the pressure that is 15 mmHg or higher. 

    1. NG: GO TO STEP 38 
    2. OK: NO LEAKAGE IN EVAP SYSTEM. 
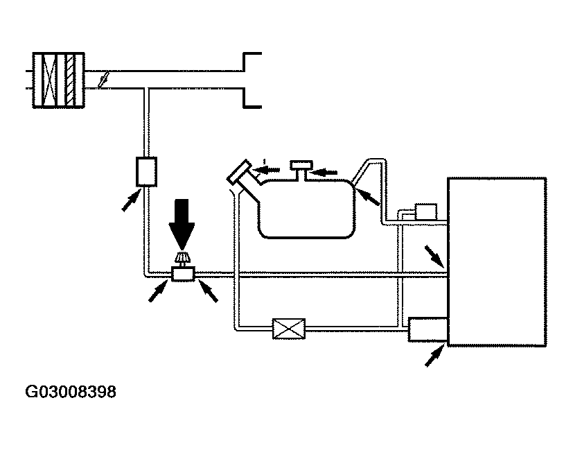
  38. LOOK FOR LEAK POINT 
    1. Apply the soapy water on suspected components.
    2. Turn the CCV (vent valve) is ON (close) using the hand-held tester. Select the hand-held tester menus: DIAGNOSIS, ENHANCED OBD II, ACTIVE TEST and CAN CTRL VSV.
    3. Turn the pump ON and pressurize the EVAP system by 24 - 28 mmHg.
    4. Turn the pump OFF and seal the pressure line to maintain the pressure. If the pressure does not reach to 24 mmHg within 45 seconds, stop the pump.
    5. Check bubbles to find the leak point:
      • EVAP service port
      • Canister
      • Hose connections/Lines
      • Fuel cap
      • Fuel filler neck
      • Purge line
      • EVAP VSV
      • CCV (vent valve)
      • Fuel pump sending unit
    6. Repair or replace the leak component.
    7. Perform the EVAP system check to confirm no leak.
    8. Fig 43: Looking For Leak Point
      G03008398Courtesy of © TOYOTA, LICENSE AGREEMENT TMS1002
    1. Go to step   4 . 
  39. CHECK EVAP VSV 
    1. Connect the vacuum gauge to the EVAP service port.
      1. Start the engine.
      2. Switch the EVAP VSV using the hand-held tester. Select the hand-held tester menus: DIAGNOSIS, ENHANCED OBD II, ACTIVE TEST and EVAP VSV.
      3. Check the vacuum when switching the EVAP VSV. If the vacuum gauge indicates negative value when the EVAP VSV is ON, the EVAP VSV is functioning normally.
      4. Fig 44: Checking EVAP VSV
        G03008399Courtesy of © TOYOTA, LICENSE AGREEMENT TMS1002

      OK: 

      The vacuum gauge indicates negative value when the EVAP VSV is ON. 

    1. NG: Go to step   31 
    2. OK: Go to step   17 
  40. CHECK MONITOR STATUS AND DTC 
    1. Clear DTCs.
    2. Perform a drive pattern test (see READINESS MONITOR DRIVE PATTERN  ).
    3. Check that the monitor result is PASS.
    4. Confirm no pending DTC.
    1. REPAIR IS COMPLETE.