LEMON Manuals: Even more car manuals for everyone: 1960-2025
Home >> Lexus >> 2011 >> IS 250C Standard >> Repair and Diagnosis >> External Pages >> Different car >> Section 108 (OEM Junction Block, Ecu & Fuse/Relay Locations) >> Relay Block Identification >> Engine Room Relay Block No. 2 Assembly And Engine Room Junction Block No. 2 Assembly
April 5, 2026: LEMON Manuals is launched! Read the announcement.

Engine Room Relay Block No. 2 Assembly And Engine Room Junction Block No. 2 Assembly

WARNING: This page is about a different car, the 2010 Lexus IS 350C and 2010 Lexus IS 250C. However, it is still accessible from the selected car via links, so may be relevant.

Left Engine Compartment  (See Figure)

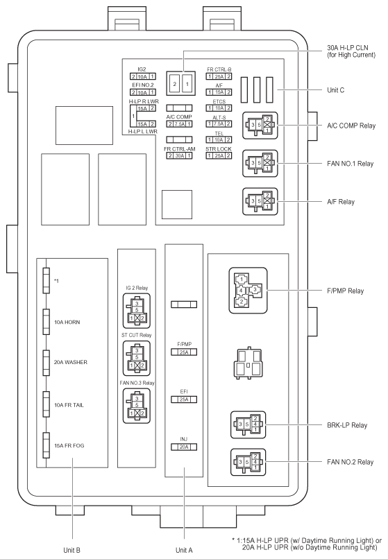
Fig 1: Engine Room R/B And J/B No. 2 Assembly Fuse & Relay Identification (1 Of 2)
G07566979Courtesy of © TOYOTA, LICENSE AGREEMENT TMS1002
ENGINE ROOM R/B NO. 2 AND J/B NO. 2 RELAY IDENTIFICATION

RELAY DESCRIPTION
A/C COMP Relay
Fan No. 1 Relay
A/F Relay
F/PMP Relay
BRK-LP Relay
Fan No. 2 Relay
ENGINE ROOM R/B AND J/B NO. 2 FUSE IDENTIFICATION LEGEND

Fuse System
7.5A A/C COMP Air Conditioning
7.5A ALT-S Charging
10A EFI NO. 2 Electronically Controlled Transmission and A/T Indicator (2GR-FSE)
Electronically Controlled Transmission and A/T Indicator (4GR-FSE)
Engine Control (2GR-FSE)
Engine Control (4GR-FSE)
10A ETCS Cruise Control (2GR-FSE)
Cruise Control (4GR-FSE)
Dynamic Radar Cruise Control (2GR-FSE)
Dynamic Radar Cruise Control (4GR-FSE)
Electronically Controlled Transmission and A/T Indicator (2GR-FSE)
Electronically Controlled Transmission and A/T Indicator (4GR-FSE)
Engine Control (2GR-FSE)
Engine Control (4GR-FSE)
10A FR TAIL Automatic Light Control
Headlight
Light Auto Turn Off System
Taillight
Theft Deterrent
10A HORN Horn
Smart Access System with Push-Button Start
Theft Deterrent
10A IG2 Engine Control (2GR-FSE)
Engine Control (4GR-FSE)
Ignition (2GR-FSE)
Ignition (4GR-FSE)
10A TEL LEXUS ENFORM or Safety Connect
15A A/F Engine Control (2GR-FSE)
Engine Control (4GR-FSE)
15A FR FOG Front Fog Light
15A H-LP L LWR Headlight
15A H-LP R LWR Headlight
15A H-LP UPR (w/ Daytime Running Light) Adaptive Front-Lighting System or Headlight Beam Level Control
Headlight
20A H-LP UPR (w/ Daytime Running Light) Adaptive Front-Lighting System or Headlight Beam Level Control
Headlight
20A INJ Engine Control (2GR-FSE)
Engine Control (4GR-FSE)
20A WASHER Front Wiper and Washer
Headlight Cleaner
25A EFI Cruise Control (2GR-FSE)
Cruise Control (4GR-FSE)
Dynamic Radar Cruise Control (2GR-FSE)
Dynamic Radar Cruise Control (4GR-FSE)
Electronically Controlled Transmission and A/T Indicator (2GR-FSE)
Electronically Controlled Transmission and A/T Indicator (4GR-FSE)
Engine Control (2GR-FSE)
Engine Control (4GR-FSE)
25A F/PMP Engine Control (2GR-FSE)
25A F/PMP Engine Control (4GR-FSE)
25A STR LOCK Smart Access System with Push-Button Start
30A H-LP CLN Headlight Cleaner
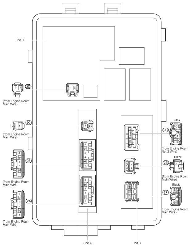
Fig 2: Engine Room R/B No. 2 Assembly And Engine Room J/B No. 2 Assembly Relay Locations (2 Of 2)
G07566980Courtesy of © TOYOTA, LICENSE AGREEMENT TMS1002