Engine Room Relay Block Assembly And Engine Room Junction Block Assembly: Front Fender Apron LH: Overview
For additional information, refer to Figure.
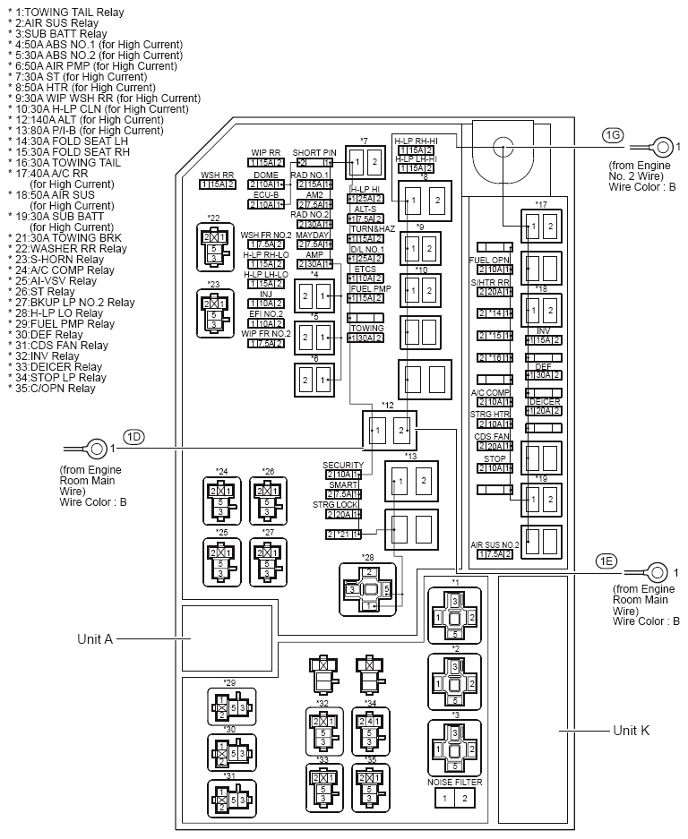
ENGINE ROOM R/B AND J/B RELAY IDENTIFICATION
| RELAY NUMBER | RELAY DESCRIPTION |
|---|---|
| *1 | Towing Tail Relay |
| *2 | Air SUS Relay |
| *3 | SUS BATT Relay |
| *22 | Washer RR Relay |
| *23 | S-Horn Relay |
| *24 | A/C COMP Relay |
| *25 | AI-VSV Relay |
| *26 | ST Relay |
| *27 | BKUP LP No. 2 Relay |
| *28 | H-LP LO Relay |
| *29 | Fuel PMP Relay |
| *30 | DEF Relay |
| *31 | CDS Fan Relay |
| *32 | INV Relay |
| *33 | Deicer Relay |
| *34 | Stop LP Relay |
| *35 | C/OPN Relay |
ENGINE ROOM R/B AND J/B FUSE IDENTIFICATION LEGEND
| Fuse | System | |
|---|---|---|
| 7.5A | AIR SUS NO. 2 | Electronic Modulated Air Suspension |
| 7.5A | ALT-S | Charging |
| 7.5A | AM2 | Engine Immobiliser System, Smart Access System with Push-Button Start, Starting, Steering Lock and Wireless Door Lock Control |
| 7.5A | MAYDAY | LEXUS ENFORM or Safety Connect |
| 7.5A | SMART | Engine Immobiliser System, Smart Access System with Push-Button Start, Starting, Steering Lock and Wireless Door Lock Control |
| 7.5A | WIP FR NO. 2 | Dynamic Radar Cruise Control and Lane Departure Alert |
| 7.5A | WSH FR NO. 2 | Dynamic Radar Cruise Control and Lane Departure Alert |
| 10A | A/C COMP | Air Conditioning |
| 10A | DOME | Engine Immobiliser System, Smart Access System with Push-Button Start, Starting, Steering Lock and Wireless Door Lock Control |
| Interior Light | ||
| 10A | ECU-B | ABS, A-TRAC, Brake Assist, Crawl, Downhill Assist Control, EBD, Hill-Start Assist Control, Multi-Terrain Select and VSC |
| Adaptive Front-Lighting System | ||
| Air Conditioning | ||
| Audio System (17 Speaker w/LEXUS Navigation System), LEXUS Navigation System (17 Speaker), Multi-Terrain Monitor (17 Speaker w/LEXUS Navigation System) and Parking Assist (Rear View Monitor and Wide-View Front & Side Monitor) (17 Speaker w/LEXUS Navigation System) | ||
| Audio System (9 Speaker w/LEXUS Navigation System), LEXUS Navigation System (9 Speaker), Multi-Terrain Monitor (9 Speaker w/LEXUS Navigation System) and Parking Assist (Rear View Monitor and Wide-View Front & Side Monitor) (9 Speaker w/LEXUS Navigation System) | ||
| Audio System (w/o LEXUS Navigation System) | ||
| Automatic Light Control and Light Auto Turn Off System | ||
| Center Differential Lock | ||
| Charging | ||
| Combination Meter | ||
| Cool Box | ||
| Cruise Control, Electronically Controlled Transmission and A/T Indicator and Engine Control | ||
| Door Lock Control | ||
| Dynamic Radar Cruise Control and Lane Departure Alert | ||
| Electronic Modulated Air Suspension | ||
| Engine Immobiliser System, Smart Access System with Push-Button Start, Starting, Steering Lock and Wireless Door Lock Control | ||
| Front Fog Light | ||
| Front Wiper and Washer | ||
| Garage Door Opener | ||
| Glass Hatch Opener | ||
| Headlight | ||
| Headlight Cleaner | ||
| Illumination and Taillight | ||
| Interior Light | ||
| Kinetic Dynamic Suspension System | ||
| LEXUS ENFORM or Safety Connect | ||
| Mirror Heater and Rear Window Defogger | ||
| Multi Information Display, Multi-Terrain Monitor (w/o LEXUS Navigation System) and Parking Assist (Rear View Monitor and Wide-View Front & Side Monitor) (w/o LEXUS Navigation System) | ||
| Parking Assist (Intuitive Parking Assist) | ||
| Power Rear No. 2 Seat with Stowing Function | ||
| Power Seat (Driver's Seat) | ||
| Power Tilt and Power Telescopic | ||
| Power Window | ||
| Pre-Collision System | ||
| Rear Wiper and Washer | ||
| Remote Control Mirror | ||
| Seat Belt Warning | ||
| Sliding Roof | ||
| SRS | ||
| Theft Deterrent | ||
| Tire Pressure Warning System | ||
| 10A | EFI NO. 2 | Cruise Control, Electronically Controlled Transmission and A/T Indicator and Engine Control |
| 10A | ETCS | Cruise Control, Electronically Controlled Transmission and A/T Indicator and Engine Control |
| Dynamic Radar Cruise Control and Lane Departure Alert | ||
| 10A | FUEL OPN | Fuel Lid Opener |
| 10A | HORN | Horn |
| 10A | INJ | Cruise Control, Electronically Controlled Transmission and A/T Indicator and Engine Control |
| Ignition | ||
| 10A | SECURITY | Theft Deterrent |
| 10A | STOP | ABS, A-TRAC, Brake Assist, Crawl, Downhill Assist Control, EBD, Hill-Start Assist Control, Multi-Terrain Select and VSC |
| Cruise Control, Electronically Controlled Transmission and A/T Indicator and Engine Control | ||
| Dynamic Radar Cruise Control and Lane Departure Alert | ||
| Electronic Modulated Air Suspension | ||
| Engine Immobiliser System, Smart Access System with Push-Button Start, Starting, Steering Lock and Wireless Door Lock Control | ||
| Pre-Collision System | ||
| Shift Lock | ||
| Stop Light | ||
| Trailer Towing | ||
| 10A | STRG HTR | Heated Steering Wheel System |
| 15A | FUEL PMP | Cruise Control, Electronically Controlled Transmission and A/T Indicator and Engine Control |
| 15A | H-LP LH-HI | Headlight |
| 15A | H-LP LH-LO | Headlight |
| 15A | H-LP RH-HI | Headlight |
| 15A | H-LP RH-LO | Headlight |
| 15A | INV | Power Outlet (120V-100W) |
| 15A | RAD NO. 1 | Audio System (17 Speaker w/LEXUS Navigation System), LEXUS Navigation System (17 Speaker), Multi-Terrain Monitor (17 Speaker w/LEXUS Navigation System) and Parking Assist (Rear View Monitor and Wide-View Front & Side Monitor) (17 Speaker w/LEXUS Navigation System) |
| Audio System (9 Speaker w/LEXUS Navigation System), LEXUS Navigation System (9 Speaker), Multi-Terrain Monitor (9 Speaker w/LEXUS Navigation System) and Parking Assist (Rear View Monitor and Wide-View Front & Side Monitor) (9 Speaker w/LEXUS Navigation System) | ||
| Audio System (w/o LEXUS Navigation System) | ||
| 15A | TURN&HAZ | Turn Signal and Hazard Warning Light |
| 15A | WIP RR | Rear Wiper and Washer |
| 15A | WSH RR | Rear Wiper and Washer |
| 20A | A/F | Cruise Control, Electronically Controlled Transmission and A/T Indicator and Engine Control |
| 20A | CDS FAN | Condenser Fan |
| 20A | DEICER | Front Window Deicer |
| 20A | IG2 | Engine Immobiliser System, Smart Access System with Push-Button Start, Starting, Steering Lock and Wireless Door Lock Control |
| 20A | S/HTR RR | Seat Heater (Rear) |
| 20A | STRG LOCK | Engine Immobiliser System, Smart Access System with Push-Button Start, Starting, Steering Lock and Wireless Door Lock Control |
| 25A | D/L NO. 1 | Door Lock Control |
| Engine Immobiliser System, Smart Access System with Push-Button Start, Starting, Steering Lock and Wireless Door Lock Control | ||
| Glass Hatch Opener | ||
| 25A | EFI | Cruise Control, Electronically Controlled Transmission and A/T Indicator and Engine Control |
| Dynamic Radar Cruise Control and Lane Departure Alert | ||
| 25A | H-LP HI | Automatic Light Control and Light Auto Turn Off System |
| Headlight | ||
| 30A | ABS NO. 2 | ABS, A-TRAC, Brake Assist, Crawl, Downhill Assist Control, EBD, Hill-Start Assist Control, Multi-Terrain Select and VSC |
| Dynamic Radar Cruise Control and Lane Departure Alert | ||
| 30A | AMP | Audio System (17 Speaker w/LEXUS Navigation System), LEXUS Navigation System (17 Speaker), Multi-Terrain Monitor (17 Speaker w/LEXUS Navigation System) and Parking Assist (Rear View Monitor and Wide-View Front & Side Monitor) (17 Speaker w/LEXUS Navigation System) |
| Audio System (9 Speaker w/LEXUS Navigation System), LEXUS Navigation System (9 Speaker), Multi-Terrain Monitor (9 Speaker w/LEXUS Navigation System) and Parking Assist (Rear View Monitor and Wide-View Front & Side Monitor) (9 Speaker w/LEXUS Navigation System) | ||
| Audio System (w/o LEXUS Navigation System) | ||
| 30A | DEF | Mirror Heater and Rear Window Defogger |
| 30A | FOLD SEAT LH | Power Rear No. 2 Seat with Stowing Function |
| 30A | FOLD SEAT RH | Power Rear No. 2 Seat with Stowing Function |
| 30A | H-LP CLN | Headlight Cleaner |
| 30A | RAD NO. 2 | Audio System (17 Speaker w/LEXUS Navigation System), LEXUS Navigation System (17 Speaker), Multi-Terrain Monitor (17 Speaker w/LEXUS Navigation System) and Parking Assist (Rear View Monitor and Wide-View Front & Side Monitor) (17 Speaker w/LEXUS Navigation System) |
| Audio System (9 Speaker w/LEXUS Navigation System), LEXUS Navigation System (9 Speaker), Multi-Terrain Monitor (9 Speaker w/LEXUS Navigation System) and Parking Assist (Rear View Monitor and Wide-View Front & Side Monitor) (9 Speaker w/LEXUS Navigation System) | ||
| 30A | ST | Engine Immobiliser System, Smart Access System with Push-Button Start, Starting, Steering Lock and Wireless Door Lock Control |
| 30A | SUB BATT | Trailer Towing |
| 30A | TOWING | Trailer Towing |
| 30A | TOWING BRK | Trailer Towing |
| 30A | TOWING TAIL | Trailer Towing |
| 30A | WIP WSH RR | Rear Wiper and Washer |
| 40A | A/C RR | Air Conditioning |
| 50A | ABS NO. 1 | ABS, A-TRAC, Brake Assist, Crawl, Downhill Assist Control, EBD, Hill-Start Assist Control, Multi-Terrain Select and VSC |
| Dynamic Radar Cruise Control and Lane Departure Alert | ||
| 50A | AIR PMP | Cruise Control, Electronically Controlled Transmission and A/T Indicator and Engine Control |
| 50A | AIR SUS | Electronic Modulated Air Suspension |
| 50A | HTR | Air Conditioning |
| 140A | ALT | Automatic Light Control and Light Auto Turn Off System |
| Back-Up Light | ||
| Charging | ||
| Front Fog Light | ||
| Illumination and Taillight | ||
| Trailer Towing | ||
ENGINE ROOM R/B (UNIT A) RELAY IDENTIFICATION
| RELAY DESCRIPTION |
|---|
| DRL Relay(Canada) |
| DRL Relay(USA) |