LEMON Manuals: Even more car manuals for everyone: 1960-2025
Home >> Mitsubishi >> 2003 >> Eclipse GT, Automatic >> Repair and Diagnosis >> Brakes >> Traction Control >> Traction Control System (TCL) >> Traction Control System (TCL) Diagnosis >> Symptom Procedures >> INSPECTION PROCEDURE 2: When the Ignition Key is Turned to the "ON" Position (Engine Stopped), the TCL Indicator Light does not illuminate. >> Notes
April 5, 2026: LEMON Manuals is launched! Read the announcement.

INSPECTION PROCEDURE 2: When the Ignition Key is Turned to the "ON" Position (Engine Stopped), the TCL Indicator Light does not illuminate.: Notes

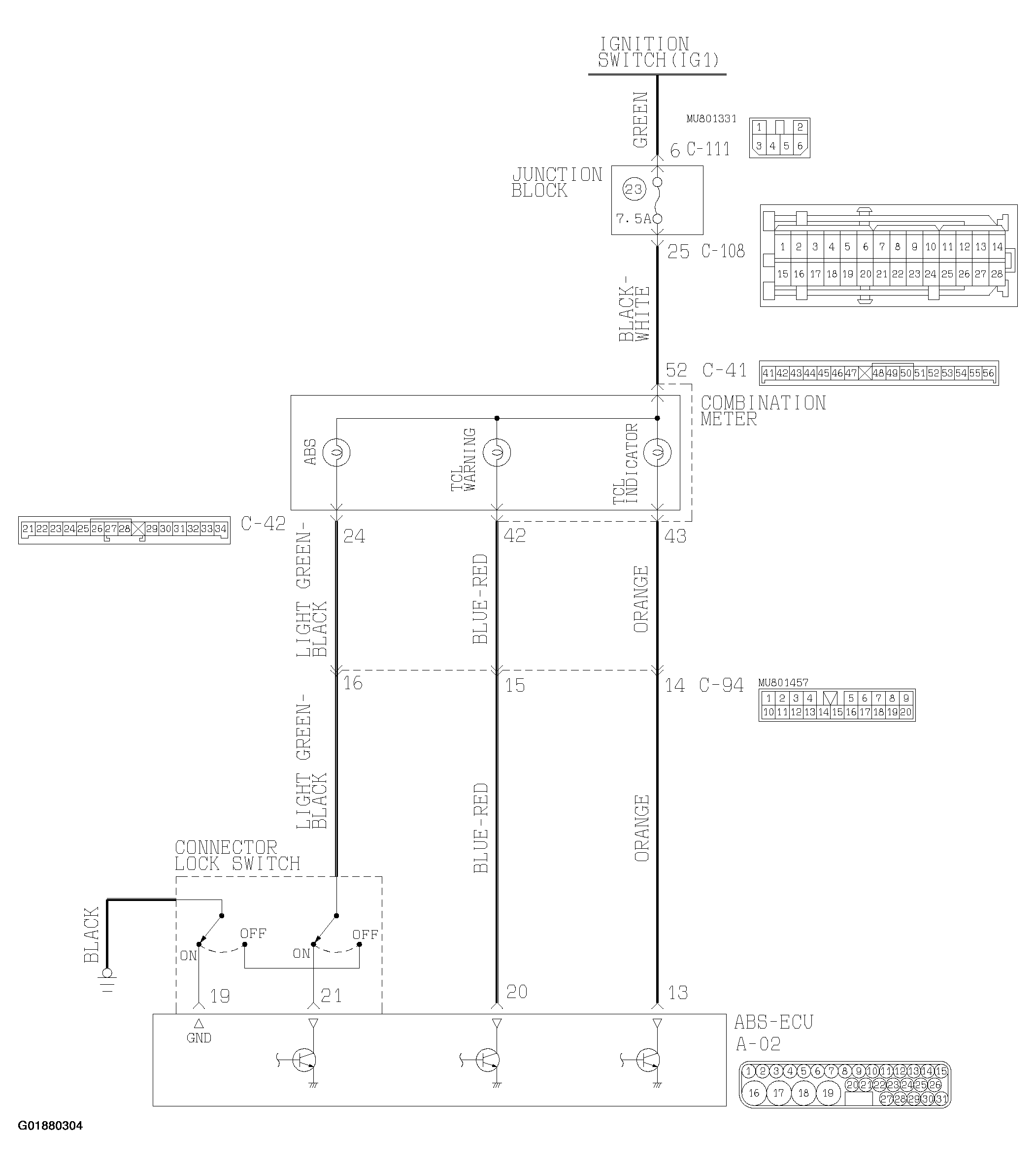
Fig 1: Circuit Diagram - TCL Warning Light And TCL Indicator Light (1 Of 2) - Inspection Procedure 2
G01880304Courtesy of MITSUBISHI MOTOR SALES OF AMERICA.
NOTE: CONNECTOR LOCK SWITCH.
  1. ON: The ABS-ECU connector A-02 is connected.
  2. OFF: The ABS-ECU connector A-02 is disconnected.
Fig 2: Circuit Diagram - TCL Warning Light And TCL Indicator Light (2 Of 2) - Inspection Procedure 2
G01880305Courtesy of MITSUBISHI MOTOR SALES OF AMERICA.