LEMON Manuals: Even more car manuals for everyone: 1960-2025
Home >> Mitsubishi >> 2003 >> Montero XLS >> Repair and Diagnosis >> Brakes >> Traction Control >> Traction Control System (TCL) >> M-ASTC Diagnosis >> Can Bus Line Diagnostics >> Diagnostic Item 2: Diagnose the CAN_L side bus line. >> Notes
April 5, 2026: LEMON Manuals is launched! Read the announcement.

Diagnostic Item 2: Diagnose the CAN_L side bus line.: Notes

CAUTION: Before checking CAN bus lines and their interconnected components, "ground" yourself, by touching a metal object such as an unpainted pipe, this will discharge any potentially damaging static that may have built up.
CAUTION: When measuring resistance value or voltage in CAN bus lines, use a digital multimeter. If not using a digital multimeter, the equipments, which are connected through the CAN communication lines, may be damaged.
CAUTION: Disconnect the negative battery terminal when measuring the resistance value in the CAN bus line. If you fail to do so, the equipments, which are connected through the CAN communication lines, may be damaged.
CAUTION: Always use the test harness when measuring the voltage or resistance value at the female connector. If you fail to do so, connectors may be damaged.
CAUTION:
Fig 1: Identifying Twisted Wire
G01884929Courtesy of MITSUBISHI MOTOR SALES OF AMERICA.

If there is a problem in the connector(s) (including terminals) or wire(s) of the instrument panel wiring harness assembly (the wiring harness connected to the steering wheel sensor, the data link connector and the resistor) and the transmission wiring harness assembly (the wiring harness connected to the G and yaw rate sensor connector and intermediate connector E-123), cut and repair the defective wire so that the frayed end of the twisted wire should be within 10 cm (4.0 inches). If it exceeds 10 cm (4.0 inches), twist the wiring harness just like the original twisted wire. If the frayed end exceeds 10 cm (4.0 inches), a communication error may be caused.
CAUTION: If you repair the CAN bus line of the instrument panel wiring harness assembly (the wiring harness connected to the steering wheel sensor, the data link connector and the resistor) and the transmission wiring harness assembly (the wiring harness connected to the G and yaw rate sensor connector and intermediate connector E-123), observe the precautions regarding how to repair wiring harness. If a new wire is added or a splice point is modified for the CAN_L or CAN_H line, an error in the CAN communication may be caused.
CAUTION: If there is a problem in the CAN bus line or the connectors on the control wiring harness assembly (the wiring harness connected to the M-ASTC-ECU, the power control module and intermediate connector E-123), do not attempt to repair the wiring harness or connector(s), but replace the wiring harness assembly. If a wire is added or the connector(s) are repaired, an error in the CAN communication may be caused.

This procedure diagnoses the shaded portion below.

Fig 2: M-ASTC-ECU Diagnosis Diagram
G01884930Courtesy of MITSUBISHI MOTOR SALES OF AMERICA.
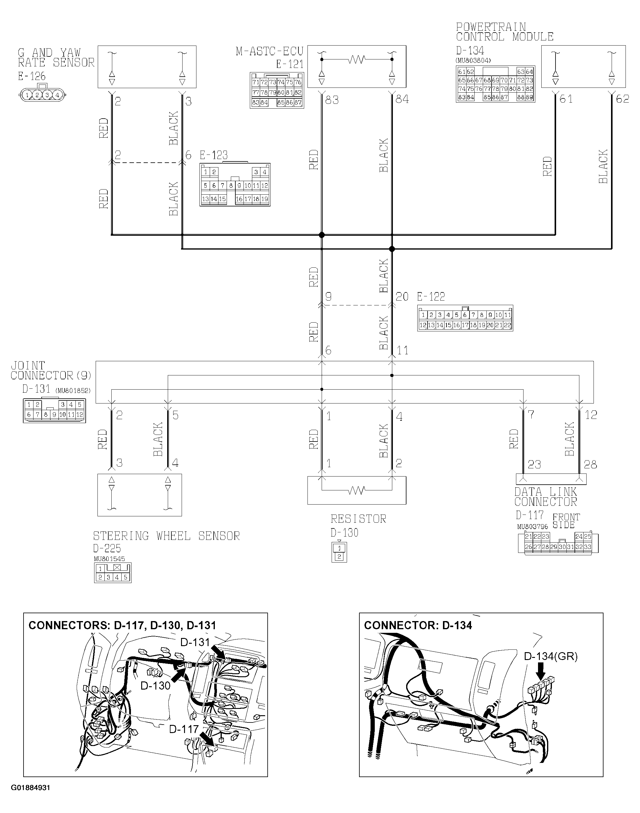
Fig 3: Can Bus Communication Circuit Diagram (1 Of 2)
G01884931Courtesy of MITSUBISHI MOTOR SALES OF AMERICA.
Fig 4: Can Bus Communication Circuit Diagram (2 Of 2)
G01884932Courtesy of MITSUBISHI MOTOR SALES OF AMERICA.