LEMON Manuals: Even more car manuals for everyone: 1960-2025
Home >> Mitsubishi >> 2004 >> Eclipse GT, Automatic >> Repair and Diagnosis >> Brakes >> Traction Control >> Traction Control System (TCL) >> Traction Control System (TCL) Diagnosis >> Symptom Procedures >> INSPECTION PROCEDURE 4: The TCL Indicator Light Remains Illuminated after the Engine is Started. >> Notes
April 5, 2026: LEMON Manuals is launched! Read the announcement.

INSPECTION PROCEDURE 4: The TCL Indicator Light Remains Illuminated after the Engine is Started.: Notes

NOTE: This diagnosis procedure is limited to cases where communication with the scan tool is possible (ABS-ECU power supply is normal) and no diagnostic trouble code outputs.

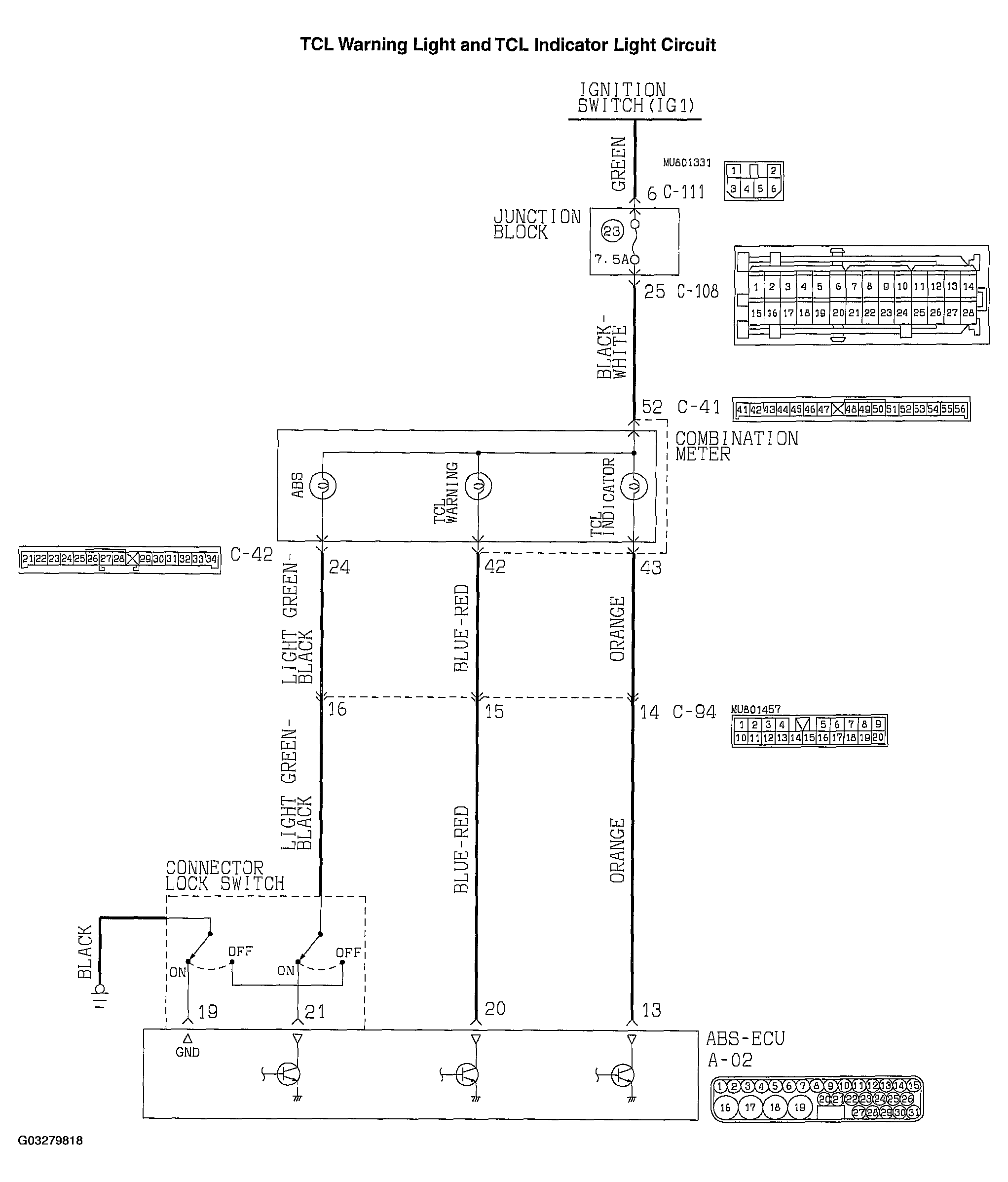
TCL Warning Light and TCL Indicator Light Circuit

Fig 1: TCL Warning Light And TCL Indicator Light Circuit
G03279818Courtesy of MITSUBISHI MOTOR SALES OF AMERICA.
NOTE: CONNECTOR LOCK SWITCH

ON: The ABS-ECU connector A-02 is connected.

OFF: The ABS-ECU connector A-02 is disconnected.

Fig 2: Identifying Connector A-02
G03279819Courtesy of MITSUBISHI MOTOR SALES OF AMERICA.
Fig 3: Identifying Connector C-94
G03279820Courtesy of MITSUBISHI MOTOR SALES OF AMERICA.
Fig 4: Identifying Connector C-41 And C-42
G03279821Courtesy of MITSUBISHI MOTOR SALES OF AMERICA.
Fig 5: Identifying Connector C-108 And C-111
G03279822Courtesy of MITSUBISHI MOTOR SALES OF AMERICA.