LEMON Manuals: Even more car manuals for everyone: 1960-2025
Home >> Mitsubishi >> 2004 >> Eclipse RS, Standard >> Repair and Diagnosis (Single Page) >> Accessories & Equipment >> Communication Devices >> Simplified Wiring System (SWS) >> Input Signal Procedures >> Inspection Procedure P-14: ETACS-Ecu Does Not Receive A Interior Light Loaded Signal. >> Interior Light Loaded Signal Input Circuit
April 5, 2026: LEMON Manuals is launched! Read the announcement.

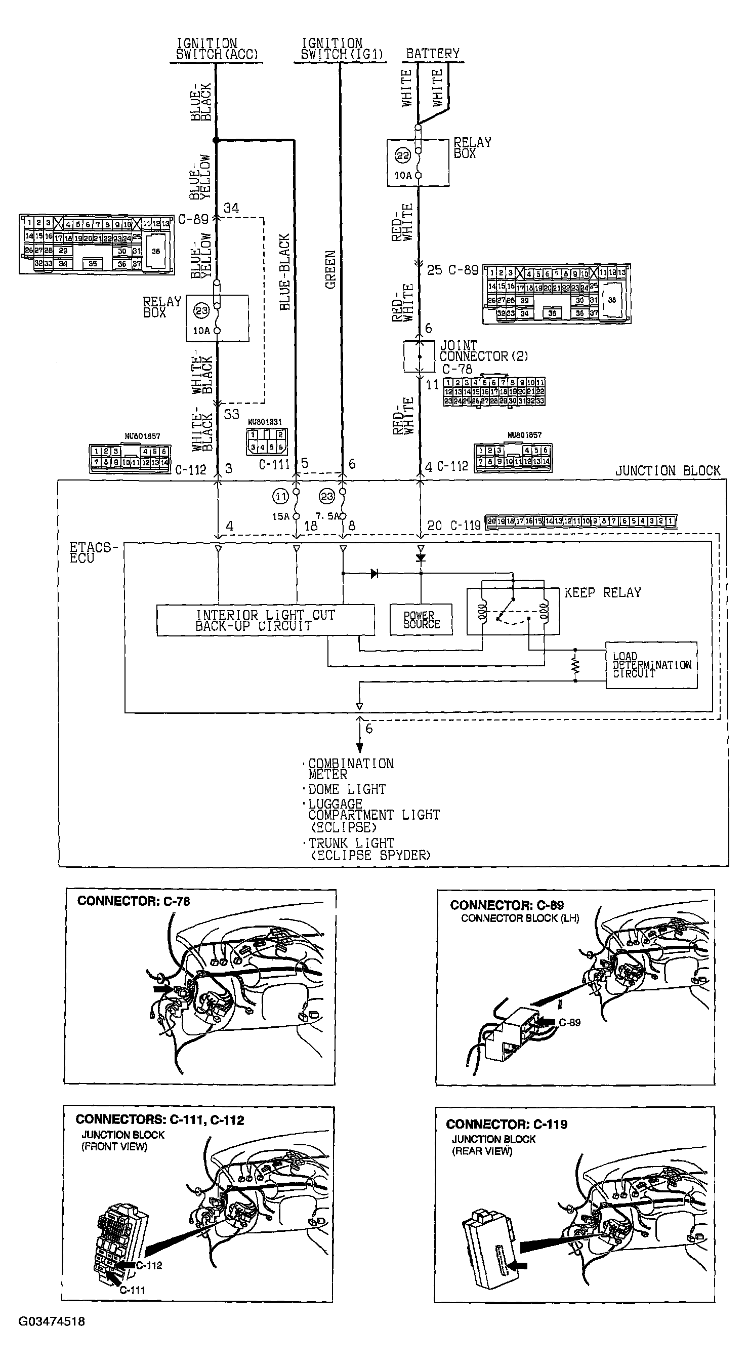
Interior Light Loaded Signal Input Circuit

Fig 1: View Of Interior Light Loaded Signal Input Circuit Diagram And Connector
G03474518Courtesy of MITSUBISHI MOTOR SALES OF AMERICA.