LEMON Manuals: Even more car manuals for everyone: 1960-2025
Home >> Mitsubishi >> 2004 >> Lancer Evolution >> Repair and Diagnosis >> External Pages >> Different car >> Section 21 (Auto-Cruise Control System) >> Auto-Cruise Control System Diagnosis >> Diagnostic Trouble Code Procedures >> DTC 12: Vehicle Speed Signal System < M/T> >> Notes
April 5, 2026: LEMON Manuals is launched! Read the announcement.

DTC 12: Vehicle Speed Signal System < M/T>: Notes

WARNING: This page is about a different car, the 2004 Mitsubishi Eclipse. However, it is still accessible from the selected car via links, so may be relevant.
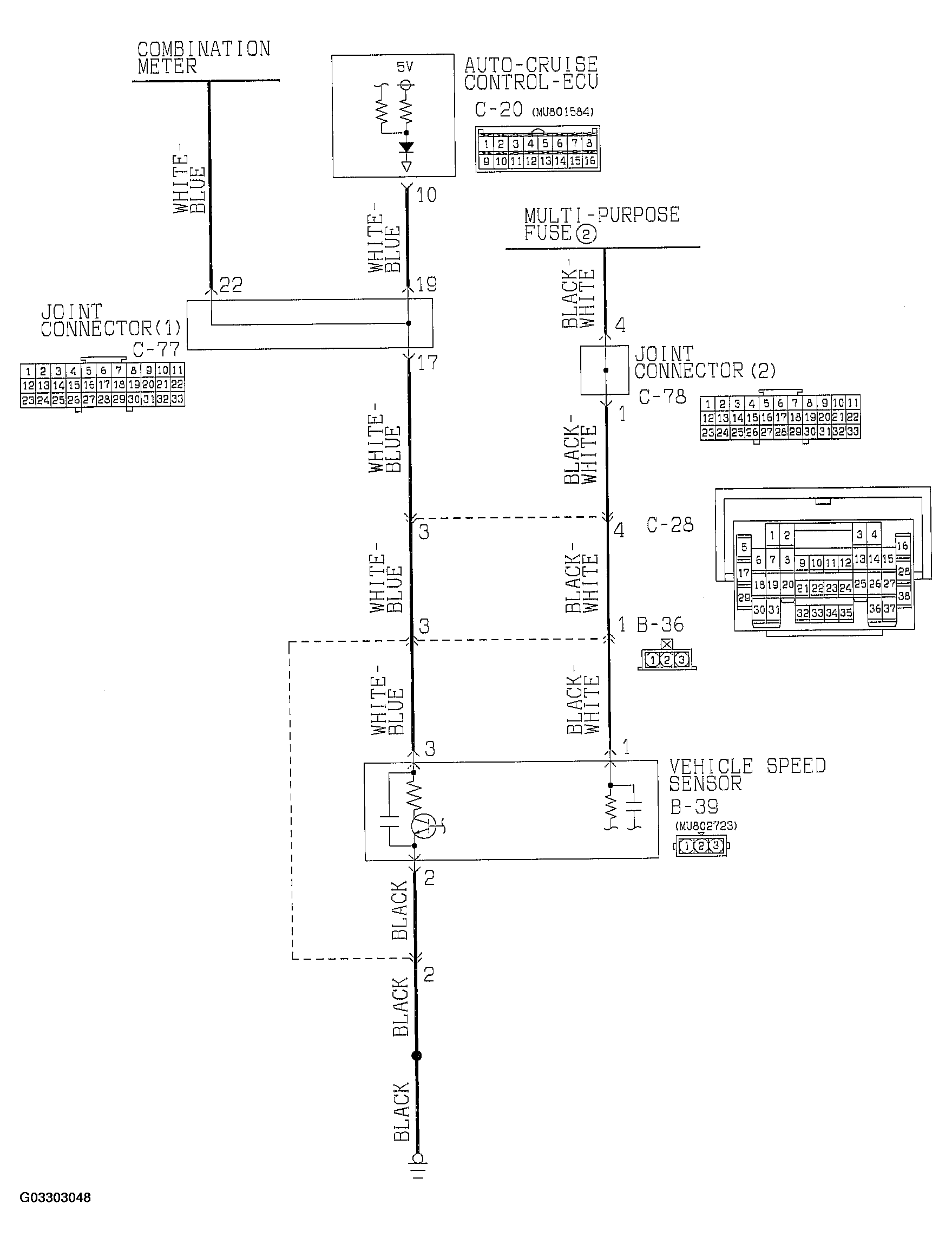
Fig 1: Vehicle Speed Signal System Circuit < M/T> (1 Of 2)
G03303048Courtesy of MITSUBISHI MOTOR SALES OF AMERICA.
Fig 2: Vehicle Speed Signal System Circuit < M/T> (2 Of 2)
G03303049Courtesy of MITSUBISHI MOTOR SALES OF AMERICA.
Fig 3: Locating Connector C-77
G03303050Courtesy of MITSUBISHI MOTOR SALES OF AMERICA.
Fig 4: Locating Connector C-20
G03303051Courtesy of MITSUBISHI MOTOR SALES OF AMERICA.