LEMON Manuals: Even more car manuals for everyone: 1960-2025
Home >> Mitsubishi >> 2004 >> Lancer Evolution >> Repair and Diagnosis >> External Pages >> Different car >> Section 56 (Controller Area Network (Can)) >> Diagnosis >> Can Bus Diagnostics >> Diagnostic Item 17: Diagnose The Lines Between Can Main Bus Line And The Powertrain Control Module < Vehicles Without Abs > >> Notes
April 5, 2026: LEMON Manuals is launched! Read the announcement.

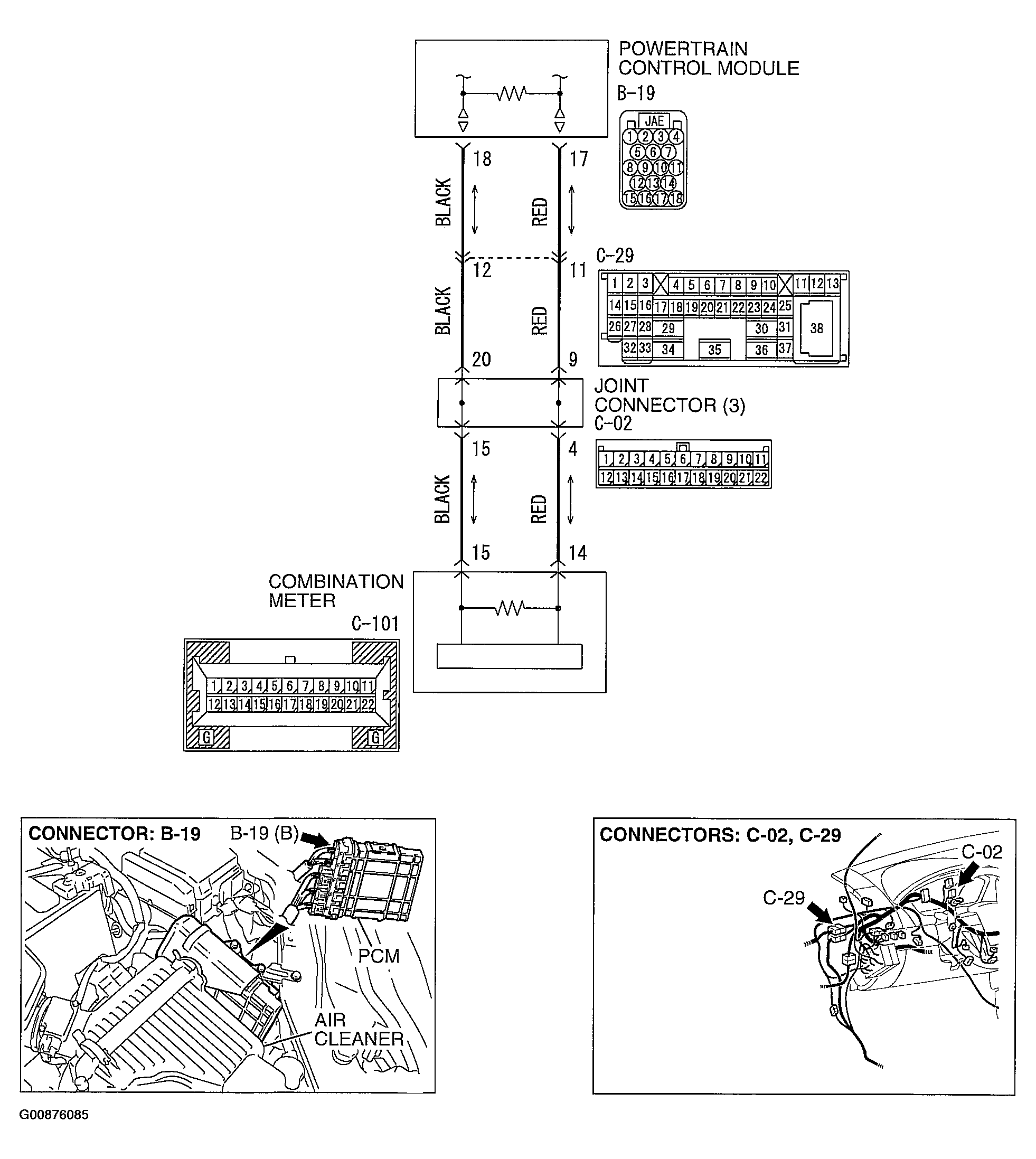
Diagnostic Item 17: Diagnose The Lines Between Can Main Bus Line And The Powertrain Control Module < Vehicles Without Abs >: Notes

WARNING: This page is about a different car, the 2004 Mitsubishi Galant. However, it is still accessible from the selected car via links, so may be relevant.
CAUTION: When servicing a CAN bus line, ground yourself by touching a metal object such as an unpainted water pipe. If you fail to do so, a component connected to the CAN bus line may be damaged.
Fig 1: View Of CAN Bus Line (Vehicles Without ABS) Circuit With Connectors
G00876085Courtesy of MITSUBISHI MOTOR SALES OF AMERICA.