LEMON Manuals: Even more car manuals for everyone: 1960-2025
Home >> Mitsubishi >> 2004 >> Lancer Evolution >> Repair and Diagnosis >> External Pages >> Different variant/trim >> Section 40 (Auto-Cruise Control System - 2.4L (Except Evolution & SPORTBACK)) >> Auto-Cruise Control System Diagnosis >> Diagnostic Trouble Code Procedures >> DTC 22: Stoplight Switch System >> Notes
April 5, 2026: LEMON Manuals is launched! Read the announcement.

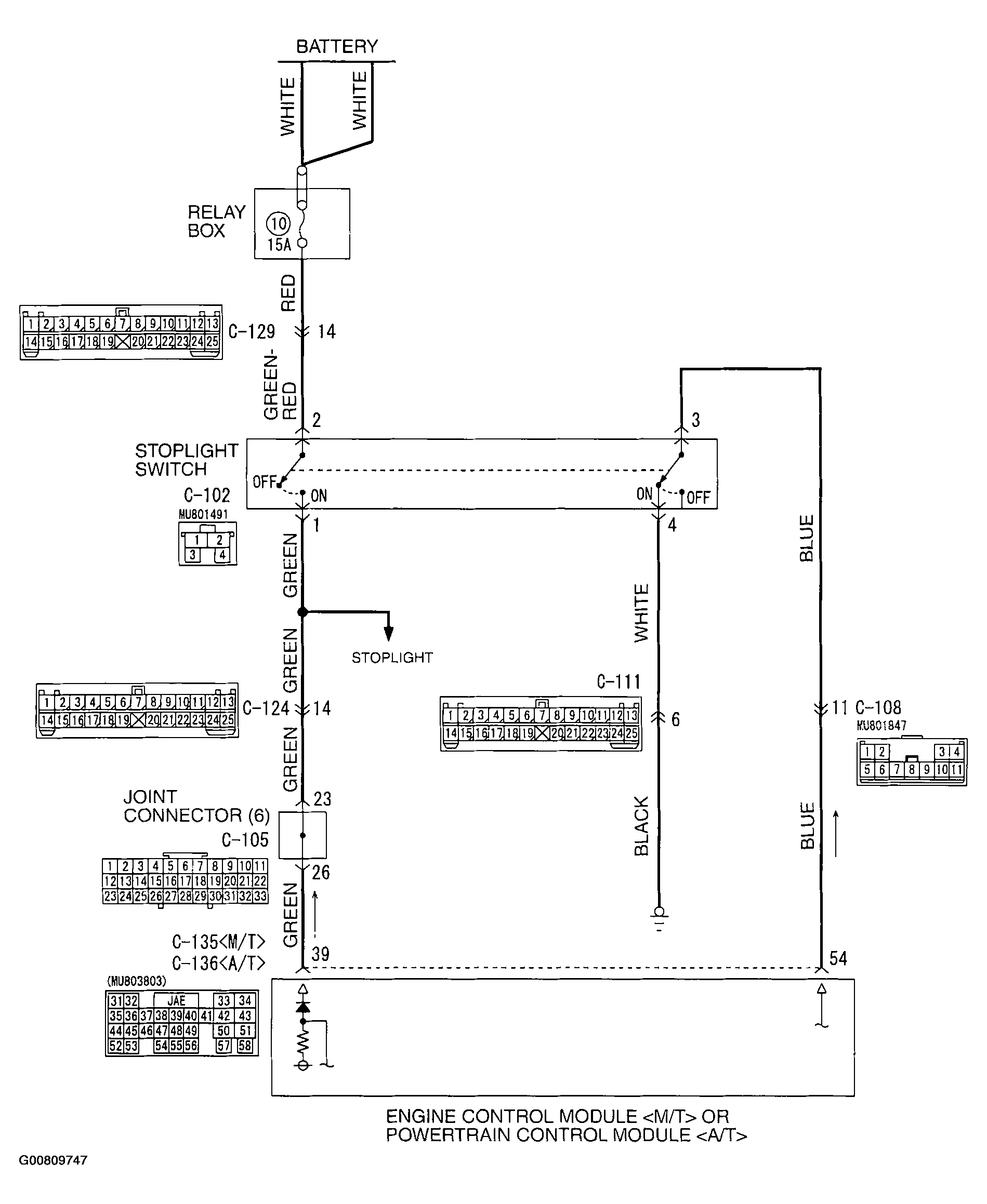
DTC 22: Stoplight Switch System: Notes

WARNING: This page is about a different variant/trim than selected.
Fig 1: Stoplight Switch System Schematic
G00809747Courtesy of MITSUBISHI MOTOR SALES OF AMERICA.
Fig 2: Component & Connector Locations
G00809748Courtesy of MITSUBISHI MOTOR SALES OF AMERICA.