LEMON Manuals: Even more car manuals for everyone: 1960-2025
Home >> Mitsubishi >> 2005 >> Eclipse GS, Standard >> Repair and Diagnosis (Single Page) >> Electrical >> Body Electrical >> Simplified Wiring System (SWS) >> Input Signal Procedures >> INSPECTION PROCEDURE P-14: ETACS-ECU does not Receive a Interior Light Loaded Signal. >> Notes
April 5, 2026: LEMON Manuals is launched! Read the announcement.

INSPECTION PROCEDURE P-14: ETACS-ECU does not Receive a Interior Light Loaded Signal.: Notes

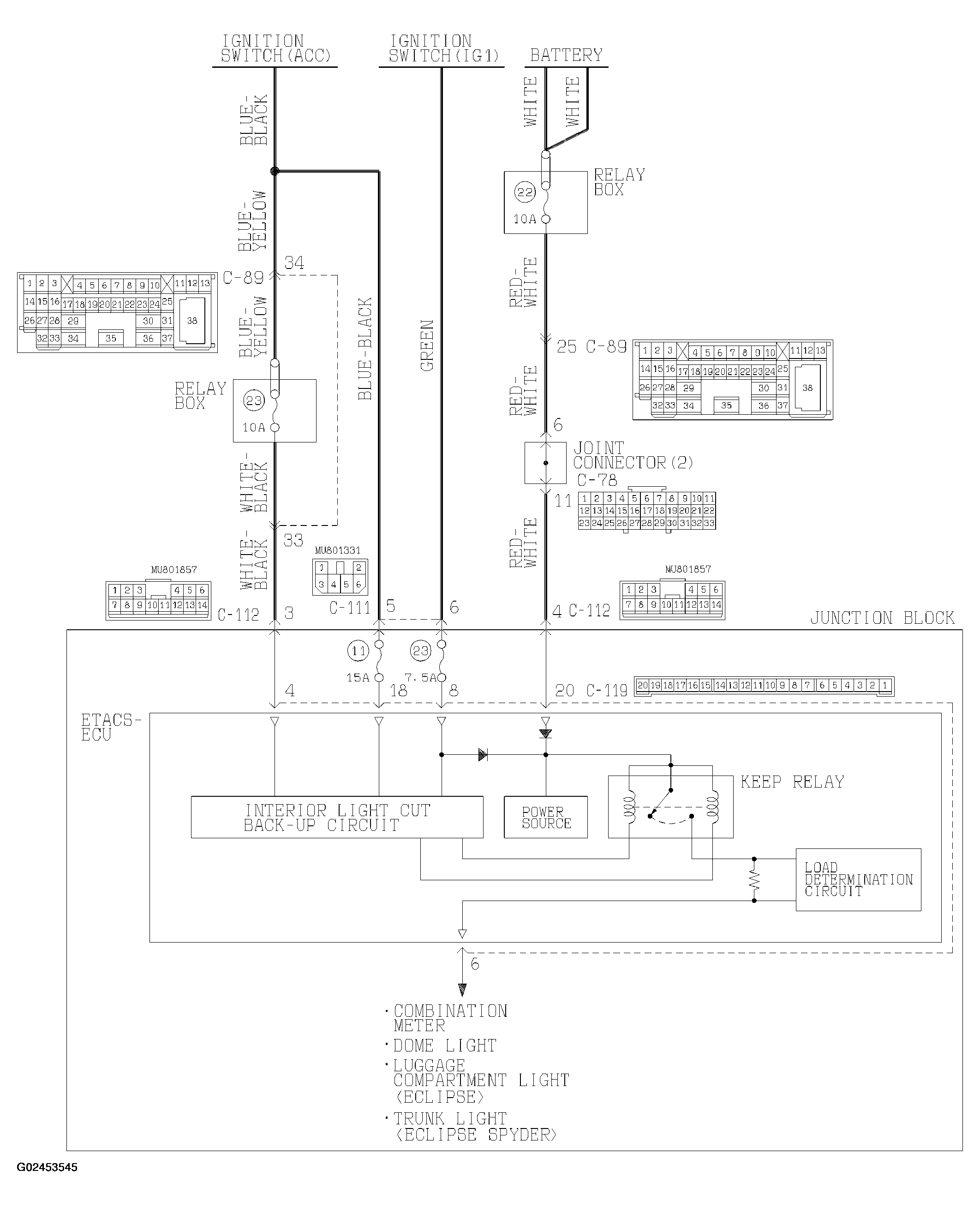
Fig 1: Interior Light Loaded Signal Input Circuit Diagram & Connector Identification (1 Of 2)
G02453545Courtesy of MITSUBISHI MOTOR SALES OF AMERICA.
Fig 2: Interior Light Loaded Signal Input Circuit Diagram & Connector Identification (2 Of 2)
G02453546Courtesy of MITSUBISHI MOTOR SALES OF AMERICA.