LEMON Manuals: Even more car manuals for everyone: 1960-2025
Home >> Mitsubishi >> 2005 >> Endeavor LS, AWD >> Repair and Diagnosis (Single Page) >> Accessories & Equipment >> Communication Devices >> Simplified Wiring System (SWS) >> Symptom Procedures >> Power Windows >> INSPECTION PROCEDURE D-5: Power Windows: Front Or Rear Passenger's Power Windows Do Not Work At All By Operating The Power Window Main Switch. >> Notes
April 5, 2026: LEMON Manuals is launched! Read the announcement.

INSPECTION PROCEDURE D-5: Power Windows: Front Or Rear Passenger's Power Windows Do Not Work At All By Operating The Power Window Main Switch.: Notes

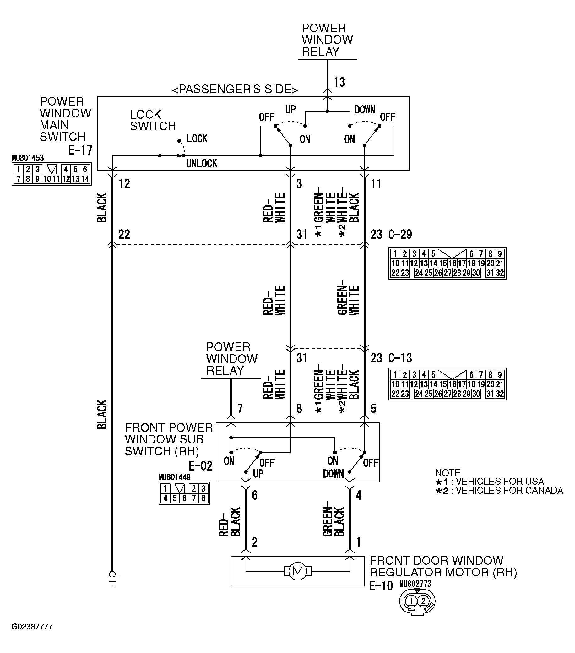
Fig 1: Power Window (Front RH) Circuit Diagram
G02387777Courtesy of MITSUBISHI MOTOR SALES OF AMERICA.
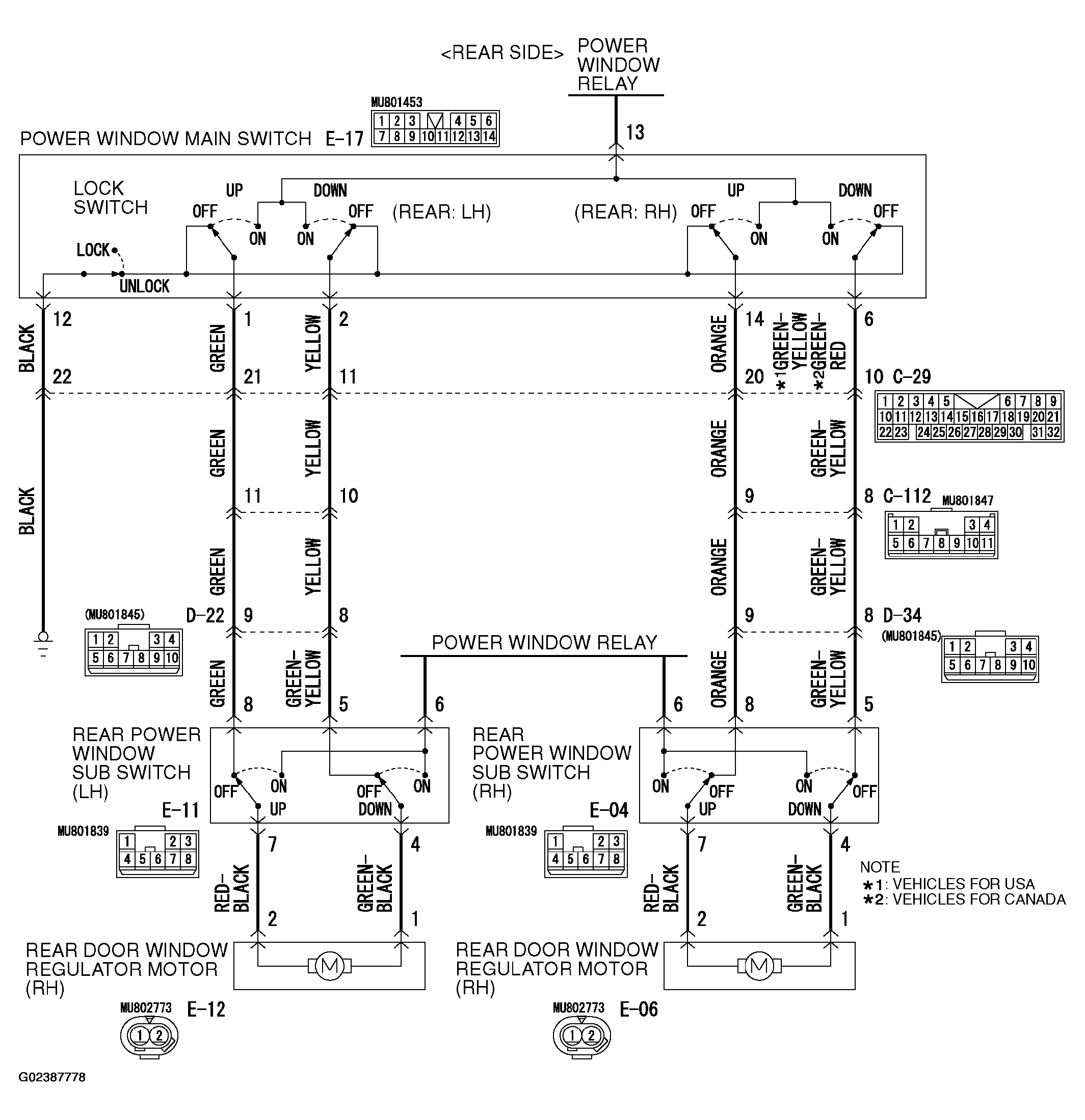
Fig 2: Power Window (Rear) Circuit Diagram
G02387778Courtesy of MITSUBISHI MOTOR SALES OF AMERICA.