LEMON Manuals: Even more car manuals for everyone: 1960-2025
Home >> Mitsubishi >> 2005 >> Endeavor LS, AWD >> Repair and Diagnosis (Single Page) >> Electrical >> Body Electrical >> Chassis Electrical >> Combination Meter Assembly And Vehicle Speed Sensor >> Symptom Procedures >> INSPECTION PROCEDURE 8: Tachometer does not Work. >> Notes
April 5, 2026: LEMON Manuals is launched! Read the announcement.

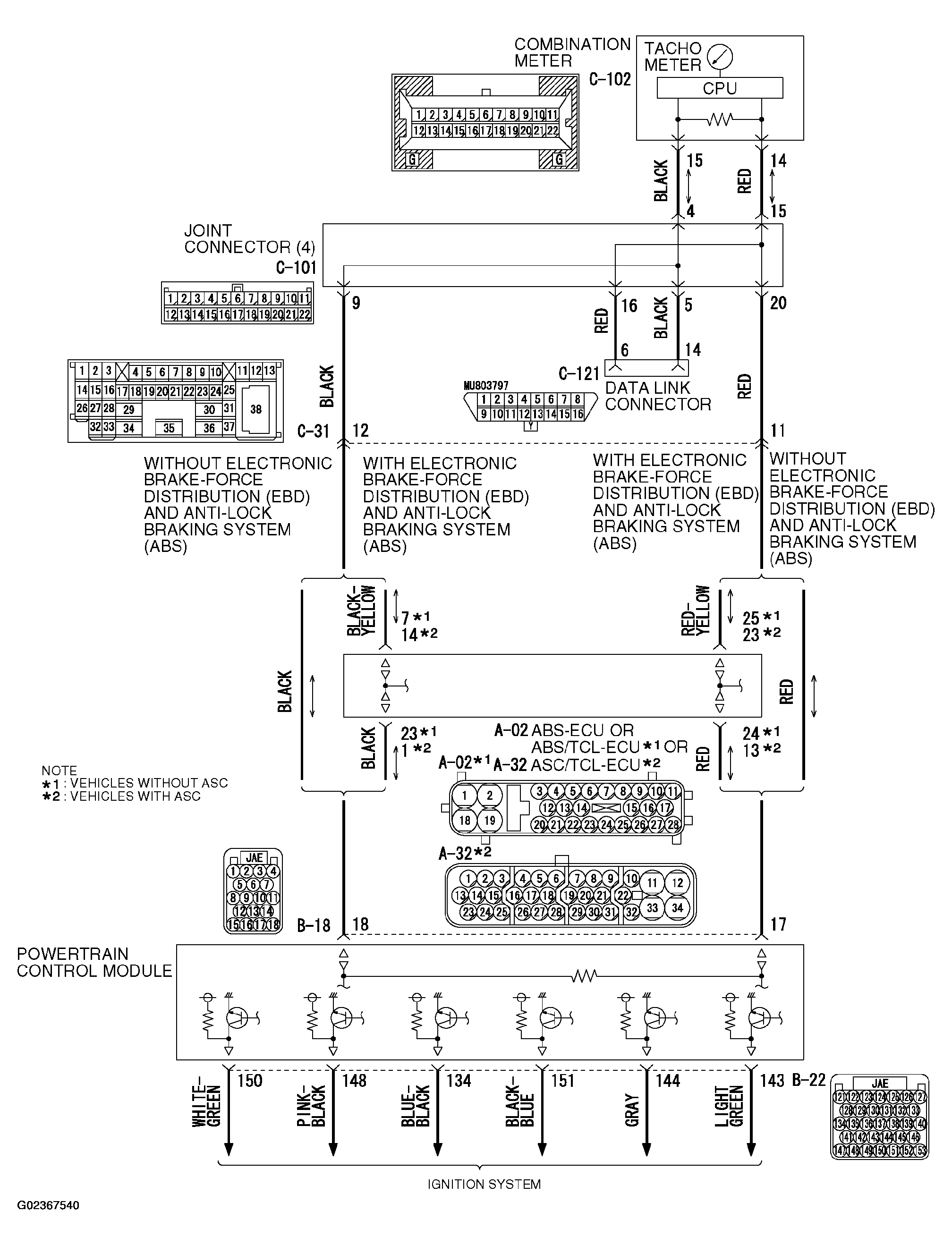
INSPECTION PROCEDURE 8: Tachometer does not Work.: Notes

Fig 1: Tachometer Circuit Diagram & Connecor Identification (1 Of 2)
G02367540Courtesy of MITSUBISHI MOTOR SALES OF AMERICA.
Fig 2: Tachometer Circuit Diagram & Connecor Identification (2 Of 2)
G02367541Courtesy of MITSUBISHI MOTOR SALES OF AMERICA.