LEMON Manuals: Even more car manuals for everyone: 1960-2025
Home >> Mitsubishi >> 2006 >> Lancer Evolution MR >> Repair and Diagnosis (Single Page) >> Electrical >> Charging Systems >> Chassis Electrical - Lancer Evolution >> Combination Meter Assembly And Vehicle Speed Sensor >> Equipment Diagnosis >> Symptom Procedures >> INSPECTION PROCEDURE 1: Speedometer does not Work. >> Notes
April 5, 2026: LEMON Manuals is launched! Read the announcement.

INSPECTION PROCEDURE 1: Speedometer does not Work.: Notes

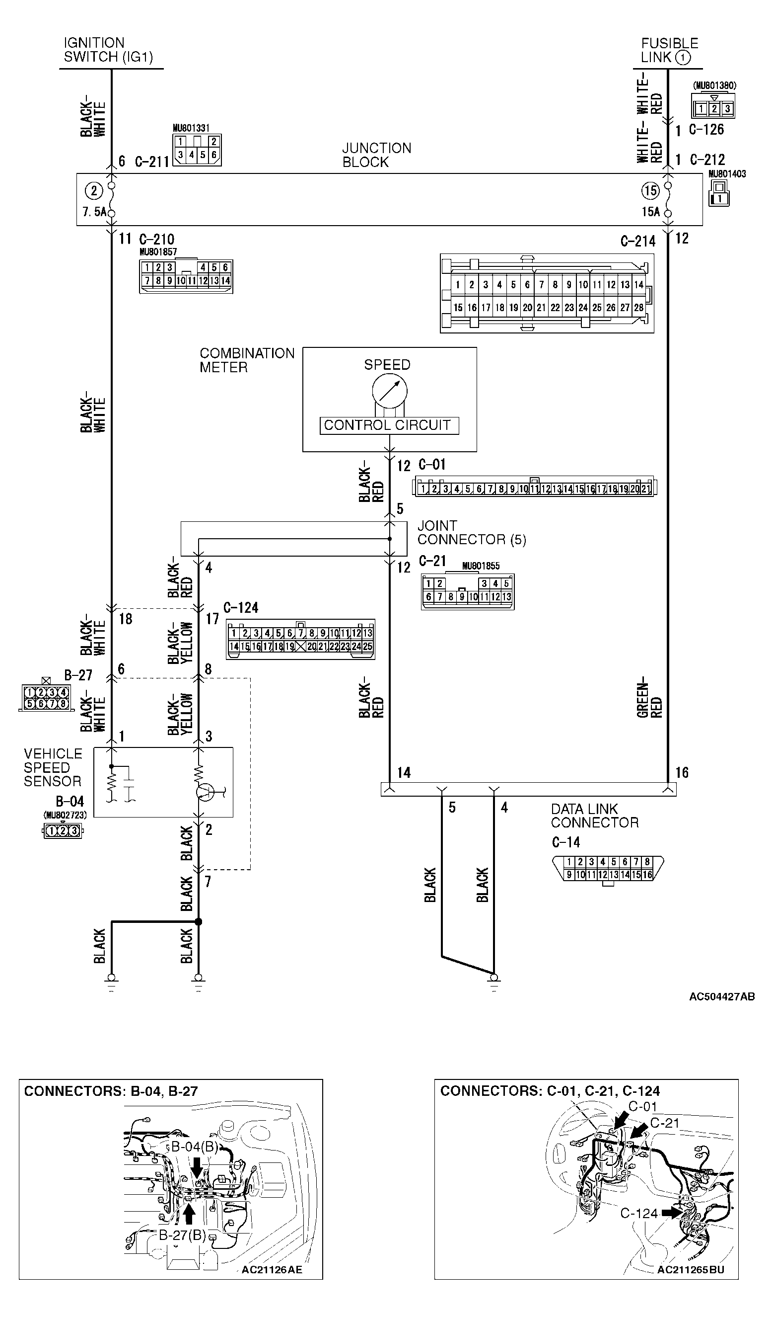
Fig 1: Identifying Speedometer Circuit
G04298318Courtesy of MITSUBISHI MOTOR SALES OF AMERICA.