LEMON Manuals: Even more car manuals for everyone: 1960-2025
Home >> Mitsubishi >> 2006 >> Montero >> Repair and Diagnosis (Single Page) >> Heating, Ventilation & A/C (HVAC) >> HVAC Control Systems >> Automatic Air Conditioning >> Automatic A/C Diagnosis >> Symptom Procedures >> INSPECTION PROCEDURE 2: Air Conditioning does not Operate. >> Notes
April 5, 2026: LEMON Manuals is launched! Read the announcement.

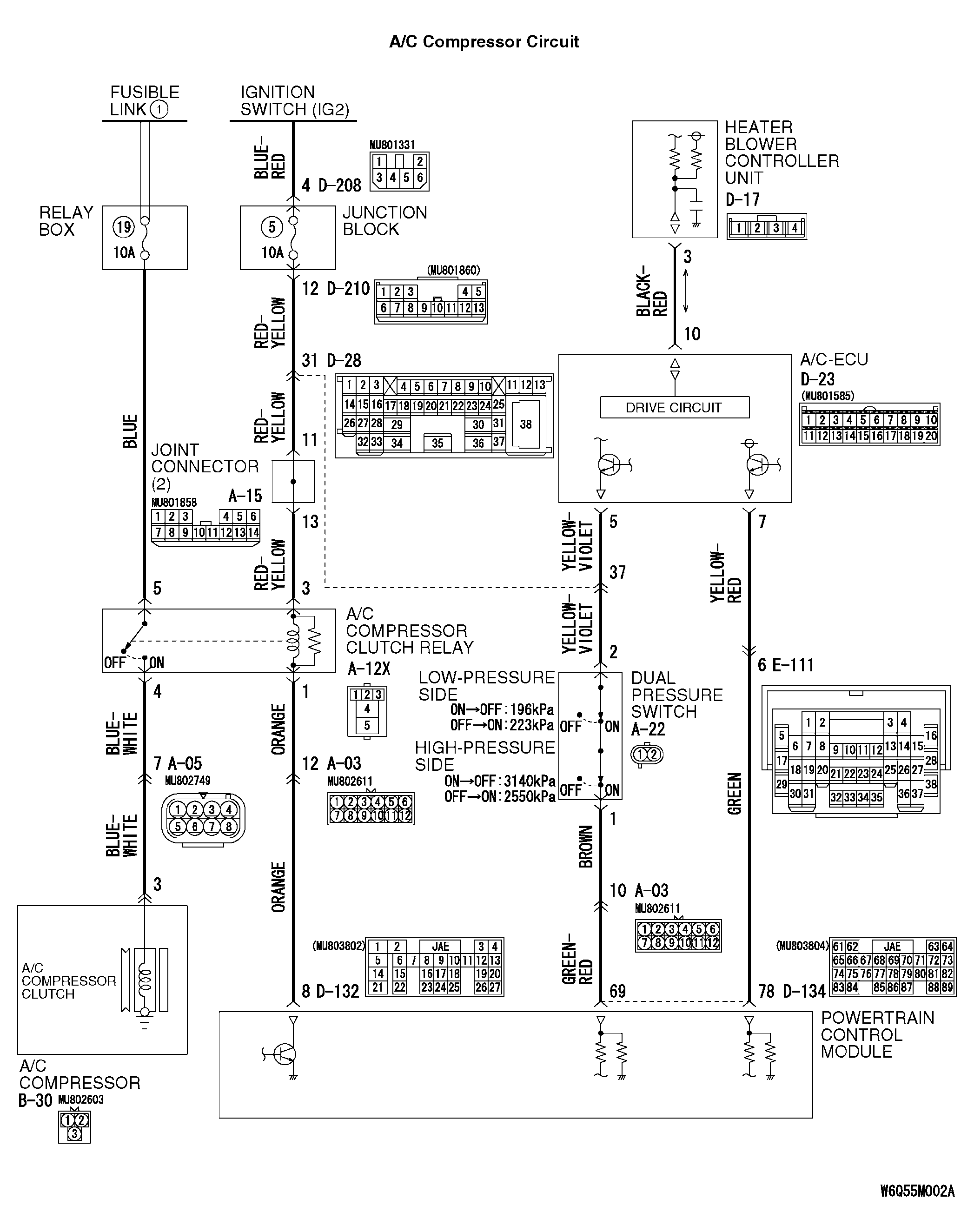
INSPECTION PROCEDURE 2: Air Conditioning does not Operate.: Notes

Fig 1: A/C Compressor Circuit Diagram (1 Of 2)
G04270418
Fig 2: A/C Compressor Circuit Diagram (2 Of 2)
G04270419