LEMON Manuals: Even more car manuals for everyone: 1960-2025
Home >> Mitsubishi >> 2007 >> Eclipse SE, Automatic >> Repair and Diagnosis (Single Page) >> Transmission >> Automatic Trans >> On-Vehicle Service & Diagnosis (A/T) >> Automatic Transaxle Diagnosis >> Diagnostic Trouble Code Procedures >> DTC P1788 (P1751): A/T Control Relay System >> Notes
April 5, 2026: LEMON Manuals is launched! Read the announcement.

DTC P1788 (P1751): A/T Control Relay System: Notes

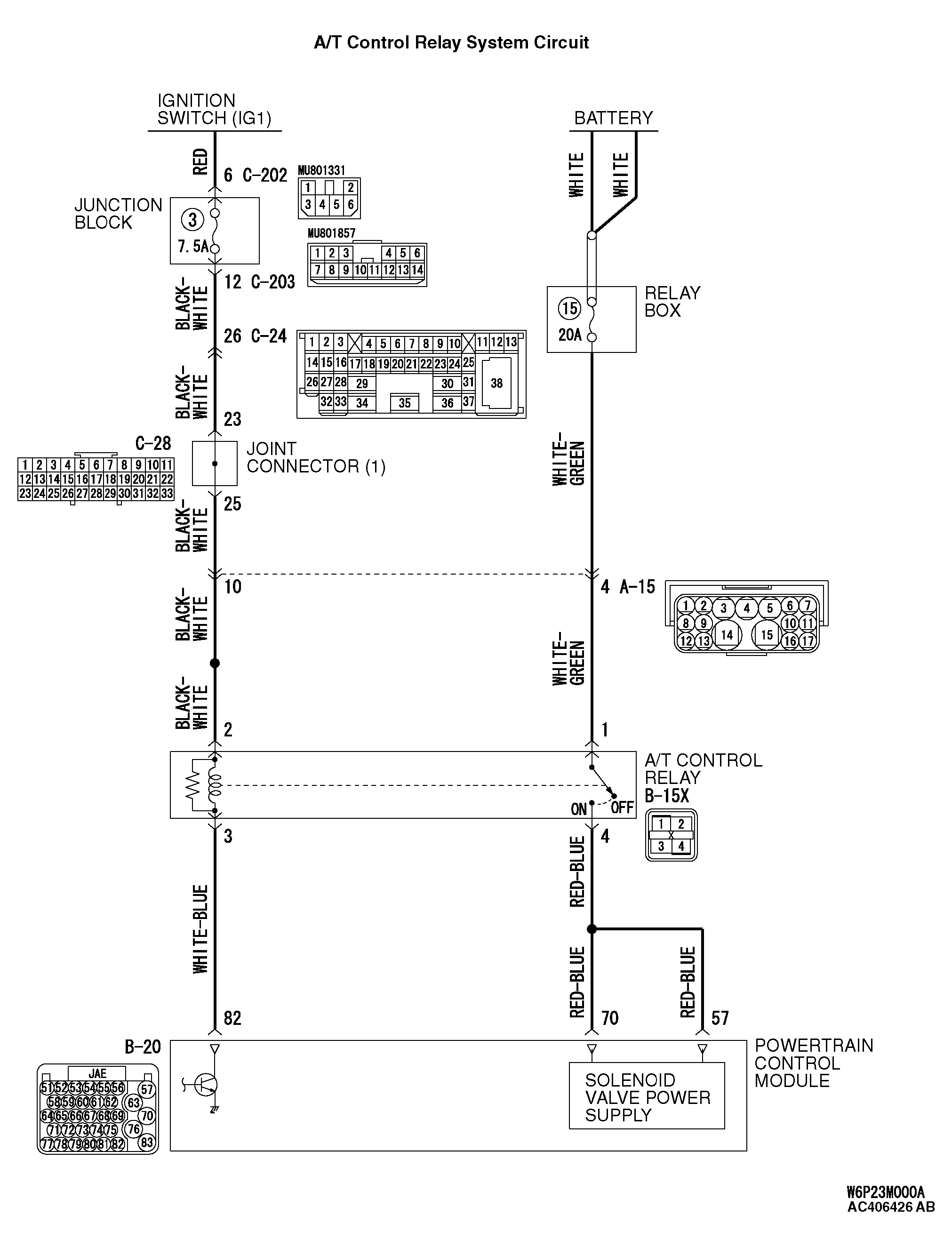
Fig 1: A/T Control Relay System Circuit Diagram
G04230998Courtesy of MITSUBISHI MOTOR SALES OF AMERICA.
Fig 2: Identifying Connector C-202 & C-23 Terminals
G04240685Courtesy of MITSUBISHI MOTOR SALES OF AMERICA.