LEMON Manuals: Even more car manuals for everyone: 1960-2025
Home >> Mitsubishi >> 2008 >> Lancer Evolution GSR >> Repair and Diagnosis (Single Page) >> Transmission >> Manual Trans >> Manual Transaxle On-Vehicle Service - Lancer Evolution >> Diagnosis < S-AWC(Super All Wheel Control) > >> Diagnostic Trouble Code Procedures >> DTC C1000: Stoplight Switch System >> Notes
April 5, 2026: LEMON Manuals is launched! Read the announcement.

DTC C1000: Stoplight Switch System: Notes

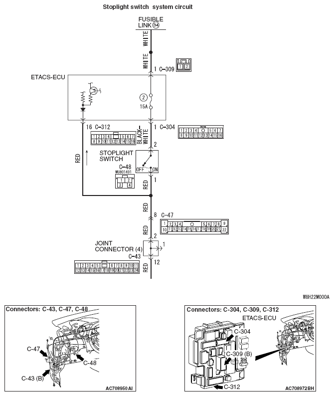
Fig 1: Stoplight Switch System - Circuit Diagram
G05393876Courtesy of MITSUBISHI MOTOR SALES OF AMERICA.
CAUTION:
  • If there is any problem in the CAN bus lines, an incorrect diagnostic trouble code may be set. Prior to this diagnosis, diagnose the CAN bus lines.
  • Whenever the ECU is replaced, ensure that the CAN bus lines are normal.