LEMON Manuals: Even more car manuals for everyone: 1960-2025
Home >> Mitsubishi >> 2009 >> Eclipse L4-2.4L (4G69) >> Repair and Diagnosis >> Powertrain Management >> Computers and Control Systems >> Information Bus >> Testing and Inspection >> Component Tests and General Diagnostics >> CAN Bus Diagnostics >> Diagnostic Item 3 >> Part 1
April 5, 2026: LEMON Manuals is launched! Read the announcement.

Part 1

DIAGNOSTIC ITEM 3: Diagnose shorts between CAN_H and L lines

CAUTION: When servicing a CAN bus line, ground yourself by touching a metal object such as an unpainted water pipe. If you fail to do so, a component connected to the CAN bus line may be damaged.





Part 1:




Part 2:






FUNCTION
If a line-to-line short is present in the CAN bus lines, this diagnosis result will be set.

TROUBLE JUDGEMENT CONDITIONS
Short circuit may be present between the CAN_L and H lines when the resistance between the CAN bus lines (CAN_L and H lines) is less than 2 ohms.

TROUBLESHOOTING HINTS
- The wiring harness may be defective [a short between CAN_H and CAN_L line, open circuit between the data link connector and the joint connector (3)]

NOTE: The scan tool MB991958 cannot receive all the periodically sent data from each ECU by the open circuit of harness between the data link connector and the joint connector (3). In addition, the scan tool MB991958 measures the voltage itself and shows 2.5 volts due to the open circuit of harness. Therefore, it is judged as a short between CAN_H and CAN_L line.

- The connector may be defective (short in the connector)
- Each ECU may be defective (short between CAN_H and CAN_L line)

DIAGNOSIS

Required Special Tools:
- MB991223: Harness Set
- MB992006: Extra fine probe
- MB991923: Power plant ECU Check Harness
- MB991974: ABS Check Harness
- MB991997: ASC Check Harness

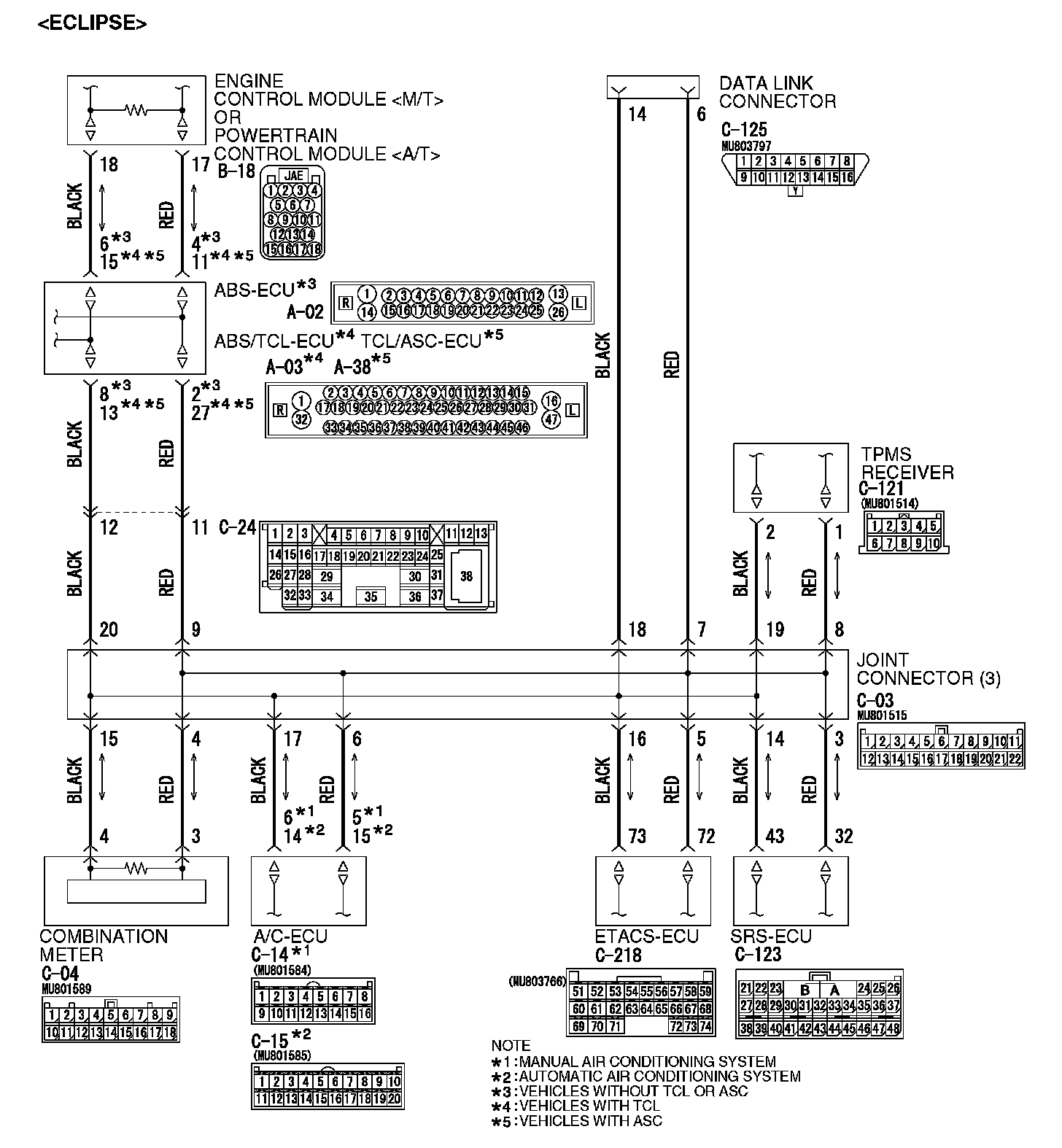
STEP 1. Check joint connector (3) C-03 and intermediate connector C-24 [ECLIPSE] or C-23 [ECLIPSE SPYDER].







CAUTION: The strand end of the twisted wire should be within 10 cm (4.0 inches) from the connector.







Visually check if there is a short between lines due to the foreign obstacles or deformation of short pin in the connector.

Q: Is the check result normal?

YES : Go to Step 2.

NO : Repair the connector, or replace the joint connector (3).

STEP 2. Check the lines between the CAN_H and L lines of the front wiring harness for a short circuit. Measure the resistance at intermediate connector C-24 [ECLIPSE] or C-23 [ECLIPSE SPYDER].

CAUTION:
- A digital multimeter should be used.
- The test wiring harness should be used.
- Disconnect the negative battery terminal.


1. Disconnect the negative battery terminal.







2. Disconnect intermediate connector C-24 [ECLIPSE] or C-23 [ECLIPSE SPYDER], and measure the resistance at the male side (at front wiring harness side [ECLIPSE] or floor wiring harness side [ECLIPSE SPYDER]).







3. Measure the resistance between intermediate connector terminals 11 and 12 [ECLIPSE].

OK: 120 ± 20 ohms







4. Measure the resistance between intermediate connector terminals 22 and 23 [ECLIPSE SPYDER].

OK: 120 ± 20 ohms

Q: Is the check result normal?

YES : Go to Step 3.

NO : Go to Step 14.

STEP 3. Check the CAN_H and L lines between joint connector (3) and the combination meter for a short circuit. Measure the resistance at joint connector (3) C-03.

1. Disconnect the negative battery terminal.







2. Disconnect joint connector (3) C-03, and measure the resistance at the wiring harness side of joint connector (3) C-03.







3. Measure the resistance between joint connector (3) terminals 4 and 15.

OK: 120 ± 20 ohms

Q: Is the check result normal?

YES : Go to Step 4.

NO : Go to Step 9.

STEP 4. Check the CAN_H and L lines between joint connector (3) and the ETACS-ECU for a short circuit. Measure the resistance at joint connector (3) C-03.

1. Disconnect the negative battery terminal.







2. Disconnect joint connector (3) C-03, and measure the resistance at the wiring harness side of joint connector (3) C-03.







3. Measure the resistance between joint connector (3) terminals 5 and 16.

OK: 1 kohms or more

Q: Is the check result normal?

YES : Go to Step 5.

NO : Go to Step 10.

STEP 5. Check the CAN_H and L lines between joint connector (3) and the A/C-ECU for a short circuit. Measure the resistance at joint connector (3) C-03.

1. Disconnect the negative battery terminal.







2. Disconnect joint connector (3) C-03, and measure the resistance at the wiring harness side of joint connector (3) C-03.







3. Measure the resistance between joint connector (3) terminals 6 and 17.

OK: 1 kohms or more

Q: Is the check result normal?

YES : Go to Step 6.

NO : Go to Step 11.

STEP 6. Check the CAN_H and L lines between joint connector (3) and the SRS-ECU for a short circuit. Measure the resistance at joint connector (3) C-03.

1. Disconnect the negative battery terminal.







2. Disconnect joint connector (3) C-03, and measure the resistance at the wiring harness side of joint connector (3) C-03.







3. Measure the resistance between joint connector (3) terminals 3 and 14.

OK: 1 kohms or more

Q: Is the check result normal?

YES : Go to Step 7.

NO : Go to Step 12.

STEP 7. Check the CAN_H and L lines between joint connector (3) and the TPMS receiver for a short circuit. Measure the resistance at joint connector (3) C-03.

1. Disconnect the negative battery terminal.







2. Disconnect joint connector (3) C-03, and measure the resistance at the wiring harness side of joint connector (3) C-03.







3. Measure the resistance between joint connector (3) terminals 8 and 19.

OK: 1 kohms or more

Q: Is the check result normal?

YES : Go to Step 8.

NO : Go to Step 13.

STEP 8. Check the CAN_H and L lines between joint connector (3) and the data link connector for a short circuit. Measure the resistance at joint connector (3) C-03.

1. Disconnect the negative battery terminal.







2. Disconnect joint connector (3) C-03, and measure the resistance at the wiring harness side of joint connector (3) C-03.







3. Measure the resistance between joint connector (3) terminals 7 and 18.

OK: 1 kohms or more

Q: Is the check result normal?

YES : Go to Step 21.

NO : Repair the wiring harness between joint connector (3) and the data link connector.

STEP 9. Check the combination meter for short circuit. Measure the resistance at combination meter connector C-04.

NOTE: The failure could be caused by the open circuit of harness between combination meter and joint connector (3), therefore, check the open circuit as well as the short.

1. Disconnect the negative battery terminal.







2. Disconnect combination meter C-04, and measure the resistance at the component side of combination meter connector C-04.







3. Measure the resistance between combination meter connector terminals 3 and 4.

OK: 120 ± 20 ohms

Q: Is the check result normal?

YES : Check the combination meter connector, and repair if necessary. Repair the open circuit of harness between the joint connector (3) and the combination meter connector or the short between lines if the combination meter connector is normal.

NO : Check the combination meter connector, and repair if necessary. If the combination meter connector is in good condition, replace the combination meter.

STEP 10. Check the ETACS-ECU for short circuit. Measure the resistance at ETACS-ECU connector C-218.

1. Disconnect the negative battery terminal.







2. Disconnect ETACS-ECU connector C-218, and measure the resistance at the component side of ETACS-ECU connector C-218.







3. Measure the resistance between ETACS-ECU connector terminals 72 and 73.

OK: 1 kohms or more

Q: Is the check result normal?

YES : Check the ETACS-ECU connector, and repair if necessary. If the ETACS-ECU connector is in good condition, repair the wiring harness between joint connector (3) and the ETACS-ECU connector.

NO : Check the ETACS-ECU connector, and repair if necessary. If the ETACS-ECU connector is in good condition, replace the ETACS-ECU. When the ETACS-ECU is replaced, register the encrypted code.

STEP 11. Check the A/C-ECU for short circuit. Measure the resistance at A/C-ECU connector C-14 [manual air conditioning system] or C-15 [automatic air conditioning system].

CAUTION: A digital multimeter should be used.

1. Disconnect the negative battery terminal.







2. Disconnect A/C-ECU connector C-14 [manual air conditioning system] or C-15 [automatic air conditioning system], and measure the resistance at the component side of A/C-ECU connector C-14 [manual air conditioning system] or C-15 [automatic air conditioning system].







3. Measure the resistance between A/C-ECU connector terminals 5 and 6. [manual air conditioning system]

OK: 1 kohms or more







4. Measure the resistance between A/C-ECU connector terminals 14 and 15. [automatic air conditioning system]

OK: 1 kohms or more

Q: Is the check result normal?

YES : Check the A/C-ECU connector, and repair if necessary. If the A/C-ECU connector is in good condition, repair the wiring harness between joint connector (3) and the A/C-ECU connector.

NO : Check the A/C-ECU connector, and repair if necessary. If the A/C-ECU connector is in good condition, replace the A/C-ECU.

STEP 12. Check the SRS-ECU for short circuit. Measure the resistance at SRS-ECU connector C-123.

1. Disconnect the negative battery terminal.







2. Disconnect SRS-ECU connector C-123, and measure the resistance at the component side of SRS-ECU connector C-123.







3. Measure the resistance between SRS-ECU connector terminals 32 and 43.

OK: 1 kohms or more

Q: Is the check result normal?

YES : Check the SRS-ECU connector, and repair if necessary. If the SRS-ECU connector is in good condition, repair the wiring harness between joint connector (3) and SRS-ECU connector.

NO : Check the SRS-ECU connector, and repair if necessary. If the SRS-ECU connector is in good condition, replace the SRS-ECU.

STEP 13. Check the TPMS receiver for short circuit. Measure the resistance at TPMS receiver connector C-121.

1. Disconnect the negative battery terminal.







2. Disconnect TPMS receiver connector C-121, and measure the resistance at the component side of TPMS receiver connector C-121.







3. Measure the resistance between TPMS receiver connector terminals 1 and 2.

OK: 1 kohms or more

Q: Is the check result normal?

YES : Check the TPMS receiver connector, and repair if necessary. If the TPMS receiver connector is in good condition, repair the wiring harness between joint connector (3) and TPMS receiver connector.

NO : Check the TPMS receiver connector, and repair if necessary. If the TPMS receiver connector is in good condition, replace the TPMS receiver.