LEMON Manuals: Even more car manuals for everyone: 1960-2025
Home >> Mitsubishi >> 2009 >> Eclipse L4-2.4L (4G69) >> Repair and Diagnosis >> Powertrain Management >> Computers and Control Systems >> Information Bus >> Testing and Inspection >> Component Tests and General Diagnostics >> CAN Bus Diagnostics >> Diagnostic Item 5
April 5, 2026: LEMON Manuals is launched! Read the announcement.

Diagnostic Item 5

DIAGNOSTIC ITEM 5: Diagnose when the scan tool cannot receive the data sent by combination meter.

CAUTION: When servicing a CAN bus line, ground yourself by touching a metal object such as an unpainted water pipe. If you fail to do so, a component connected to the CAN bus line may be damaged.





Part 1:




Part 2:






FUNCTION
The diagnostic result demonstrates that "the scan tool cannot receive the sent data from the combination meter" when the scan tool MB991958 checks the periodically sent data from each ECU and cannot receive the combination meter data only.

TROUBLE JUDGEMENT CONDITIONS
Scan tool MB991958 judges the trouble when the periodically sent data from combination meter cannot be received and sent.

TROUBLESHOOTING HINTS
- The wiring harness may be defective [open circuit between combination meter and joint connector (3)]
- The connector may be defective [poor connection of joint connector (3) or combination meter connector]
- Power supply circuit malfunction of the combination meter
- The combination meter may be defective

DIAGNOSIS

Required Special Tools:
- MB991223: Harness Set
- MB992006: Extra fine probe

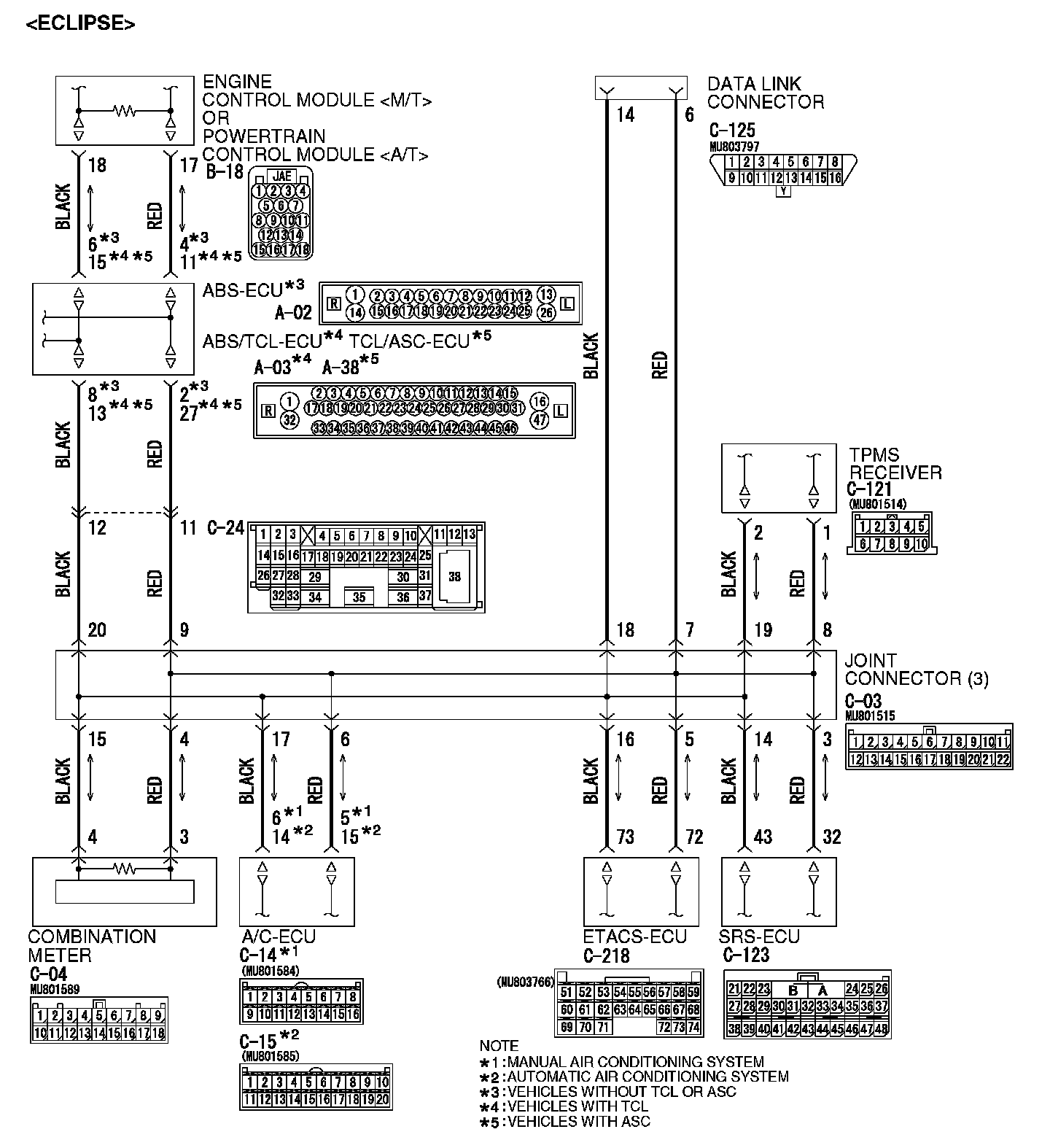
STEP 1. Check joint connector (3) C-03 and combination meter connector C-04 for loose, corroded or damaged terminals, or terminals pushed back in the connector.







Check the joint connector at the wiring harness side for loose, corroded or damaged terminals, or terminals pushed back in the connector, and also check the short pin behind the connector for corrosion, deformation and delamination.

Q: Are joint connector (3) C-03 and combination meter connector C-04 in good condition?

YES : Go to Step 2.

NO : Repair the damaged parts. Replace the joint connector as necessary.

STEP 2. Check the CAN bus lines between joint connector (3) and the combination meter. Measure the resistance between joint connector (3) C-03 and combination meter connector C-04.

CAUTION:
- A digital multimeter should be used.
- The test wiring harness should be used.








1. Disconnect joint connector (3) C-03 and combination meter connector C-04, and measure the resistance between each wiring harness side connector.







2. Measure the resistance between joint connector (3) terminal 4 and combination meter connector terminal 3.

OK: 2 ohms or less







3. Measure the resistance between joint connector (3) terminal 15 and combination meter connector terminal 4.

OK: 2 ohms or less

CAUTION: Strictly observe the specified wiring harness repair procedure.

Q: Do all the resistances measure 2 ohms or less?

YES : Go to Step 3.

NO : Repair the wiring harness between joint connector (3) and the combination meter connector.

STEP 3. Check the terminator resistor inside the combination meter. Measure the resistance at combination meter connector C-04.







1. Disconnect combination meter C-04, and measure the resistance at the component side of combination meter connector C-04.







2. Measure the resistance between combination meter connector terminals 3 and 4.

OK: 120 ± 20 ohms

Q: Does the resistance measure 120 ± 20 ohms?

YES : Refer to Combination Meter - Troubleshooting. Symptom Related Diagnostic Procedures

NO : Replace the combination meter.