LEMON Manuals: Even more car manuals for everyone: 1960-2025
Home >> Mitsubishi >> 2009 >> Eclipse L4-2.4L (4G69) >> Repair and Diagnosis >> Powertrain Management >> Computers and Control Systems >> Information Bus >> Testing and Inspection >> Component Tests and General Diagnostics >> CAN Bus Diagnostics >> Diagnostic Item 6
April 5, 2026: LEMON Manuals is launched! Read the announcement.

Diagnostic Item 6

DIAGNOSTIC ITEM 6: Diagnose when the scan tool cannot receive the data sent by ETACS-ECU.

CAUTION: When servicing a CAN bus line, ground yourself by touching a metal object such as an unpainted water pipe. If you fail to do so, a component connected to the CAN bus line may be damaged.





Part 1:




Part 2:






FUNCTION
The diagnostic result demonstrates that "the scan tool cannot receive the sent data from the ETACS-ECU" when the scan tool MB991958 checks the periodically sent data from each ECU and cannot receive the ETACS-ECU data only.

TROUBLE JUDGEMENT CONDITIONS
Scan tool MB991958 judges the trouble when the periodically sent data from ETACS-ECU cannot be received and sent.

TROUBLESHOOTING HINTS
- The wiring harness may be defective [open circuit between ETACS-ECU and joint connector (3)]
- The connector may be defective [poor connection of joint connector (3) or ETACS-ECU connector]
- Power supply circuit malfunction of the ETACS-ECU
- The ETACS-ECU may be defective

DIAGNOSIS

Required Special Tools:
- MB991223: Harness Set
- MB992006: Extra fine probe

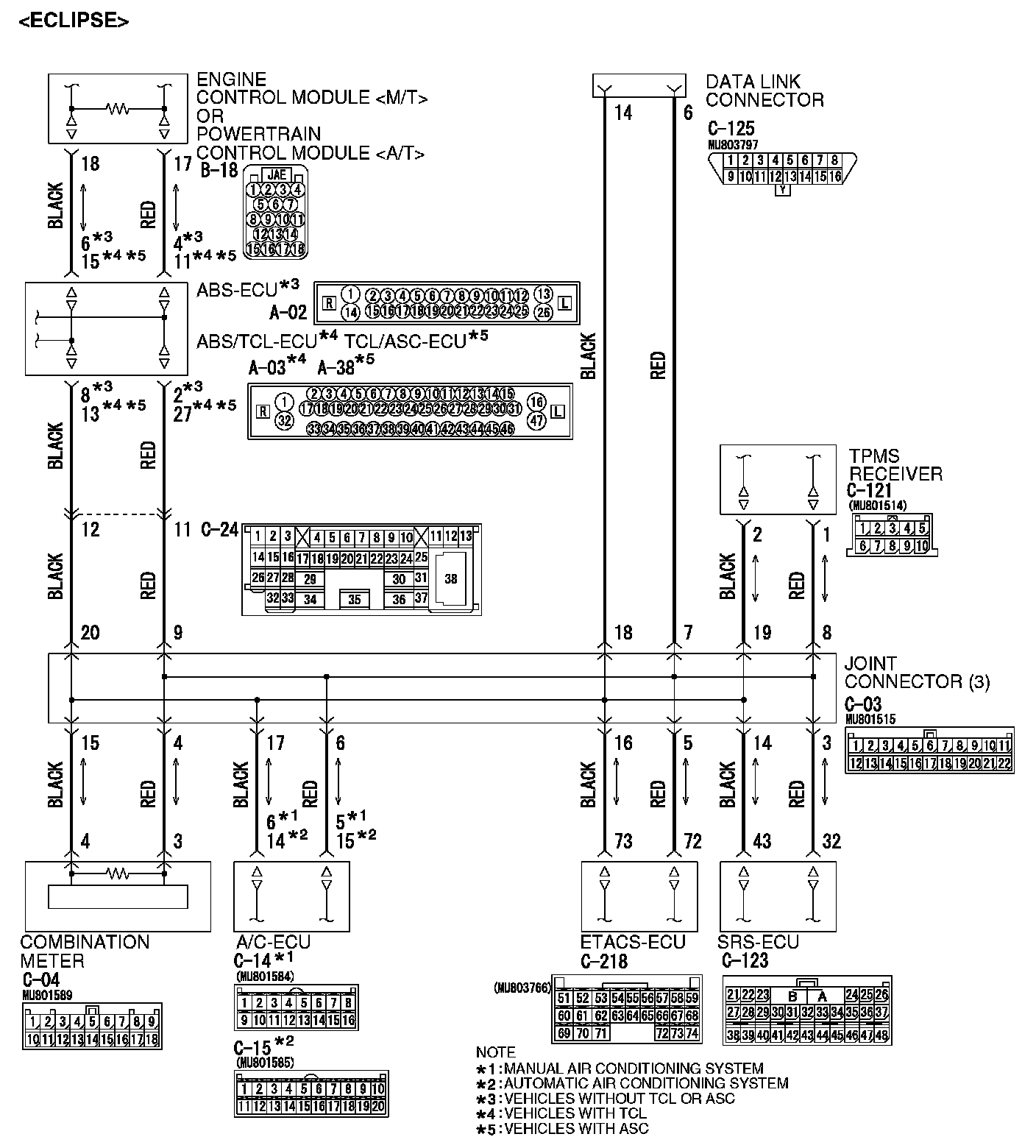
STEP 1. Check joint connector (3) C-03 and ETACS-ECU connector C-218 for loose, corroded or damaged terminals, or terminals pushed back in the connector.







CAUTION: The strand end of the twisted wire should be within 10 cm (4.0 inches) from the connector.







Check the joint connector at the wiring harness side for loose, corroded or damaged terminals, or terminals pushed back in the connector, and also check the short pin behind the connector for corrosion, deformation and delamination.

Q: Are joint connector (3) C-03 and ETACS-ECU connector C-218 in good condition?

YES : Go to Step 2.

NO : Repair the damaged parts. Replace the joint connector as necessary.

STEP 2. Check the CAN bus lines between joint connector (3) and the ETACS-ECU. Measure the resistance between joint connector (3) C-03 and ETACS-ECU connector C-218.

CAUTION:
- A digital multimeter should be used.
- The test wiring harness should be used.








1. Disconnect joint connector (3) C-03 and ETACS-ECU connector C-218, and measure the resistances at the wiring harness sides of joint connector (3) C-03 and ETACS-ECU connector C-218.







2. Measure the resistance between joint connector (3) terminal 5 and ETACS-ECU connector terminal 72.

OK: 2 ohms or less







3. Measure the resistance between joint connector (3) terminal 16 and ETACS-ECU connector terminal 73.

OK: 2 ohms or less

CAUTION: Strictly observe the specified wiring harness repair procedure.

Q: Do all the resistances measure 2 ohms or less?

YES : Diagnose the ETACS-ECU. Refer to Symptom procedures. Inspection Procedure A-3

NO : Repair the wiring harness between joint connector (3) and the ETACS-ECU connector.