LEMON Manuals: Even more car manuals for everyone: 1960-2025
Home >> Mitsubishi >> 2009 >> Eclipse L4-2.4L (4G69) >> Repair and Diagnosis >> Powertrain Management >> Transmission Control Systems >> Testing and Inspection >> Symptom Related Diagnostic Procedures >> Inspection Procedure 15: Shift Switch Assembly System
April 5, 2026: LEMON Manuals is launched! Read the announcement.

Inspection Procedure 15: Shift Switch Assembly System

INSPECTION PROCEDURE 15: Shift Switch Assembly System











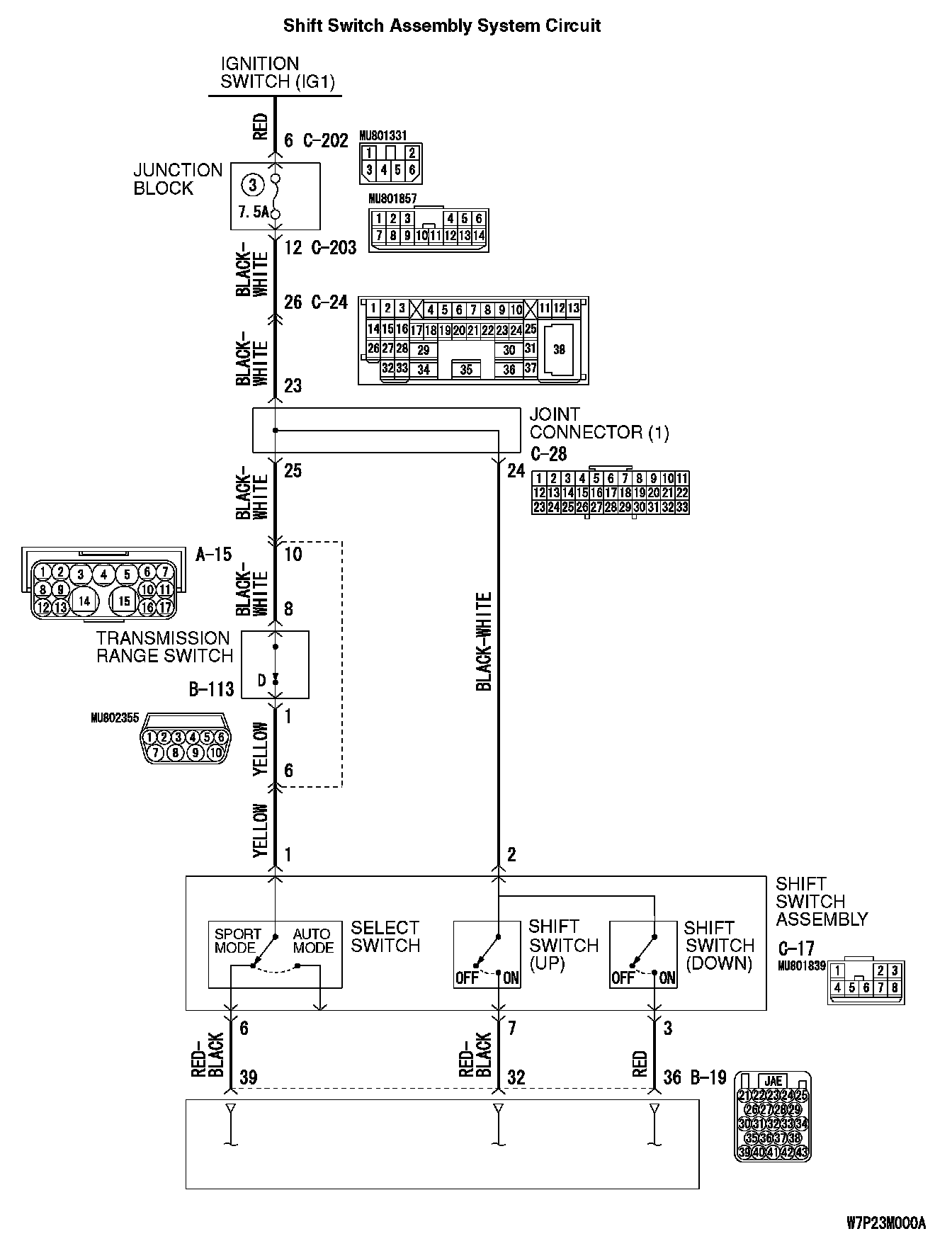
CIRCUIT OPERATION
If the select switch of the shift switch assembly is set to the sport mode, battery positive voltage will be applied to the PCM (terminal 39). If the shift switch of the shift switch assembly is set to "UP" or "DOWN" position, battery positive voltage will be applied to the PCM (terminal 32, 36).

COMMENT
When sport mode shift does not operate the cause is probably a malfunction of the transmission range switch circuit, shift switch assembly circuit or a defective PCM.

TROUBLESHOOTING HINTS (THE MOST LIKELY CAUSES FOR THIS CASE:)
^ Malfunction of the transmission range switch
^ Malfunction of the shift switch assembly select switch
^ Malfunction of the shift switch assembly shift switch (Up)
^ Malfunction of the shift switch assembly shift switch (Down)
^ Damaged harness or connector
^ Malfunction of the PCM

DIAGNOSIS

Required Special Tools:
^ MB991958: Scan Tool (M.U.T.-III Sub Assembly)
^ MB991824: V.C.I.
^ MB991827: M.U.T.-III USB Cable
^ MB991910: M.U.T.-III Main Harness A

STEP 1. Using scan tool MB991958, read the A/T diagnostic trouble code.

CAUTION





To prevent damage to scan tool MB991958, always turn the ignition switch to the "LOCK" (OFF) position before connecting or disconnecting scan tool MB991958.


1) Connect scan tool MB991958 to the data link connector.
2) Turn the ignition switch to the "ON" position.
3) Check for A/T diagnostic trouble code.
4) Turn the ignition switch to the "LOCK" (OFF) position.

Q: Is DTC P1770 (P0705) or P1771 (P0705) set?
YES [DTC P1770 (P0705) set]: Refer to DTC P1770 (P0705): Transmission Range Switch System (Open Circuit). P1770
YES [DTC P1771 (P0705) set]: Refer to DTC P1771 (P0705): Transmission Range Switch System (Short Circuit). P1771
NO: Go to Step 2.

STEP 2. Using scan tool MB991958, check data list item 27: Select Switch, item 28: Shift Switch (Up), item 29: Shift Switch (Down).





1) Connect scan tool MB991958 to the data link connector.
2) Turn the ignition switch to the "ON" position.
3) Set scan tool MB991958 to the data reading mode for following items.
a. Item 27: Select Switch
b. Item 28: Shift Switch (Up)
c. Item 29: Shift Switch (Down)





NOTE: The switches above are displayed, depending on the selector lever condition as shown in the table.

4) Turn the ignition switch to the "LOCK" (OFF) position.

Q: Is the switch operating properly?
YES: It can be assumed that this malfunction is intermittent.
NO [If completely NG]: Go to Step 3.
NO [If item 28 and item 29 both are NG]: Go to Step 5.
NO [If only item 27 is NG]:
Go to Step 9.
NO [If only item 28 is NG]: Go to Step 17.
NO [If only item 29 is NG]: Go to Step 22.

STEP 3. Check PCM connector B-19 and shift switch assembly connector C-17 for loose, corroded or damaged terminals, or terminals pushed back in the connector.





Q: Are the connectors in good condition?
YES: Go to Step 4.
NO: Repair or replace the damaged components.





STEP 4. Using scan tool MB991958, check data list item 27: Select Switch, item 28: Shift Switch (Up), item 29: Shift Switch (Down).

CAUTION





To prevent damage to scan tool MB991958, always turn the ignition switch to the "LOCK" (OFF) position before connecting or disconnecting scan tool MB991958.


1) Connect scan tool MB991958 to the data link connector.
2) Turn the ignition switch to the "ON" position.
3) Set scan tool MB991958 to the data reading mode for following items.
a. Item 27: Select Switch
b. Item 28: Shift Switch (Up)
c. Item 29: Shift Switch (Down)





NOTE: The switches above are displayed, depending on the selector lever condition as shown in the table.

4) Turn the ignition switch to the "LOCK" (OFF) position.

Q: Is the switch operating properly?
YES: It can be assumed that this malfunction is intermittent.
NO: Replace the PCM. When the PCM is replaced, register the encrypted code.

STEP 5. Check the shift switch assembly.

Q: Is the switch operating properly?
YES: Go to Step 6.
NO: Replace the shift switch assembly.

STEP 6. Measure the power supply voltage at shift switch assembly connector C-17.





1) Disconnect connector C-17 and measure at the harness side.
2) Turn the ignition switch to the "ON" position.





3) Measure the voltage between terminal 2 and ground.
^ The voltage should measure battery positive voltage.
4) Turn the ignition switch to the "LOCK" (OFF) position.

Q: Is the measured voltage battery positive voltage?
YES: Go to Step 4.
NO: Go to Step 7.

STEP 7. Check joint connector (1) C-28 and shift switch assembly connector C-17 for loose, corroded or damaged terminals, or terminals pushed back in the connector.





Q: Are the connectors and terminals in good condition?
YES: Go to Step 8.
NO: Repair or replace the damaged components.





STEP 8. Check the harness for open circuit or short circuit to ground between joint connector (1) C-28 terminal 24 and shift switch assembly connector C-17 terminal 2.





Q: Is the harness wire in good condition?
YES: Go to Step 4.
NO: Repair or replace the harness wire.





STEP 9. Measure the power supply voltage at shift switch assembly connector C-17.





1) Disconnect connector C-17 and measure at the harness side.
2) Turn the ignition switch to the "ON" position.
3) Move the selector lever to the "D" position.





4) Measure the voltage between terminal 1 and ground.
^ The voltage should measure battery positive voltage.
5) Turn the ignition switch to the "LOCK" (OFF) position.

Q: Is the measured voltage battery positive voltage?
YES: Go to Step 12.
NO: Go to Step 10.

STEP 10. Check intermediate connector A-15 and shift switch assembly connector C-17 for loose, corroded or damaged terminals, or terminals pushed back in the connector.





Q: Are the connector and terminals in good condition?
YES: Go to Step 11.
NO: Repair or replace the damaged components.





STEP 11. Check harness for open circuit or short circuit to ground between transmission range switch connector B-113 terminal 1 and shift switch assembly connector C-17 terminal 1.





Q: Is the harness wire in good condition?
YES: Go to Step 4.
NO: Repair or replace the harness wire.





STEP 12. Check the shift switch assembly.

Q: Is the switch operating properly?
YES: Go to Step 13.
NO: Replace the shift switch assembly.

STEP 13. Measure the shift switch output voltage at PCM connector B-19 by using check harness special tool MB991923.





1) Disconnect all the connectors from the PCM.





2) Connect special tool MB991923 (check harness) between the PCM and the body-side harness connector.
3) Turn the ignition switch to the "ON" position.
4) Move the selector lever to the sport mode.





5) Measure the voltage between terminal 39 and ground.
^ The voltage should measure battery positive voltage.
6) Turn the ignition switch to the "LOCK" (OFF) position.

Q: Is the measured voltage battery positive voltage?
YES: Go to Step 16.
NO: Go to Step 14.

STEP 14. Check PCM connector B-19 and shift switch assembly connector C-17 for loose, corroded or damaged terminals, or terminals pushed back in the connector.





Q: Are the connectors and terminals in good condition?
YES: Go to Step 15.
NO: Repair or replace the damaged components.





STEP 15. Check the harness for open circuit or short circuit to ground between PCM connector B-19 terminal 39 and shift switch assembly connector C-17 terminal 6.





Q: Is the harness wire in good condition?
YES: Go to Step 4.
NO: Repair or replace the harness wire.





STEP 16. Check PCM connector B-19 for loose, corroded or damaged terminals, or terminals pushed back in the connector.





Q: Are the connector and terminals in good condition?
YES: Go to Step 4.
NO: Repair or replace the damaged components.

STEP 17. Check the shift switch assembly.

Q: Is the switch operating properly?
YES: Go to Step 18.
NO: Replace the shift switch assembly.

STEP 18. Measure the switch output voltage at PCM connector B-19 by using check harness special tool MB991923.





1) Disconnect all the connectors from the PCM.





2) Connect special tool MB991923 (check harness) between the PCM and the body-side harness connector.
3) Turn the ignition switch to the "ON" position.





4) Measure the voltage between terminal 32 and ground.
^ The voltage should measure battery positive voltage when the selector lever is upshift and hold.
5) Turn the ignition switch to the "LOCK" (OFF) position.

Q: Is the measured voltage battery positive voltage?
YES: Go to Step 21.
NO: Go to Step 19.

STEP 19. Check PCM connector B-19 and shift switch assembly connector C-17 for loose, corroded or damaged terminals, or terminals pushed back in the connector.





Q: Are the connectors and terminals in good condition?
YES: Go to Step 20.
NO: Repair or replace the damaged components.





STEP 20. Check the harness for open circuit or short circuit to ground between PCM connector B-19 terminal 32 and shift switch assembly connector C-17 terminal 7.





Q: Is the harness wire in good condition?
YES: Go to Step 4.
NO: Repair or replace the harness wire.





STEP 21. Check PCM connector B-19 for loose, corroded or damaged terminals, or terminals pushed back in the connector.





Q: Are the connector and terminals in good condition?
YES: Go to Step 4.
NO: Repair or replace the damaged components.

STEP 22. Check the shift switch assembly.

Q: Is the switch operating properly?
YES: Go to Step 23.
NO: Replace the shift switch assembly.

STEP 23. Measure the switch output voltage at PCM connector B-19 by using check harness special tool MB991923.





1) Disconnect all the connectors from the PCM.





2) Connect special tool MB991923 (check harness) between the PCM and the body-side harness connector.
3) Turn the ignition switch to the "ON" position.





4) Measure the voltage between terminal 36 and ground.
^ The voltage should measure battery positive voltage when the selector lever is downshift and hold.
5) Turn the ignition switch to the "LOCK" (OFF) position.

Q: Is the measured voltage battery positive voltage?
YES: Go to Step 26.
NO: Go to Step 24.

STEP 24. Check PCM connector B-19 and shift switch assembly connector C-17 for loose, corroded or damaged terminals, or terminals pushed back in the connector.





Q: Are the connectors and terminals in good condition?
YES: Go to Step 25.
NO: Repair or replace the damaged components.





STEP 25. Check the harness for open circuit or short circuit to ground between PCM connector B-19 terminal 36 and shift switch assembly connector C-17 terminal 3.





Q: Is the harness wire in good condition?
YES: Go to Step 4.
NO: Repair or replace the harness wire.





STEP 26. Check PCM connector B-19 for loose, corroded or damaged terminals, or terminals pushed back in the connector.





Q: Are the connector and terminals in good condition?
YES: Go to Step 4.
NO: Repair or replace the damaged components.