LEMON Manuals: Even more car manuals for everyone: 1960-2025
Home >> Mitsubishi >> 2012 >> RVR ES >> Repair and Diagnosis (Single Page) >> Accessories & Equipment >> Steering Column Switches >> Steering Wheel Audio Remote Control Switch >> Diagnosis >> Symptom Procedures >> INSPECTION PROCEDURE 2: steering wheel audio remote control switch does not function. < vehicles with MMCS > >> Notes
April 5, 2026: LEMON Manuals is launched! Read the announcement.

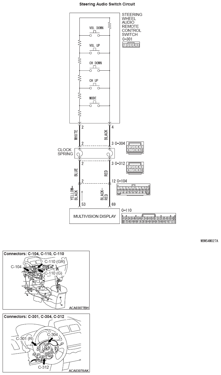
INSPECTION PROCEDURE 2: steering wheel audio remote control switch does not function. < vehicles with MMCS >: Notes

CAUTION: Before replacing the multivision display or steering wheel audio remote control switch, ensure that the power supply circuit, the ground circuit and the communication circuit are normal.
Fig 1: Steering Audio Switch Circuit Diagram
G07049077Courtesy of MITSUBISHI MOTOR SALES OF AMERICA.