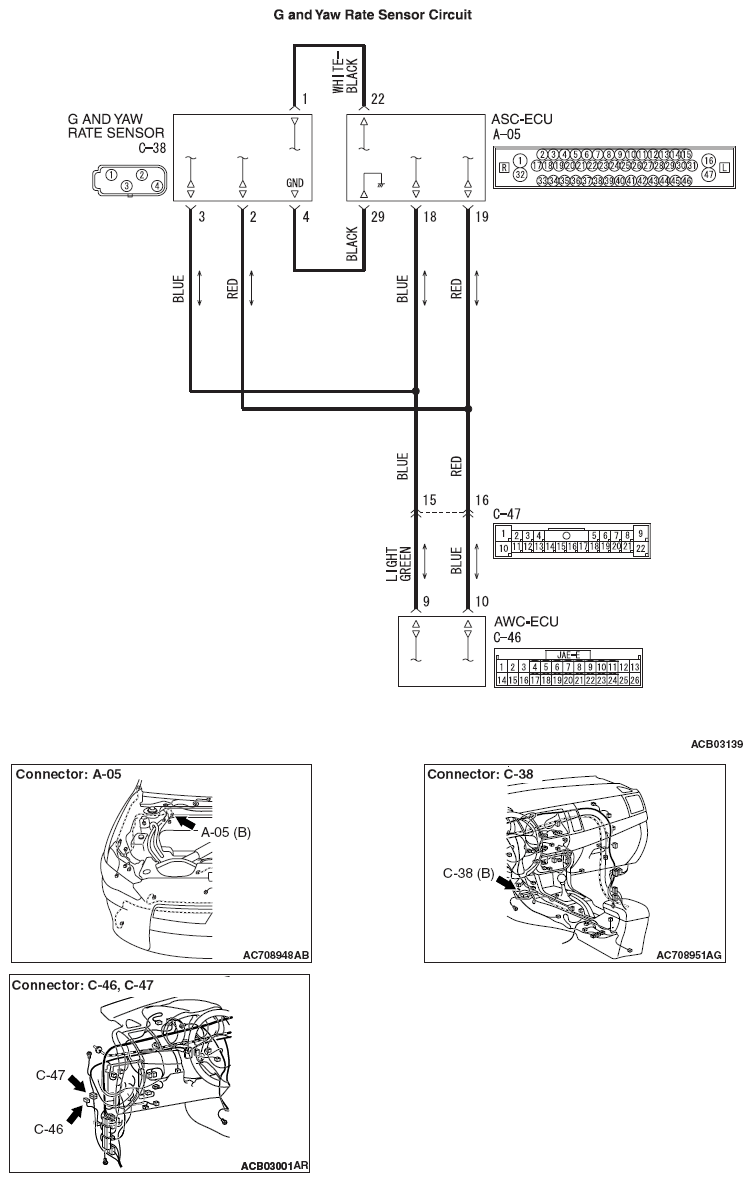
DTC U0125: G and yaw rate sensor message time-out error/message error: Notes
WARNING: This page is about a different variant/trim than selected.
CAUTION:
- If there is any problem in the CAN bus lines, an incorrect diagnostic trouble code may be set. Prior to this diagnosis, diagnose the CAN bus lines (Refer to CAN BUS LINE DIAGNOSTIC FLOW ).
- Whenever the ECU is replaced, ensure that the CAN bus lines are normal.
- Do not drop the G and yaw rate sensor or subject it to a shock.
- When the G and yaw rate sensor is replaced, always perform the calibration to make ASC-ECU learn the neutral point (Refer to G AND YAW RATE SENSOR CALIBRATION ).
- When the hydraulic unit (integrated with ASC-ECU) is replaced, after turning the ignition switch ON and OFF (vehicle information from ETACS-ECU is registered), always perform the calibration of steering wheel sensor, G and yaw rate sensor, brake fluid pressure sensor, cut valve, and inlet valve (Refer to G AND YAW RATE SENSOR CALIBRATION , STEERING WHEEL SENSOR CALIBRATION , MASTER CYLINDER BRAKE FLUID PRESSURE SENSOR CALIBRATION , and CALIBRATION OF CUT VALVE AND INLET VALVE ).