LEMON Manuals: Even more car manuals for everyone: 1960-2025
Home >> Mitsubishi >> 2019 >> RVR ES, Standard Trans >> Repair and Diagnosis >> Brakes >> Traction Control >> Active Stability Control System (ASC) >> TCL/ASC Diagnosis <FCM/LDW/AHB-Ecu> >> Symptom Procedures >> Inspection Procedure 1: Scan Tool Communication With FCM/LDW/AHB System Is Impossible >> Notes
April 5, 2026: LEMON Manuals is launched! Read the announcement.

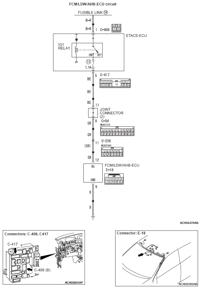
Inspection Procedure 1: Scan Tool Communication With FCM/LDW/AHB System Is Impossible: Notes

G12675046Courtesy of MITSUBISHI MOTOR SALES OF AMERICA.
CAUTION:
  • Whenever ECU is replaced, ensure that the CAN bus lines are normal.