LEMON Manuals: Even more car manuals for everyone: 1960-2025
Home >> Nissan-Datsun >> 2003 >> Sentra SE-R, Automatic >> Repair and Diagnosis >> External Pages >> Different car >> Section 2349 (Engine Control System - DTCS P1212 To P2A03) >> DTC P2101 Electric Throttle Control Function >> Wiring Diagram
April 5, 2026: LEMON Manuals is launched! Read the announcement.

DTC P2101 Electric Throttle Control Function: Wiring Diagram

WARNING: This page is about a different car, the 2006 Nissan Quest. However, it is still accessible from the selected car via links, so may be relevant.

For PG references, see POWER SUPPLY, GROUND & CIRCUIT ELEMENTS

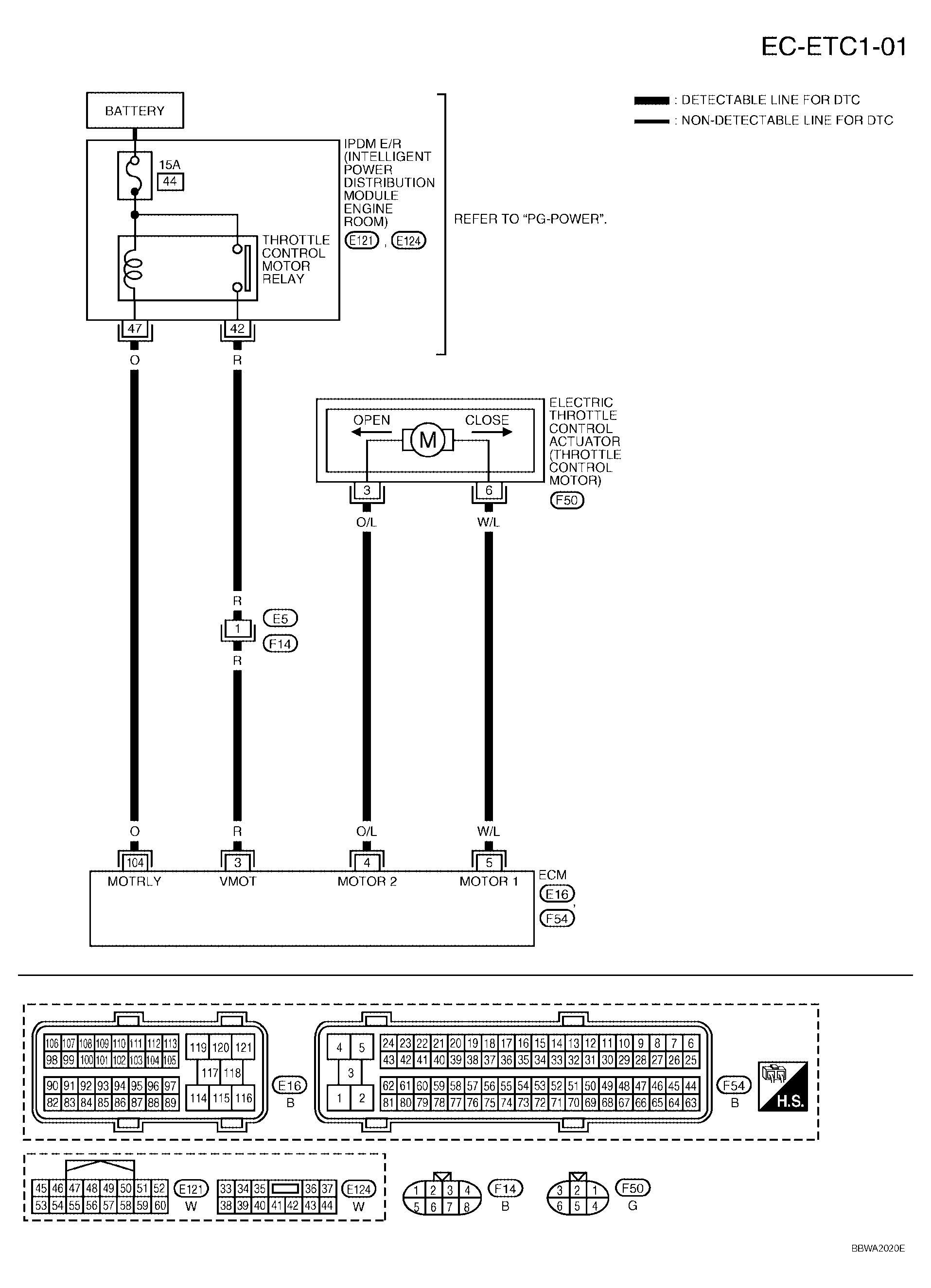
Fig 1: EC-ETC1-01 - Wiring Diagram
G04197059Courtesy of NISSAN MOTOR CO., U.S.A.

Specification data are reference values and are measured between each terminal and ground.

Pulse signal is measured by CONSULT-II.

CAUTION: Do not use ECM ground terminals when measuring input/output voltage. Doing so may result in damage to the ECM's transistor. Use a ground other than ECM terminals, such as the ground.
ECM SPECIFICATION DATA AND REFERENCE VALUES

TERMINAL NO. WIRE COLOR ITEM CONDITION DATA (DC Voltage)
3 R Throttle control motor relay power supply [Ignition switch: ON]  BATTERY VOLTAGE (11 - 14V)
4 O/L Throttle control motor (Close) [Ignition switch: ON] 
  • Engine stopped
  • Shift lever: D
  • Accelerator pedal: Fully released
0 - 14V(1)
G04074579Courtesy of NISSAN MOTOR CO., U.S.A.
5 W/L Throttle control motor (Open) [Ignition switch: ON] 
  • Engine stopped
  • Shift lever: D
  • Accelerator pedal: Fully depressed
0 - 14V(1)
G04074580Courtesy of NISSAN MOTOR CO., U.S.A.
104 O Throttle control motor relay [Ignition switch: OFF]  BATTERY VOLTAGE (11 - 14V)
      [Ignition switch: ON]  0 - 1.0V
(1) Average voltage for pulse signal (Actual pulse signal can be confirmed by oscilloscope.)