LEMON Manuals: Even more car manuals for everyone: 1960-2025
Home >> Nissan-Datsun >> 2004 >> Sentra SE-R Spec V >> Repair and Diagnosis >> External Pages >> Different car >> Section 213 (Engine Controls - Self-Diagnostics) >> Diagnostic Tests >> DTC P0112 & DTC P0113: Intake Air Temperature Sensor >> Wiring Diagram & Reference Data For Intake Air Temperature Sensor
April 5, 2026: LEMON Manuals is launched! Read the announcement.

Wiring Diagram & Reference Data For Intake Air Temperature Sensor

WARNING: This page is about a different car, the 2003 Infiniti M45. However, it is still accessible from the selected car via links, so may be relevant.

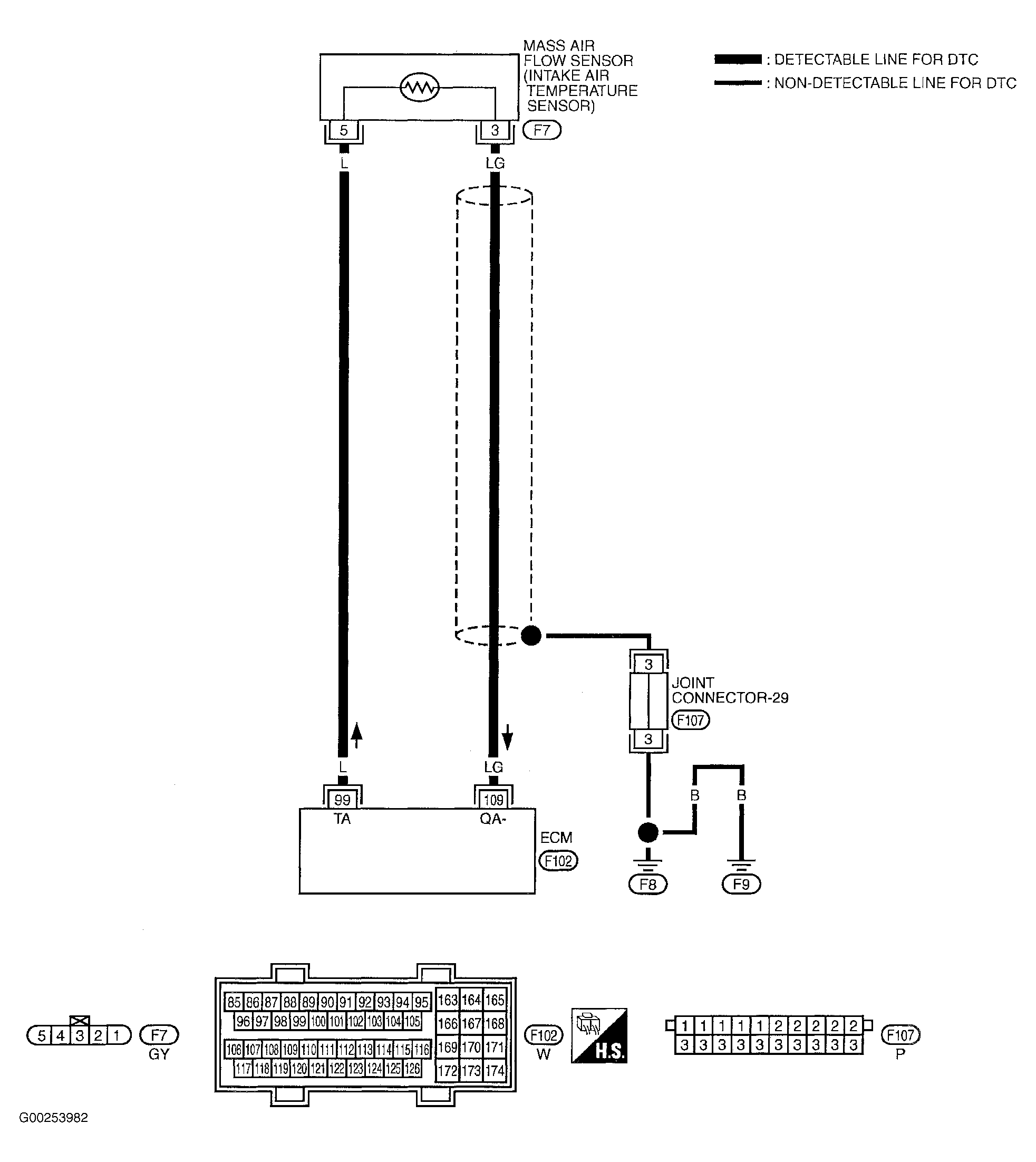
For wiring diagram, specification data and reference values for Intake Air Temperature (IAT) sensor, see Fig 1 and Fig 2 .

Fig 1: Wiring Diagram For Intake Air Temperature Sensor
G00253982Courtesy of NISSAN MOTOR CO., U.S.A.
Fig 2: Reference Data For Intake Air Temperature Sensor
G00253983Courtesy of NISSAN MOTOR CO., U.S.A.