LEMON Manuals: Even more car manuals for everyone: 1960-2025
Home >> Nissan-Datsun >> 2006 >> Murano SL, AWD >> Repair and Diagnosis >> Engine Performance >> System >> Engine Control System - Component Testing >> VIAS >> Wiring Diagram
April 5, 2026: LEMON Manuals is launched! Read the announcement.

Engine Control System - Component Testing: VIAS: Wiring Diagram

NOTE: For PG go to SYSTEM WIRING DIAGRAMS .
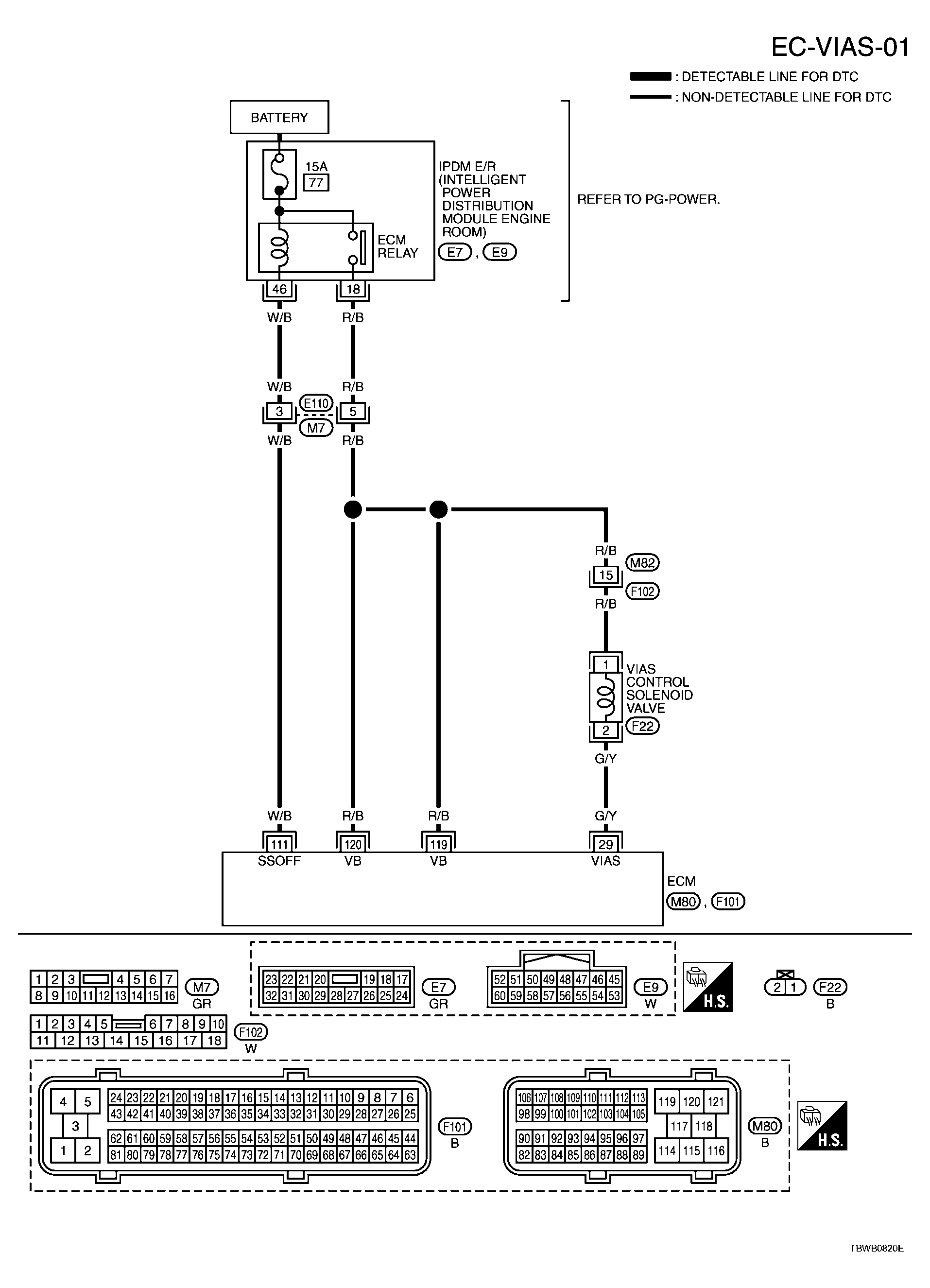
Fig 1: EC-VIAS-01 - Wiring Diagram
G04216562Courtesy of NISSAN MOTOR CO., U.S.A.

Specification data are reference values and are measured between each terminal and ground.

CAUTION: Do not use ECM ground terminals when measuring input/output voltage. Doing so may result in damage to the ECM's transistor. Use a ground other than ECM terminals, such as the ground.
TERMINAL WIRE COLOR CONDITION SPECIFICATIONS

TERMINAL NO. WIRE COLOR ITEM CONDITION DATA (DC Voltage)
29 G/Y VIAS control solenoid valve [Engine is running] 
  • Idle speed
BATTERY VOLTAGE (11 - 14V)
[Engine is running] 
  • Engine speed: Between 1, 800 and 3, 600 rpm.
0 - 1.0V
111 W/B ECM relay (Self shut-off) [Engine is running] 
[Ignition switch: OFF] 
  • For a few seconds after turning ignition switch OFF
0 - 1.5V
[Ignition switch: OFF] 
  • More than a few seconds after turning ignition switch OFF
BATTERY VOLTAGE (11 - 14V)
119
120
R/B
R/B
Power supply for ECM [Ignition switch: ON]  BATTERY VOLTAGE (11 - 14V)