LEMON Manuals: Even more car manuals for everyone: 1960-2025
Home >> Toyota >> 2010 >> 4Runner Trail >> Repair and Diagnosis (Single Page) >> Electrical >> Fuses & Circuit Breakers >> OEM Junction Block, Ecu & Fuse/Relay Locations >> Relay Block Identification >> Engine Room Relay Block Assembly And Engine Room Junction Block Assembly >> Notes
April 5, 2026: LEMON Manuals is launched! Read the announcement.

Engine Room Relay Block Assembly And Engine Room Junction Block Assembly: Notes

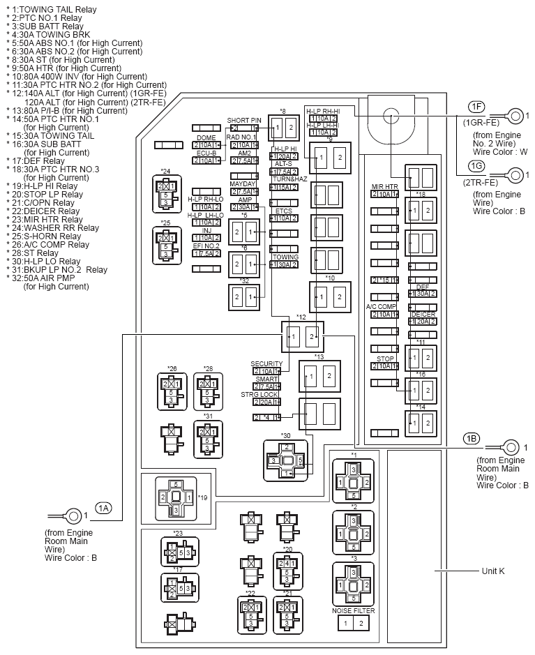
Fig 1: Engine Room J/B Relay Block & Fuse Locations
G07551494Courtesy of © TOYOTA, LICENSE AGREEMENT TMS1002
Engine Room J/B Relay Identification

RELAY NUMBER RELAY DESCRIPTION
*1: Towing Tail Relay
*2: PTC No. 1 Relay
*3: SUB BATT Relay
*17: DEF Relay
*19: H-LP HI Relay
*20: Stop LP Relay
*21: C/OPN Relay
*22: Deicer Relay
*23: MIR HTR Relay
*24: Washer RR Relay
*25: S-Horn Relay
*26: A/C COMP Relay
*28: ST Relay
*30: H-LP LO Relay
*31: BKUP LP No. 2 Relay
Engine Room J/B Fuse Identification Legend

Fuse System
7.5A ALT-S Charging
7.5A EFI NO. 2 Engine Control (1GR-FE), Electronically Controlled Transmission and A/T Indicator (1GR-FE) and Cruise Control (1GR-FE)
Engine Control (2TR-FE), Electronically Controlled Transmission and A/T Indicator (2TR-FE) and Cruise Control (2TR-FE)
7.5A MAYDY Safety Connect
7.5A SMART Smart Key System
10A A/C COMP Air Conditioning
10A DOME Automatic Light Control and Light Auto Turn Off System
Back Door Opener
Combination Meter
Door Lock Control
Interior Light
Power Window
Rear Wiper and Washer
Smart Key System
Theft Deterrent
Wireless Door Lock Control (w/o Smart Key System)
10A ECU-B 4WD (VF2A) and Rear Differential Lock
4WD (VF4BM)
ABS, Crawl, Multi-Terrain Select, Auto LSD, Downhill Assist Control, Hill-Start Assist Control, TRAC, A-TRAC and VSC
Accessory Meter
Air Conditioning
Automatic Light Control and Light Auto Turn Off System
Back Door Opener
Combination Meter
Door Lock Control
Engine Control (1GR-FE), Electronically Controlled Transmission and A/T Indicator (1GR-FE) and Cruise Control (1GR-FE)
Engine Control (2TR-FE), Electronically Controlled Transmission and A/T Indicator (2TR-FE) and Cruise Control (2TR-FE)
Front Fog Light
Headlight
Interior Light
Key Reminder (w/o Smart Key System)
Kinetic Dynamic Suspension System
Power Steering
Power Window
Rear Wiper and Washer
Seat Belt Warning
Sliding Roof
Smart Key System
SRS
Taillight and Illumination
Theft Deterrent
Tire Pressure Warning System
Trailer Towing
Wireless Door Lock Control (w/o Smart Key System)
10A ETCS Engine Control (1GR-FE), Electronically Controlled Transmission and A/T Indicator (1GR-FE) and Cruise Control (1GR-FE)
Engine Control (2TR-FE), Electronically Controlled Transmission and A/T Indicator (2TR-FE) and Cruise Control (2TR-FE)
10A H-LP LH-HI Headlight
10A H-LP LH-LO Headlight
10A H-LP RH-HI Headlight
10A H-LP RH-LO Headlight
10A HORN Horn
Theft Deterrent
Wireless Door Lock Control (w/o Smart Key System)
10A INJ Accessory Meter
Audio System (Separate Type Amplifier), Navigation System and Parking Assist (Rear View Monitor w/ Navigation System)
Combination Meter
Engine Control (1GR-FE), Electronically Controlled Transmission and A/T Indicator (1GR-FE) and Cruise Control (1GR-FE)
Engine Control (2TR-FE), Electronically Controlled Transmission and A/T Indicator (2TR-FE) and Cruise Control (2TR-FE)
Ignition (1GR-FE)
Ignition (2TR-FE)
10A MIR HTR Rear Window Defogger and Mirror Heater
10A RAD NO. 1 Audio System (Separate Type Amplifier), Navigation System and Parking Assist (Rear View Monitor w/ Navigation System)
10A SECURITY Engine Immobiliser System (w/o Smart Key System)
Theft Deterrent
Wireless Door Lock Control (w/o Smart Key System)
10A STOP ABS, Crawl, Multi-Terrain Select, Auto LSD, Downhill Assist Control, Hill-Start Assist Control, TRAC, A-TRAC and VSC
Engine Control (1GR-FE), Electronically Controlled Transmission and A/T Indicator (1GR-FE) and Cruise Control (1GR-FE)
Engine Control (2TR-FE), Electronically Controlled Transmission and A/T Indicator (2TR-FE) and Cruise Control (2TR-FE)
Shift Lock (1GR-FE)
Shift Lock (2TR-FE)
10A STOP Smart Key System
Stop Light
Trailer Towing
15A TURN&HAZ Trailer Towing
Turn Signal and Hazard Warning Light
20A A/F Engine Control (1GR-FE), Electronically Controlled Transmission and A/T Indicator (1GR-FE) and Cruise Control (1GR-FE)
Engine Control (2TR-FE), Electronically Controlled Transmission and A/T Indicator (2TR-FE) and Cruise Control (2TR-FE)
20A DEICER Front Window Deicer
20A H-LP HI Automatic Light Control and Light Auto Turn Off System
Headlight
Theft Deterrent
Wireless Door Lock Control (w/o Smart Key System)
20A STRG LOCK Smart Key System
25A EFI Engine Control (1GR-FE), Electronically Controlled Transmission and A/T Indicator (1GR-FE) and Cruise Control (1GR-FE)
Engine Control (2TR-FE), Electronically Controlled Transmission and A/T Indicator (2TR-FE) and Cruise Control (2TR-FE)
30A ABS NO. 2 ABS, Crawl, Multi-Terrain Select, Auto LSD, Downhill Assist Control, Hill-Start Assist Control, TRAC, A-TRAC and VSC
30A AMP Audio System (Built-in Type Amplifier)
Audio System (Separate Type Amplifier), Navigation System and Parking Assist (Rear View Monitor w/ Navigation System)
30A DEF Rear Window Defogger and Mirror Heater
30A PTC HTR NO. 2 Air Conditioning
30A PTC HTR NO. 3 Air Conditioning
30A ST Smart Key System
Starting (w/o Smart Key System)
30A SUB BATT Trailer Towing
30A TOWING Trailer Towing
Turn Signal and Hazard Warning Light
30A TOWING BRK Trailer Towing
30A TOWING TAIL Trailer Towing
50A ABS NO. 1 ABS, Crawl, Multi-Terrain Select, Auto LSD, Downhill Assist Control, Hill-Start Assist Control, TRAC, A-TRAC and VSC
50A AIR PMP Engine Control (2TR-FE), Electronically Controlled Transmission and A/T Indicator (2TR-FE) and Cruise Control (2TR-FE)
50A HTR Air Conditioning
50A PTC NO. 1 Air Conditioning
80A 400W INV Power Outlet (120V)
120A ALT (2TR-FE) Automatic Light Control and Light Auto Turn Off System
Back-Up Light
Charging
120A ALT (2TR-FE) Front Fog Light
Parking Assist (Intuitive Parking Assist)
Safety Connect
Starting (w/o Smart Key System)
Taillight and Illumination
Theft Deterrent
Trailer Towing
Wireless Door Lock Control (w/o Smart Key System)
140A ALT (1GR-FE) Automatic Light Control and Light Auto Turn Off System
Back-Up Light
Charging
Front Fog Light
Parking Assist (Intuitive Parking Assist)
Safety Connect
Starting (w/o Smart Key System)
Taillight and Illumination
Theft Deterrent
Trailer Towing
Wireless Door Lock Control (w/o Smart Key System)